





Ajouter aux listes:✕
Il s’agit de la ligne JRJR Ban-Etsu East à Miharu, et la salle de bain dispose d’une fonction de réchauffage, ce qui vous permet de prendre un bain chaud à tout moment. Nous sommes équipés de climatiseurs qui sont sûrs même si vous avez une grande famille et peuvent passer un moment confortable même pendant les étés chauds et les hivers froids (veuillez contacter la société immobilière pour le nombre d’installations et de fonctions). Et c’est une propriété compatible avec les cuisinières à gaz qui peut être chauffée au gaz et cuite délicieusement.こちらはJRJR磐越東線を三春で下車し、浴室は追い焚き機能が付いており、いつでも温かいお風呂に入れます。家族が多くても安心で、暑い夏や寒い冬も快適に過ごせるエアコン(設置数や機能などは不動産会社へ問合せ)を備えております。そして、ガスでしっかりと加熱して、美味しく調理ができるガスコンロ対応物件です。
Dépôt de garantie :敷金 | Aucun / 1 mois Je voudrais vous poser une question sur le coût initial.無/1ヶ月 初期費用について質問したい |
---|---|
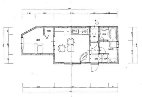
Bâtiment :建物面積 | Veuillez vous renseigner |
Structure :構造 | En bois木造 |
Bâtit en :建築年 | 1970 |
Toutes les akiya au même endroit
Trouvez la maison vacante parfaite au Japon!
La préfecture de Fukushima, située dans la région de Tohoku, offre un style de vie unique, mêlant nature, traditions et modernité. Bien que connue pour les événements de 2011, Fukushima a fait d’énormes progrès dans sa reconstruction, offrant aujourd'hui un environnement sûr et accueillant. La région est riche en paysages magnifiques, de nombreuses sources chaudes (onsen) et une culture locale dynamique.
En termes de logement, Fukushima Ken est généralement plus abordable que des grandes métropoles comme Tokyo ou Osaka. Les loyers sont souvent inférieurs de 30 à 50 %, ce qui permet d'accéder à des logements plus spacieux. Il existe des options variées, allant des appartements en ville aux maisons traditionnelles dans les zones rurales.
Comparée à d'autres régions, la qualité de vie à Fukushima est appréciée pour son ambiance calme et son accès à la nature, offrant un équilibre familial idéal. Le coût de la vie est également compétitif, avec des prix abordables pour les aliments et les services. Cependant, les opportunités d'emploi, surtout dans certains secteurs, peuvent être plus limitées par rapport aux grandes villes. En somme, Fukushima Ken peut convenir à ceux recherchant un mode de vie serein et une immersion dans la culture japonaise.
AllAkiyas.com met à votre disposition des milliers d'annonces de biens immobiliers japonais à vendre ou à louer. Notre vaste sélection comprend des maisons individuelles, des maisons de ville, des appartements, des locaux commerciaux et des terrains vagues. Nous accordons une attention particulière aux maisons vacantes traditionnelles, appelées akiya (ou kominka en zone rurale), et aux maisons de ville traditionnelles, ou machiya. Vous pouvez facilement rechercher des biens dans toutes les préfectures du Japon selon vos critères spécifiques.