
Vérifiez disponibilitéAjouter aux listes:✕

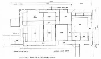
170 Lots de chambres avec jardins, maisons bifamiliales http://www.mitoyo-kurashitecho.com/houses/entry-836.html170 庭園付 部屋数多く、二世帯住宅も可 http://www.mitoyo-kurashitecho.com/houses/entry-836.html、
| Terrain :土地面積 | 577 m² |
|---|---|
| Bâtiment :建物面積 | 171 m² |
| Échelle :建物規模 | 2 étages hors sol地上2階建 |
| Structure :構造 | En bois木造 |
| Bâtit en :建築年 | 1987 |
Toutes les akiya au même endroit
Trouvez la maison vacante parfaite au Japon!

La préfecture de Kagawa, située sur l'île de Shikoku, est réputée pour son ambiance tranquille et sa qualité de vie élevée. Connue pour ses célèbres udon et ses paysages magnifiques, Kagawa offre un style de vie apprécié par ceux qui souhaitent échapper à l'agitation des grandes villes japonaises. La région propose un mélange d'activités culturelles, d'activités en plein air et de festivals locaux, tout en étant également proche de la mer.
En ce qui concerne le logement, Kagawa est généralement plus abordable que des préfectures comme Tokyo ou Osaka. Les familles peuvent y trouver des options de logement adaptées à différents budgets, avec des loyers plus bas et des maisons plus spacieuses. Cependant, la disponibilité peut varier et une recherche approfondie est recommandée.
Comparée à d'autres régions du Japon, Kagawa offre une excellente qualité de vie, avec un faible taux de criminalité, un bon système de santé et des écoles de qualité. Le coût de la vie y est également plus raisonnable, ce qui en fait une option attrayante pour les expatriés souhaitant un équilibre entre vie professionnelle et loisirs.
AllAkiyas.com met à votre disposition des milliers d'annonces de biens immobiliers japonais à vendre ou à louer. Notre vaste sélection comprend des maisons individuelles, des maisons de ville, des appartements, des locaux commerciaux et des terrains vagues. Nous accordons une attention particulière aux maisons vacantes traditionnelles, appelées akiya (ou kominka en zone rurale), et aux maisons de ville traditionnelles, ou machiya. Vous pouvez facilement rechercher des biens dans toutes les préfectures du Japon selon vos critères spécifiques.