
Vérifiez disponibilitéAjouter aux listes:✕

Il y a un champ sur le terrain, qui est actuellement utilisé comme villa, et il n’y a pas de maison vacante, vous pouvez donc y vivre tel quel sans réparation. De nombreux immigrants venus de l’extérieur de la préfecture vivent dans cette zone. Il y a un salon au deuxième étage de la réserve. ◎ À 20 minutes en voiture de la ville de Takato, du meilleur endroit au monde pour les cerisiers en fleurs « Takato Castle Ruins Park », Takato Onsen « Sakura no Yu », Shinshu Takato Museum of Art, Takato History Museum, etc. Les villes de Chino et de Suwa sont également à 20 minutes en voiture. ◎ Il y a une désignation d’une zone d’alerte aux catastrophes de glissement de terrain.地続きには畑があり、現在は別荘として利用、空き家期間がないので補修不要でそのまま住んでいただけます。 この地区には県外からの移住者が多く暮らしています。 離れ物置には2階に居室があります。 ◎高遠町市街地、天下第一の桜の名所「高遠城址公園」、高遠温泉「さくらの湯」、信州高遠美術館、高遠歴史博物館等、車で20分。茅野市、諏訪市へも車で20分です。 ◎土砂災害警戒区域の指定あり。
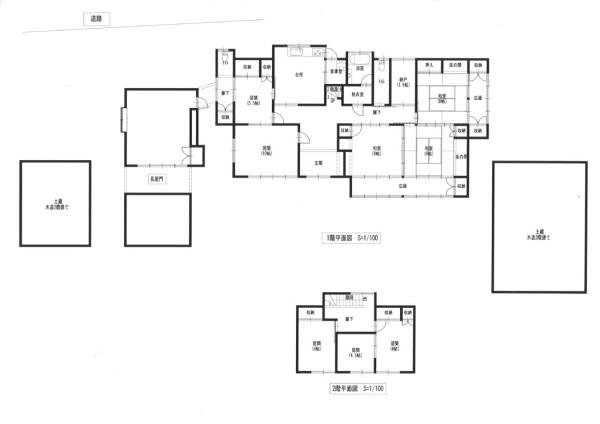
| Terrain :土地面積 | 1025 m² |
|---|---|
| Bâtiment :建物面積 | 140 m² |
| Échelle :建物規模 | 2 histoires2階建 |
| Structure :構造 | Autre木造瓦葺 |
| Bâtit en :建築年 | 1976 |

Une grande maison ancienne avec un bon ensoleillement et une vue spectaculaire sur les Alpes du Nord. Des terres agricoles, des montagnes et des forêts sont attenantes. Actuellement, il est nécessaire d’inspecter, de réparer et de rénover le toit, les aménagements et la plomberie. Zone d’alerte aux catastrophes sédimentaires.日当たり良好、北アルプスの絶景が楽しめる大きな古民家。農地山林が付属。現状売買のため屋根や建具、水回りを含む点検補修やリフォームが必要。土砂災害警戒区域。
| Terrain :土地面積 | 1336 m² |
|---|---|
| Bâtiment :建物面積 | 275 m² |
| Échelle :建物規模 | Deuxième étage2階 |
| Structure :構造 | Toit en tuiles en bois木造瓦葺き |
| Bâtit en :建築年 | 1933 |

Localisation ★ Alpes centrales
Propriétés ★ adaptées à la vie rurale
Il y ★ a un espace potager, une place de parking, ★ un débarras et un entrepôt.
Le bâtiment est en bon état à l’intérieur et à l’extérieur, ★ et il n’y a pas ★ besoin de réparations majeures.
Environnement ★ ouvert
Agencement ★ des pièces presque à la japonaise
Les locataires bifamiliaux sont également bons ★
Maison vacante banque propriété ★ enregistrée中央アルプスロケーション★
田舎暮らし向き物件★
菜園スペース、駐車スペースあり★物置、倉庫あり★
建物内外状態良し★特に大きな修繕の必要なし★
開放的な環境★
ほぼ和室の間取り★
二世帯入居も良し★
空き家バンク登録物件★
| Terrain :土地面積 | 468 m² |
|---|---|
| Bâtiment :建物面積 | 202 m² |
| Échelle :建物規模 | 2 histoires2階建て |
| Structure :構造 | En bois木造 |
| Bâtit en :建築年 | 1979 |

Il possède un entrepôt construit au cours de la première année de l'ère Meiji (estimé à partir du registre des impôts), un jardin avec un étang et un champ où l'on peut cultiver un potager.明治元年(課税台帳より推定)に建てられた蔵や池のある庭、家庭菜園のできる畑が付いています。
| Terrain :土地面積 | 933 m² |
|---|---|
| Bâtiment :建物面積 | 161 m² |
| Échelle :建物規模 | 2 étages hors sol地上2階 |
| Structure :構造 | En bois木造 |
| Bâtit en :建築年 | 1983 |

Avec ★ des terres agricoles
Minami-Shinshu location propriété ★ avec vue sur les Alpes centrales et le paysage rural
Avec un garage et un entrepôt ★ robustes et splendides
C’est une grande maison de 7DK ☆農地付★
中央アルプス眺望と田園風景が広がる南信州ロケーション物件★
頑丈で立派な車庫兼倉庫付★
7DKの大きなお宅です☆
| Terrain :土地面積 | 1630 m² |
|---|---|
| Bâtiment :建物面積 | 179 m² |
| Structure :構造 | Toit en tuiles en bois木造 瓦葺 |
| Bâtit en :建築年 | 1975 |

Situé dans un quartier calme à proximité du bureau du gouvernement préfectoral de Nagano
Près des sources chaudes
POINT 1 : Bon accès à la gare
POINT 2 : Situé près du temple Zenkoji
POINT 3 : Situé dans un quartier calme
FAIS [Ce que tu peux faire]
Accès facile à la gare de Nagano
*Le bureau préfectoral de Nagano est à proximité
〇Le temple Zenkoji est à proximité
〇Emplacement calme au sein de la ville
〇Profitez des bâtiments traditionnels
AUTOUR【Zone environnante】
〇Le magasin Lawson Nagano Prefectural Office est à 550 m, soit 7 minutes à pied
〇À 650 m de l'auberge de sources chaudes naturelles Uruoikan, à 9 minutes à pied
〇Le Nagano Tomato Food Hall se trouve à 950 m, soit 4 minutes en voiture
* Le magasin Watahan Super Center Gondo est à 1,9 km, soit 6 minutes en voiture
*Livraison en l'état
*Année de construction inconnue
* Impôt sur les immobilisations : (2024) 45 800 yens
* Frais de courtage : Prix de vente x 3,3 % + 66 000 yens長野県庁に近く、閑静な場所に位置する環境
温泉近い
POINT 1 : 駅前へのアクセスが良好
POINT 2 : 善光寺が近い立地
POINT 3 : 閑静な場所に位置する
DO【できること】
〇長野駅前へのアクセスがしやすい
〇長野県庁が近い
〇善光寺が近い
〇市部のなかでも閑静な立地
〇伝統的な建物を堪能
AROUND【周辺環境】
〇ローソン長野県庁店 まで550m,徒歩7分
〇天然温泉宿うるおい館 まで650m、徒歩9分
〇長野トマト食品館まで950m、車4分
〇綿半スーパーセンター権堂店まで 1.9km,車6分
※現況での引渡し
※築年数不詳
※固定資産税:(令和6年)45,800円
※仲介手数料:販売価格×3.3% + 6.6万円
| Terrain :土地面積 | 243 m² |
|---|---|
| Bâtiment :建物面積 | 81 m² |
| Échelle :建物規模 | 2 histoires2階建て |
| Structure :構造 | Toit en tuiles en bois木造 瓦葺 |
| Bâtit en :建築年 | 1994 |

La propriété est située à 600 m de l'école primaire Nakasu et à 900 m du lycée Suwa Minami Junior, ce qui la rend pratique pour se rendre à l'école.中洲小学校から600m、諏訪南中学校から900mと小中学校が近く通学に便利です。
| Terrain :土地面積 | 383 m² |
|---|---|
| Bâtiment :建物面積 | 155 m² |
| Échelle :建物規模 | Deuxième étage2階 |
| Structure :構造 | En bois木造 |
| Bâtit en :建築年 | 1989 |

Situé au centre de la ville, avec un bon accès à la mairie, au supermarché, aux sources chaudes, etc. Il s'agit d'une maison en bois avec une large véranda caractéristique, et la salle de bain et les toilettes ont été rénovées et peuvent être utilisées telles quelles. La propriété possède également de grandes rizières et des terres agricoles entourant la maison, ce qui la rend idéale pour les personnes souhaitant travailler dans l'agriculture.町の中心地にあり、役場やスーパー、温泉等へのアクセス良好。広い縁側が特徴的な木造家屋で風呂トイレは改修されており、現状のまま使えそうです。また住宅の周辺に広い田んぼと農地を有し、就農希望者向けの物件です。
| Terrain :土地面積 | 1050 m² |
|---|---|
| Bâtiment :建物面積 | 177 m² |
| Structure :構造 | Bâtiment en bois à deux étages木造2階建て |
| Bâtit en :建築年 | 1966 |

Environnement calme, 7DK et beaucoup de chambres !
Dans un rayon de 2 km de l’école maternelle
Stockage (entrepôt)
Parking disponible静かな環境、7DKとお部屋数も十分!
保育園まで2キロ以内
物置付(蔵)
駐車場有
| Terrain :土地面積 | 618 m² |
|---|---|
| Bâtiment :建物面積 | 193 m² |
| Échelle :建物規模 | 22 |
| Structure :構造 | En bois木造 |
| Bâtit en :建築年 | 1952 |
Toutes les akiya au même endroit
Trouvez la maison vacante parfaite au Japon!

La préfecture de Nagano est connue pour son cadre de vie paisible, entourée de montagnes et de nature. La région offre une qualité de vie élevée, avec des villes comme Nagano, Matsumoto et Suwa, connues pour leur beauté naturelle et leur richesse culturelle. Le style de vie y est plus détendu qu'à Tokyo, avec une forte culture de plein air, idéal pour les amateurs de randonnée, de ski et de cyclisme.
En termes de logement, Nagano Ken présente des options plus abordables que les grandes métropoles japonaises. Bien que la disponibilité varie selon les villes, il est généralement plus facile de trouver un appartement ou une maison à un prix raisonnable par rapport à Tokyo ou Osaka. Les coûts de la vie, y compris la nourriture et les transports, sont également inférieurs.
Comparée à d'autres régions du Japon, Nagano Ken est très appréciée pour son équilibre entre vie urbaine et nature. La qualité de l’air et l’environnement rural améliorent le bien-être des résidents, tandis que la richesse culturelle et les festivals locaux renforcent le sentiment d’appartenance. Cela en fait une destination attractive pour les familles cherchant un changement de style de vie.
AllAkiyas.com met à votre disposition des milliers d'annonces de biens immobiliers japonais à vendre ou à louer. Notre vaste sélection comprend des maisons individuelles, des maisons de ville, des appartements, des locaux commerciaux et des terrains vagues. Nous accordons une attention particulière aux maisons vacantes traditionnelles, appelées akiya (ou kominka en zone rurale), et aux maisons de ville traditionnelles, ou machiya. Vous pouvez facilement rechercher des biens dans toutes les préfectures du Japon selon vos critères spécifiques.