
Vérifiez disponibilitéAjouter aux listes:✕

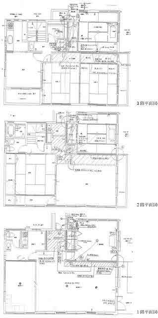
Vente aux enchères judiciaires (vente) de propriété. Un bureau et une usine d’une superficie totale de 1 578,96 m2 et d’une surface totale de 3 062,75 m2. Période d’enchères 2025/11/12 - 11/19, date d’ouverture des enchères 2025/11/26. Prix gagnant de l’enchère : 660 010 002 yens (Qualification de l’enchérisseur retenu : société).裁判所競売(売却)物件。土地3筆合計面積1,578.96m2、延床面積3,062.75m2の事務所・工場。入札期間2025/11/12〜11/19、開札日2025/11/26。落札価額660,010,002円(落札者資格:法人)。
| Terrain :土地面積 | 1579 m² |
|---|---|
| Bâtiment :建物面積 | 3063 m² |
| Échelle :建物規模 | Immeuble de 4 étages (enregistré comme bâtiment de 3 étages4階建 (登記は3階建) |
| Structure :構造 | Structure en acier plaquée alliage en tôle d’acier鉄骨造合金メッキ鋼板ぶき |
| Bâtit en :建築年 | 2020 |
Toutes les akiya au même endroit
Trouvez la maison vacante parfaite au Japon!

Aichi Ken, située dans la région de Chūbu au Japon, est une préfecture dynamique, souvent négligée par les expatriés au profit de métropoles comme Tokyo ou Osaka. Cependant, elle offre un cadre de vie exceptionnel et rassurant pour les familles qui envisagent de s’y installer. Aichi est principalement connue pour sa capitale, Nagoya, qui est un centre industriel et technologique majeur, abritant le célèbre constructeur automobile Toyota. Cette préfecture allie l'urbanité au charme local, offrant des infrastructures urbaines modernes tout en conservant des quartiers tranquilles et des espaces verts propices à l’épanouissement familial.
Une des grandes atouts d'Aichi Ken est la possibilité d'acheter une maison à des prix généralement plus abordables que ceux trouvés à Tokyo ou Osaka. Les zones résidentielles autour de Nagoya, telles que Toyota City ou Inuyama, présentent des options de logement qui conviennent aux budgets variés. De plus, le réseau de transport est très développé, facilitant les déplacements vers Nagoya tout en vivant dans des régions plus calmes. En somme, Aichi Ken représente une alternative attractive pour ceux cherchant un équilibre entre vie urbaine, tranquillité et accessibilité au logement.
AllAkiyas.com met à votre disposition des milliers d'annonces de biens immobiliers japonais à vendre ou à louer. Notre vaste sélection comprend des maisons individuelles, des maisons de ville, des appartements, des locaux commerciaux et des terrains vagues. Nous accordons une attention particulière aux maisons vacantes traditionnelles, appelées akiya (ou kominka en zone rurale), et aux maisons de ville traditionnelles, ou machiya. Vous pouvez facilement rechercher des biens dans toutes les préfectures du Japon selon vos critères spécifiques.