





Ajouter aux listes:✕
♪ À un prix abordable dans le populaire Higashi-Narashino 8-chome, 4 nouvelles maisons sont nouvellement introduites. ♪ Il est fièrement achevé, non seulement les samedis, dimanches et jours fériés, mais aussi en semaine, et peut être consulté à tout moment L’entrée ♪ du système de navigation automobile est « 8-22-9 Higashi-Narashino, Narashino City » ♪♪人気の東習志野8丁目にお手頃価格で、4棟の新築住宅が新登場です♪堂々完成、土日、祝日だけではなく、平日でも、何時でも内見出来ます♪カーナビ入力は「習志野市東習志野8-22-9」です♪
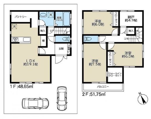
Terrain :土地面積 | 121 m² |
---|---|
Bâtiment :建物面積 | 95 m² |
Échelle :建物規模 | 2 étages hors sol地上2階 |
Structure :構造 | En bois木造 |
Bâtit en :建築年 | 2025 |
Il y a un grand parc sur le côté nord, donnant un sentiment d’ouverture. Il y a un salon avec un atrium et un garde-manger à côté de la cuisine.北側に広い公園があり開放感があります。吹き抜けのあるリビングでキッチン横にパントリーがあります。
Terrain :土地面積 | 128 m² |
---|---|
Bâtiment :建物面積 | 98 m² |
Échelle :建物規模 | 2 étages hors sol地上2階 |
Structure :構造 | En bois木造 |
Bâtit en :建築年 | 2025 |
Il y a un grand parc sur le côté nord, donnant un sentiment d’ouverture. Il y a un comptoir d’étude dans le salon.北側に広い公園があり開放感があります。リビングにスタディーカウンター設置あります。
Terrain :土地面積 | 107 m² |
---|---|
Bâtiment :建物面積 | 100 m² |
Échelle :建物規模 | 2 étages hors sol地上2階 |
Structure :構造 | En bois木造 |
Bâtit en :建築年 | 2025 |
Il y a un grand parc sur le côté nord, donnant un sentiment d’ouverture. Le salon dispose d’un atrium, et il y a un espace de travail et un garde-manger à côté de la cuisine.北側に広い公園があり開放感があります。吹き抜けのあるリビングでキッチン横にワークスペース及びパントリーがあります。
Terrain :土地面積 | 130 m² |
---|---|
Bâtiment :建物面積 | 105 m² |
Échelle :建物規模 | 2 étages hors sol地上2階 |
Structure :構造 | En bois木造 |
Bâtit en :建築年 | 2025 |
Il s’agit d’une maison certifiée à faible émission de carbone utilisant un matériau structurel de nouvelle génération CLT. C’est une maison confortable avec une gamme complète de systèmes de production d’énergie solaire et de systèmes de climatisation dans tout le bâtiment.次世代構造材CLT採用の認定低炭素住宅です。太陽光発電システム及び全館空調システム採用等充実で快適な住宅です。
Terrain :土地面積 | 137 m² |
---|---|
Bâtiment :建物面積 | 127 m² |
Échelle :建物規模 | 2 étages hors sol地上2階 |
Structure :構造 | En bois木造 |
Bâtit en :建築年 | 2024 |
Bien que la maison ait été construite par Sumitomo Forestry il y a plusieurs années, c'est un bâtiment solide. L'appartement 35 peut être utilisé. Il existe également un rapport d'inspection. Il y a de nombreux rangements et la pièce est spacieuse.住友林業の家で築年数は経過していますが、しっかりした建物です。フラット35が使えます。インスペクション報告書もあります。収納が十分にあり部屋が広く使えます。
Terrain :土地面積 | 142 m² |
---|---|
Bâtiment :建物面積 | 111 m² |
Échelle :建物規模 | 2 étages hors sol地上2階 |
Structure :構造 | En bois木造 |
Bâtit en :建築年 | 1993 |
☆ Maison individuelle nouvellement construite 2SLDK avec garage intégré à 15 minutes à pied de la gare ! Il est situé avec un bon cadre de vie à proximité des commerces, des écoles maternelles, des écoles primaires et collèges !☆駅歩15分のビルトイン車庫付き2SLDK新築戸建て!買物や保育園・小・中学校が近く生活住環境良好な立地です!
Terrain :土地面積 | 62 m² |
---|---|
Bâtiment :建物面積 | 96 m² |
Échelle :建物規模 | 3 étages hors sol地上3階 |
Structure :構造 | En bois木造 |
Bâtit en :建築年 | 2025 |
Toutes les akiya au même endroit
Trouvez la maison vacante parfaite au Japon!
Chiba Ken, située juste à l'est de Tokyo, est une préfecture fascinante qui offre un cadre de vie attrayant pour les familles souhaitant s'installer au Japon. Elle combine un accès facile à la capitale tout en offrant un environnement plus calme et une atmosphère résidentielle. Un des atouts majeurs de Chiba est son vaste réseau de transports, y compris des lignes de train directes vers Tokyo, ce qui la rend idéale pour les expatriés travaillant dans la métropole. En outre, la préfecture est réputée pour sa beauté naturelle, avec de nombreuses plages, parcs et montagnes à explorer, ainsi que des attractions comme le parc à thème Tokyo Disneyland et le célèbre parc Naritasan. Pour ceux qui cherchent à acheter une maison, Chiba offre des options de logements généralement plus abordables que dans Tokyo même. Les quartiers comme Chiba City ou Funabashi permettent de trouver des résidences spacieuses, adaptées aux familles, à des prix qui restent compétitifs. De plus, la ville combine une ambiance familiale avec une bonne infrastructure, incluant des écoles internationales, des centres de santé et des espaces communautaires, ce qui en fait un choix idéal pour une vie de famille sereine et épanouissante au Japon.
AllAkiyas.com met à votre disposition des milliers d'annonces de biens immobiliers japonais à vendre ou à louer. Notre vaste sélection comprend des maisons individuelles, des maisons de ville, des appartements, des locaux commerciaux et des terrains vagues. Nous accordons une attention particulière aux maisons vacantes traditionnelles, appelées akiya (ou kominka en zone rurale), et aux maisons de ville traditionnelles, ou machiya. Vous pouvez facilement rechercher des biens dans toutes les préfectures du Japon selon vos critères spécifiques.