





Ajouter aux listes:✕
【Maison Misawa】 Des points de paiement d’une valeur de 8 000 yens seront offerts en effectuant une réservation pour une visite !【ミサワホーム】見学予約でPayPayポイント8000円分プレゼント!
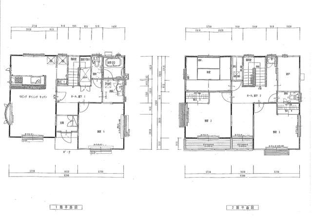
Terrain :土地面積 | 211 m² |
---|---|
Bâtiment :建物面積 | 106 m² |
Structure :構造 | Structure en panneaux de boisÀ deux étages木質パネル構造2階建て |
Bâtit en :建築年 | 2024 |
沢山の服を収納できるウォークインクローゼットがついているので、衣替えが楽になります。追い焚き機能付きのお風呂です。建物面積は103.92平米となっており広さも十分ではないでしょうか。沢山の服を収納できるウォークインクローゼットがついているので、衣替えが楽になります。追い焚き機能付きのお風呂です。建物面積は103.92平米となっており広さも十分ではないでしょうか。
Terrain :土地面積 | 185 m² |
---|---|
Bâtiment :建物面積 | 104 m² |
Échelle :建物規模 | 地上2階地上2階 |
Structure :構造 | 木造木造 |
Bâtit en :建築年 | 2025 |
Quartier populaire ! Coin sud-ouest de la terre ! Écoles primaires et collèges, gares et hôpitaux universitaires à 14 minutes à pied !人気エリア!西南角地!小中学校、駅、大学病院 徒歩14分内!
Terrain :土地面積 | 241 m² |
---|---|
Bâtiment :建物面積 | 130 m² |
Échelle :建物規模 | 2 étages hors sol地上2階 |
Structure :構造 | En bois木造 |
Bâtit en :建築年 | 1994 |
■南側道路で日照・通風良好 東側隣地通路で解放感があります□トヨタホーム施工でゆとりの6LDK■自治医大駅まで約2.2Km電車通勤にも適した立地です□公園、教育施設が近く生活環境良好■南側道路で日照・通風良好 東側隣地通路で解放感があります□トヨタホーム施工でゆとりの6LDK■自治医大駅まで約2.2Km電車通勤にも適した立地です□公園、教育施設が近く生活環境良好
Terrain :土地面積 | 192 m² |
---|---|
Bâtiment :建物面積 | 153 m² |
Échelle :建物規模 | 地上2階地上2階 |
Structure :構造 | 木造木造 |
Bâtit en :建築年 | 1992 |
Toutes les akiya au même endroit
Trouvez la maison vacante parfaite au Japon!
La préfecture de Tochigi, située au nord de Tokyo, est une destination attrayante pour les familles cherchant à s'expatrier au Japon. Connue pour ses paysages pittoresques, Tochigi abrite de célèbres stations thermales comme Nikkō et des sites historiques inscrits au patrimoine mondial de l'UNESCO. Comparée à d'autres préfectures comme Tokyo ou Kanagawa, où le coût de la vie est élevé et la densité urbaine est forte, Tochigi offre un cadre de vie plus serein tout en restant accessible grâce à des liaisons ferroviaires rapides vers Tokyo. Cela permet aux résidents de profiter de la tranquillité de la campagne tout en étant à proximité de la métropole.
En ce qui concerne l'accessibilité au logement, la préfecture présente des avantages significatifs. Les loyers y sont généralement plus abordables, même dans des villes comme Utsunomiya, tout en offrant la possibilité d'accès à des logements plus spacieux que ceux que l'on trouve dans les quartiers urbains de Tokyo. Les familles peuvent ainsi bénéficier d'un meilleur rapport qualité-prix, favorisant un style de vie plus équilibré. En somme, Tochigi Ken combine le charme de la vie rurale japonaise avec les commodités modernes, faisant de cette préfecture une option phare pour les nouveaux expatriés.
AllAkiyas.com met à votre disposition des milliers d'annonces de biens immobiliers japonais à vendre ou à louer. Notre vaste sélection comprend des maisons individuelles, des maisons de ville, des appartements, des locaux commerciaux et des terrains vagues. Nous accordons une attention particulière aux maisons vacantes traditionnelles, appelées akiya (ou kominka en zone rurale), et aux maisons de ville traditionnelles, ou machiya. Vous pouvez facilement rechercher des biens dans toutes les préfectures du Japon selon vos critères spécifiques.