
Vérifiez disponibilitéAjouter aux listes:✕

・Comme il s'agit d'un bâtiment conforme aux anciennes normes de résistance sismique construites avant 1982, vous devrez peut-être vous conformer à la loi sur les normes de construction en vigueur lors de la construction d'une extension.
・Comme il est situé à proximité d'une falaise, il est nécessaire de respecter « l'arrêté falaise » de la préfecture lors de la reconstruction.
・En raison de la situation actuelle, il existe une possibilité de termites et de fuites de pluie, des réparations sont donc prévues.・昭和56年以前の旧耐震基準の建物の為、増築の際に現行の建築基準法規定に適合するようの求められる場合があります。
・がけに近接しているため、建て替えの際に県の「がけ条例」に適合する必要があります。
・現況では、シロアリと雨漏りの可能性があるため、修繕を予定しています。
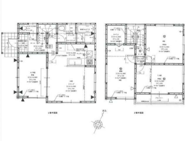
| Terrain :土地面積 | 1104 m² |
|---|---|
| Bâtiment :建物面積 | 109 m² |
| Structure :構造 | Toiture en tuiles de bois Immeuble de 2 étages木造 瓦葺 2階 建 |
| Bâtit en :建築年 | 1977 |
Toutes les akiya au même endroit
Trouvez la maison vacante parfaite au Japon!

La préfecture de Fukushima, située dans la région de Tohoku, offre un style de vie unique, mêlant nature, traditions et modernité. Bien que connue pour les événements de 2011, Fukushima a fait d’énormes progrès dans sa reconstruction, offrant aujourd'hui un environnement sûr et accueillant. La région est riche en paysages magnifiques, de nombreuses sources chaudes (onsen) et une culture locale dynamique.
En termes de logement, Fukushima Ken est généralement plus abordable que des grandes métropoles comme Tokyo ou Osaka. Les loyers sont souvent inférieurs de 30 à 50 %, ce qui permet d'accéder à des logements plus spacieux. Il existe des options variées, allant des appartements en ville aux maisons traditionnelles dans les zones rurales.
Comparée à d'autres régions, la qualité de vie à Fukushima est appréciée pour son ambiance calme et son accès à la nature, offrant un équilibre familial idéal. Le coût de la vie est également compétitif, avec des prix abordables pour les aliments et les services. Cependant, les opportunités d'emploi, surtout dans certains secteurs, peuvent être plus limitées par rapport aux grandes villes. En somme, Fukushima Ken peut convenir à ceux recherchant un mode de vie serein et une immersion dans la culture japonaise.
AllAkiyas.com met à votre disposition des milliers d'annonces de biens immobiliers japonais à vendre ou à louer. Notre vaste sélection comprend des maisons individuelles, des maisons de ville, des appartements, des locaux commerciaux et des terrains vagues. Nous accordons une attention particulière aux maisons vacantes traditionnelles, appelées akiya (ou kominka en zone rurale), et aux maisons de ville traditionnelles, ou machiya. Vous pouvez facilement rechercher des biens dans toutes les préfectures du Japon selon vos critères spécifiques.