Vérifiez disponibilitéAjouter aux listes:✕

Le paisible village de montagne et les bâtiments nostalgiques sont des bâtiments pittoresques de Heike. Il y a un puits.のどかな山村、昔懐かしい建物は趣のある平家建です。井戸があります。
| Terrain :土地面積 | 473 m² |
|---|---|
| Bâtiment :建物面積 | 127 m² |
| Structure :構造 | Toit en tuiles en bois木造 瓦葺 |
| Bâtit en :建築年 | 1932 |

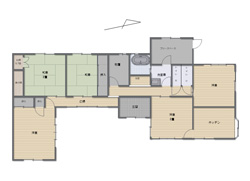
10 minutes à pied de l’arrêt express limité. Il est situé sur une zone plate avec un bon ensoleillement. La ville de Tsu dispose d’un approvisionnement en eau et d’égouts.特急停車駅まで徒歩10分。陽あたりの良い平坦地にあります。津市上下水道完備。
| Terrain :土地面積 | 201 m² |
|---|---|
| Bâtiment :建物面積 | 47 m² |
| Structure :構造 | Toit en tuiles en bois木造 瓦葺 |
| Bâtit en :建築年 | 1976 |

Le terrain spacieux fait environ 990 m2 et comprend une maison principale, un garage/débarras couvert, un espace libre devant le garage et un terrain pour un potager ! La maison principale est une maison japonaise solidement construite qui conserve son charme traditionnel. Bien sûr, nous installerons une nouvelle plomberie, nous ferons donc les travaux pour rendre la maison confortable à vivre tout en préservant les bonnes qualités de l'ancienne maison.
Nous organiserons une journée portes ouvertes !
Dimanche 23 février, 11h00-14h00
Si vous êtes là pendant l'heure indiquée, n'hésitez pas à venir sans faire de réservation.土地が約280坪あり広々とした敷地の中には母屋・屋根付き車庫倉庫・車庫前の自由スペース・菜園用地などが付いています! 母屋はしっかりとした造りの日本家屋で昔ながらの趣が残っています。水回りはもちろん新設工事を致しますので、古民家の良さを残しながら生活しやすいように工事させて頂きます(*´ω`*)
☆オープンハウスを開催致します☆
2月23日(日)11:00~14:00まで
お時間内でしたら予約なしでお気軽にお越しください(*´▽`*)
| Terrain :土地面積 | 932 m² |
|---|---|
| Bâtiment :建物面積 | 201 m² |
| Échelle :建物規模 | 2 histoires2階建て |
| Structure :構造 | En bois木造 |
| Bâtit en :建築年 | 1980 |

C’est une très belle propriété avec une forêt de montagne à côté. La cuisine est actuellement en cours de démontage et nécessite une nouvelle installation. C’est une charmante maison japonaise qui nécessite des réparations et des rénovations.高台にある物件で隣には山林がついておりとても素敵な物件です。キッチンが現在取外しされており、新しく設置が必要です。修繕・リフォームが必須ですが趣のある日本家屋です。
| Terrain :土地面積 | 2612 m² |
|---|---|
| Bâtiment :建物面積 | 119 m² |
| Échelle :建物規模 | Maison de style Heike平家建て |
| Structure :構造 | Toit en tuiles en bois木造 瓦葺 |
| Bâtit en :建築年 | 1984 |

Ce charmant vieux manoir a été construit en 1912 dans une ancienne ville postale le long de la route Ise Honkaido. La propriété comprend un entrepôt indépendant, deux entrepôts, un espace de stationnement pour 4 à 5 voitures, un jardin et un champ. Recommandé pour une utilisation comme auberge de ferme ou comme magasin.伊勢本街道沿いの旧宿場町に、大正元年に建てられた趣きのこる旧屋敷です。 離れ倉庫・土蔵二・4~5台分の駐車スペース・庭園・畑が付いています。農家民宿や店舗利用におすすめです。
| Terrain :土地面積 | 654 m² |
|---|---|
| Bâtiment :建物面積 | 212 m² |
| Échelle :建物規模 | 2 histoires2階建て |
| Structure :構造 | En bois木造 |
| Bâtit en :建築年 | 1912 |

Le bâtiment est réalisé avec des matériaux de haute qualité et peut être utilisé tel quel. Un terrain agricole de 474 m2 est situé à proximité. Il y a un puits.高級材料を使った建物、そのままでお使いいただけます。農地は474㎡、近くにあります。井戸があります。
| Terrain :土地面積 | 1230 m² |
|---|---|
| Bâtiment :建物面積 | 239 m² |
| Structure :構造 | Toit en tuiles en bois木造 瓦葺 |
| Bâtit en :建築年 | 1982 |

Tarou, Misugi-cho, ville de Tsu, surplombe le mont Kuruson sur le plateau de Soni à la frontière avec la préfecture de Nara. En entrant dans le bâtiment, la première chose qui attire votre attention est le pilier principal zelkova de 1 pied et le pilier principal inférieur. La vieille maison, construite avec des matériaux de haute qualité, se tient fermement en place.
Terrain résidentiel : 498,56㎡, Forêt : 1989㎡, Rizières et terres agricoles : 5545㎡, Terrain divers : 59㎡奈良県境の曾爾高原「倶留尊山」が望める津市美杉町太郎生。建物は玄関を入ると1尺のケヤキ大黒柱と下大黒柱が目を引く。高級材料で造られた古民家がどっしりと構えております。
宅地:498.56㎡、山林:1989㎡、田・畑:5545㎡、雑種地:59㎡
| Terrain :土地面積 | 8092 m² |
|---|---|
| Bâtiment :建物面積 | 147 m² |
| Structure :構造 | Toit en tuiles en bois木造 瓦葺 |
| Bâtit en :建築年 | 1979 |

Il s'agit d'une majestueuse maison japonaise d'une superficie de plus de 75 tsubo (231,2 m2) sur un terrain de 1125 tsubo (1025 m2) sans maisons adjacentes. Il y a un cellier séparé avec un salon.隣接家屋がない325坪の敷地に建物面積75坪超の重厚な日本家屋です。離れに居室付き倉庫あります。
| Terrain :土地面積 | 1076 m² |
|---|---|
| Bâtiment :建物面積 | 251 m² |
| Échelle :建物規模 | 2 histoires2階建て |
| Structure :構造 | Toit en tuiles en bois木造 瓦葺 |
| Bâtit en :建築年 | 1978 |
Toutes les akiya au même endroit
Trouvez la maison vacante parfaite au Japon!

Mie Ken, située au centre du Japon, offre un style de vie paisible, loin de l'agitation des grandes métropoles comme Tokyo ou Osaka. Cette préfecture est renommée pour ses paysages naturels, ses plages et son patrimoine culturel, notamment le célèbre sanctuaire d'Ise. Les résidents peuvent profiter d'une ambiance tranquille, avec des villages pittoresques et des villes comme Tsu et Yokkaichi offrant une bonne qualité de vie.
En termes de logement, Mie Ken est généralement plus abordable que des régions urbaines comme Tokyo ou Kanagawa. Le coût de la vie est également compétitif, avec des prix raisonnables pour les courses et les services. Trouver un logement convenable ne devrait pas poser de problèmes majeurs, surtout si vous êtes ouvert à des logements en dehors des centres urbains.
Comparée à d'autres régions du Japon, Mie Ken offre une excellente qualité de vie, particulièrement pour les familles, avec un accès facile à la nature et des infrastructures scolaires solides. Cela en fait un choix attrayant pour ceux qui recherchent un équilibre entre vie urbaine et tranquillité rurale, tout en bénéficiant d'un coût de la vie raisonnable.
AllAkiyas.com met à votre disposition des milliers d'annonces de biens immobiliers japonais à vendre ou à louer. Notre vaste sélection comprend des maisons individuelles, des maisons de ville, des appartements, des locaux commerciaux et des terrains vagues. Nous accordons une attention particulière aux maisons vacantes traditionnelles, appelées akiya (ou kominka en zone rurale), et aux maisons de ville traditionnelles, ou machiya. Vous pouvez facilement rechercher des biens dans toutes les préfectures du Japon selon vos critères spécifiques.