





Ajouter aux listes:✕
Il s'agit d'une propriété de villa entourée par la nature. (Des frais de gestion (30 000 yens par an) seront facturés pour le terrain de la villa.)自然豊かな別荘物件です。(別荘地につき管理費(年額30,000円)が発生します。)
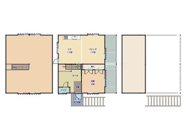
Terrain :土地面積 | 206 m² |
---|---|
Bâtiment :建物面積 | 50 m² |
Échelle :建物規模 | 2 étages hors sol地上2階建て |
Structure :構造 | En bois木造 |
Bâtit en :建築年 | 1994 |
Toutes les akiya au même endroit
Trouvez la maison vacante parfaite au Japon!
La préfecture de Nara, au Japon, est un lieu de choix pour les familles envisageant de s’expatrier, offrant un mélange unique de tradition et de modernité. Connue pour ses temples anciens, tels que le Todai-ji, elle est le berceau de la culture japonaise, inscrite au patrimoine mondial de l’UNESCO. Nara se distingue des autres préfectures par son atmosphère paisible, avec de vastes espaces verts, notamment le parc de Nara, où les cerfs vagabondent librement. Cette expérience culturelle authentique est renforcée par la communauté amicale et accueillante, idéale pour les familles cherchant à s'intégrer dans un environnement chaleureux. En termes de logement, Nara propose des options abordables par rapport à d'autres régions plus urbaines comme Tokyo ou Kyoto. Les prix des maisons y sont relativement bas, ce qui permet d'accéder à des logements spacieux, souvent dotés de jardins ou à proximité de la nature. Nara Ken offre également un bon système de transports en commun, facilitant les déplacements vers les grandes villes voisines. Pour ceux qui recherchent un cadre de vie serein, riche en culture et accessible financièrement, Nara Ken représente une excellente option pour s'établir au Japon.
AllAkiyas.com met à votre disposition des milliers d'annonces de biens immobiliers japonais à vendre ou à louer. Notre vaste sélection comprend des maisons individuelles, des maisons de ville, des appartements, des locaux commerciaux et des terrains vagues. Nous accordons une attention particulière aux maisons vacantes traditionnelles, appelées akiya (ou kominka en zone rurale), et aux maisons de ville traditionnelles, ou machiya. Vous pouvez facilement rechercher des biens dans toutes les préfectures du Japon selon vos critères spécifiques.