





Add to lists:✕
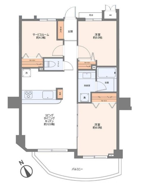
The moment you get off the station, you can feel the local atmosphere of a seaside town, at Kugenuma Beach. It's a 7-minute walk through the shopping district to the house. If you cross the road from the terrace of the house, you'll be in Surf Village. And then the sea. Why not start a life of living by the sea, as it truly is? This is a renovated property formerly sold by Mitsubishi Jisho. It comes with a 2-year after-sales guarantee. By the way, medium-sized dogs are also allowed (※subject to detailed rules), so your daily dog walks will be even happier. Click here for the floor plan. A south-facing southeast corner room! While this apartment is safer in terms of crime prevention than a detached house, there are windows on the east side of the living room and Western-style rooms (1) and (2), allowing the sun and breeze to come in. What a luxury! The sense of openness is different. Ingenuity for playing in the sea. In fact, the floor on the living room side is not wooden, but is made of earthenware tiles. The flow of traffic is designed to make it easy to come back from the sea, take a hot shower on the terrace, and then go to the bathroom. By the way, there is a surf rack in the駅を降りた瞬間から海街ならではのローカル感が漂う、鵠沼海岸。商店街を通りつつ、徒歩7分で家に到着。家のテラスから道路を一本渡ればもうサーフビレッジ。そして海。正真正銘の、"海と暮らす"生活始めませんか。三菱地所旧分譲のリノベ物件。安心の2年間アフターサービス保証付き。ちなみに中型犬もOK(※細則あり)、日々のわんこの散歩がより幸せな時間に。間取りはコチラ。南向きの東南角部屋!戸建に比べて防犯も安心なマンションでありつつリビングや洋室(1)(2)の東側には窓が付いていて、陽も風も入る。なんて贅沢!開放感も違います。海遊びのための工夫。実はリビング側の床はフローリングではなく土間タイル仕様。海から帰ってきて、テラスで温水シャワーを浴びてから浴室に行きやすいような動線に配慮されています。ちなみに洋室(2)にはサーフラックが。大切なボードがインテリアとしても楽しめます。豊富な収納力。廊下の収納だってこんなに。動画で紹介した床下収納やウォークインもあるし、玄関周りの収納も充実。クランクイン廊下。玄関を開けてもリビングの様子が見えないため、プライバシー性も確保されます。
Building:建物面積 | 77 m² |
---|---|
Scale:建物規模 | Five-storey building5階建て |
Structure:構造 | Reinforced concrete flat roof鉄筋コンクリート造陸屋根 |
Built in:建築年 | 2004 |
● Popular Shonan area
● Shonan T-SITE within walking distance
● Convenience stores, supermarkets, parks and a green living environment nearby●人気の湘南エリア
●徒歩圏内に湘南T-SITE
●近隣にコンビニやスーパー、公園があり緑豊かな住環境
Building:建物面積 | 49 m² |
---|---|
Exclusive area:専有面積 | 49 m² |
Built in:建築年 | 1973 |
Kanagawa Prefecture, located just south of Tokyo, is a vibrant prefecture that seamlessly blends urban convenience with natural beauty, making it an exceptional choice for those considering relocation. One of its standout features is its proximity to Tokyo, offering a suburban lifestyle with easy access to the bustling capital—an appealing factor for professionals seeking a balance between work and leisure. Kanagawa is home to popular cities such as Yokohama, with its picturesque waterfront and lively international atmosphere, and Kamakura, famed for its cultural heritage and coastal charm. For nature lovers, the stunning landscapes of the Hakone region, known for its hot springs and views of Mt. Fuji, provide tranquil retreats just a stone’s throw away. Affordability is a crucial aspect for prospective buyers, and Kanagawa offers competitive property prices compared to the heart of Tokyo, particularly in areas like Kawasaki and Atsugi. Here, you can find spacious homes and apartments that fit various budgets, making it suitable for first-time buyers or families. Additionally, the local government has been actively promoting residential developments that cater to newcomers, ensuring a diverse community with ample amenities. Schools, parks, and transport systems are well-developed, adding to the region's appeal. Overall, Kanagawa Ken offers a dynamic lifestyle with a variety of housing options, making it a compelling choice for anyone looking to invest in property while enjoying both urban and natural facets of Japan.
AllAkiyas.com puts at your disposition thousands of Japanese real estate listings of properties available for sale or rent. Our extensive listings include detached houses, townhouses, apartments, commercial spaces, and vacant lots. We place a special focus on traditional vacant houses, known as akiya (or kominka in rural areas), and traditional townhouses, or machiya. You can easily search for properties across all of Japan's prefectures using your specific criteria.