
Verify availabilityAdd to lists:✕

Vacant House Bank [Rental] 15,000 yen Yamaguchi Prefecture Hagi City Oi 4K Japanese-style 2-story building with garden Water supply and sewerage Two-sided veranda and continuous room空き家バンク【賃貸】1.5万円 山口県萩市大井 庭付き4K和風2階建 上下水道 二面縁側・続き間有
| Land:土地面積 | 199 m² |
|---|---|
| Building:建物面積 | 147 m² |
| Structure:構造 | Two-story wooden structure木造2階建 |

It was built in Showa 60 (39 years after construction) and is in good condition.
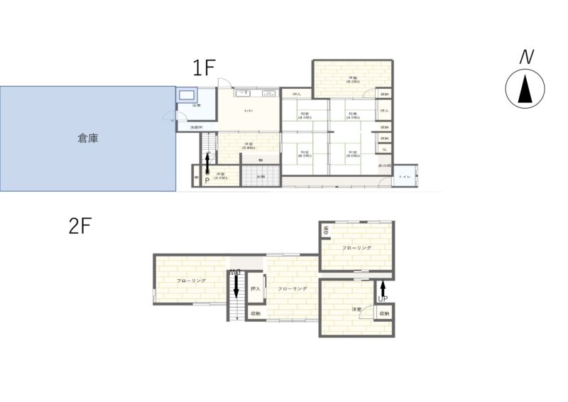
There is one place where the tatami mats of the 8-mat Japanese-style room are dented. There is a stain on the ceiling of the toilet.
You can also check the boundary with the neighboring land.昭和60年築(築後39年)で状態は良好。
8畳の和室の畳に1カ所へこむ箇所がある。トイレの天井にシミがある。
隣地との境界も確認ができる。
| Land:土地面積 | 309 m² |
|---|---|
| Building:建物面積 | 125 m² |
| Scale:建物規模 | 1 story / -1階建 / - |
| Structure:構造 | Wooden木造 |
| Built in:建築年 | 1985 |

Vacant House Bank [For Sale] 500,000 yen (negotiable) [For Rent] 40,000 yen Yatomishita, Hagi City, Yamaguchi Prefecture 8K single-story old house with 3 parking spaces, flush toilet, veranda, and adjacent room空き家バンク【売買】50万円(応相談)【賃貸】4万円 山口県萩市弥富下 駐車場3台付き8K平屋古民家 水洗トイレ 縁側・続き間有
| Land:土地面積 | 513 m² |
|---|---|
| Building:建物面積 | 203 m² |
| Structure:構造 | Wooden one-story house木造平屋 |

It is a house in the Mimiura area.
There are some places where the tiles have fallen.
Mountain forest 1,113 square meters (protection forest)三見浦地区の一軒家です。
一部、瓦の落ちている箇所があります。
山林 1,113平方メートル(保安林)
| Land:土地面積 | 517 m² |
|---|---|
| Building:建物面積 | 153 m² |
| Scale:建物規模 | 2-story / -2階建 / - |
| Structure:構造 | Wooden木造 |
| Built in:建築年 | 1974 |

There are some areas requiring repair, such as the floor.
All furniture and belongings have been removed.
The gas water heater is new.床等、補修を要する箇所あり。
家財等は撤去済み。
ガス給湯器は新しい。
| Land:土地面積 | 184 m² |
|---|---|
| Building:建物面積 | 158 m² |
| Scale:建物規模 | 2-story / -2階建 / - |
| Structure:構造 | Wooden木造 |
| Built in:建築年 | 1953 |

Vacant house bank [Sale] 1 million yen (negotiable) [Rental] 25,000 yen Shifuku, Hagi City, Yamaguchi Prefecture A place rich in nature 10 rooms with 2 parking spaces Old house with 2 bedrooms 2 floors Water supply and sewerage空き家バンク【売買】100万円(応相談)【賃貸】2.5万円 山口県萩市紫福 自然豊かな場所 倉庫・駐車場2台付き10部屋2階建古民家 上下水道
| Land:土地面積 | 564 m² |
|---|---|
| Building:建物面積 | 265 m² |
| Structure:構造 | Two-story wooden structure木造2階建 |

Needs plumbing repairs. It faces Prefectural Route 32, so you need to be careful when entering and exiting a car. ※ view the details水まわりの修繕が必要です。
県道32号線に面しており車の出入りは注意が必要です。
| Security deposit:敷金 | - / -- / - |
|---|---|
| Land:土地面積 | 454 m² |
| Building:建物面積 | 105 m² |
| Scale:建物規模 | 1 story / -1階建 / - |
| Structure:構造 | Wooden木造 |
| Built in:建築年 | 1975 |

Island life on Mishima, a remote island located about 45 kilometers northwest of Hagi Port! There are 2-3 regular flights a day. ※ view the details萩港から北西約45キロに位置する離島「見島」で島暮らし!
定期航路は1日2~3便就航しています。
| Security deposit:敷金 | - / -- / - |
|---|---|
| Land:土地面積 | 83 m² |
| Building:建物面積 | 44 m² |
| Scale:建物規模 | 2 stories / -2階建 / - |
| Structure:構造 | Wooden木造 |
| Built in:建築年 | 1960 |

Priority property for UJI turners・Amount negotiable・Residential area: Urban area・Partial field change required・Facilities: Western-style flush toilet, 5-043 suitable for propane gas bath can also be sold in bulk. There are rain leaks, etc., and repairs are necessary to live. There are household goods, but they will be removed when the contract is decided. A part of the land is agricultural land, and procedures at the Agricultural Committee are required. ※ view the detailsUJIターン者優先物件・金額応相談・居住区域:市街地・一部要畑地目変更・設備:洋式水洗トイレ、風呂プロパンガス
向いの5-043と一括売買も可能です。雨漏れ等があり、住むには修繕が必要です。家財道具が有りますが、契約が決まれば撤去します。土地の一部は農地につき、農業委員会での手続きが必要となります。
| Security deposit:敷金 | - / -- / - |
|---|---|
| Land:土地面積 | 558 m² |
| Building:建物面積 | 210 m² |
| Scale:建物規模 | 1 story / -1階建 / - |
| Structure:構造 | Wooden木造 |
| Built in:建築年 | 1965 |

Yamaguchi Prefecture, located on the western tip of Honshu, is a hidden gem for those considering relocating to Japan. This picturesque prefecture is known for its stunning natural landscapes, including the iconic Seto Inland Sea, lush mountains, and serene coastlines, providing a haven for outdoor enthusiasts. Unlike more populous areas like Tokyo or Osaka, Yamaguchi offers a more relaxed lifestyle with a close-knit community vibe, making it ideal for individuals or families seeking a slower, more fulfilling pace of life. The cost of living here is notably lower than in major metropolitan areas, which translates to more affordable property options. Buyers can find charming traditional homes, modern houses, and even quaint properties with rich historical backgrounds at prices that often fall within their budget. Furthermore, Yamaguchi boasts excellent transport links, including the Shinkansen (bullet train), allowing for easy access to larger cities for work or leisure, enhancing your ability to balance rural tranquility with urban convenience. Rich in cultural heritage, the region is also celebrated for its delicious local cuisine, particularly its seafood and sake. With a mix of natural beauty, historical significance, and economic viability, Yamaguchi Ken is an attractive option for those looking to invest in affordable property while enjoying a uniquely Japanese lifestyle that other prefectures may not offer.
AllAkiyas.com puts at your disposition thousands of Japanese real estate listings of properties available for sale or rent. Our extensive listings include detached houses, townhouses, apartments, commercial spaces, and vacant lots. We place a special focus on traditional vacant houses, known as akiya (or kominka in rural areas), and traditional townhouses, or machiya. You can easily search for properties across all of Japan's prefectures using your specific criteria.