





Add to lists:✕
The temple is the landlord of this property, and the biggest advantage of renting is that you can live in an expensive location that is difficult to buy, as long as you pay the monthly rent!本物件はお寺さんが地主の借地権となっております。借地権は毎月地代をお支払いすれば、値段が高くて購入が難しい立地にお住まいになれるのが最大のメリットになります!
Land:土地面積 | 166 m² |
---|---|
Building:建物面積 | 148 m² |
Scale:建物規模 | 2 stories2階建 |
Structure:構造 | Wooden木造 |
Built in:建築年 | 1982 |
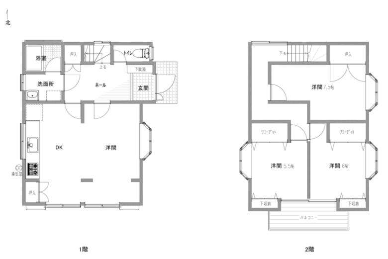
It is a one-story house in a green, quiet and atmospheric environment at the back of Omachi 4-chome, with a moist and adult atmosphere. It is a one-story detached house with a compact size of 52.88 square meters, and the 3LDK floor plan seems to be easy to use. The kitchen and bath have also been renovated before, and there is no old plumbing that is common in old detached houses! The ceiling of the kitchen has a skylight, which is bright enough during the day without turning on the light. A new wooden deck has been built on the west side of the living room, so it's nice to cool off in the evening with a beer in hand in the summer. The house is at the end of the stairs, but there is a parking lot for one car in front of the stairs, and it is covered! It's a little 23 minutes walk from the station, but isn't it a good place to enjoy the calm nature typical of Kamakura? Fixed-term rental for 3 years Non-smoking indoors Pets allowed (small dogs only)大町4丁目の奥の奥、緑深く静かで風情のある環境にある平屋、しっとりと大人の雰囲気漂う物件です。平屋の戸建で52.88㎡というキュッとしたサイズ、3LDKの間取りは使いやすそう。キッチンやお風呂も以前リフォームされていて、古い戸建にありがちな水回りの古さはありません!キッチンの天井には天窓があり、昼間は灯りをつけなくても十分明るいです。リビングの西側にはウッドデッキを新設しましたので、夏にはビール片手に夕涼みもいいですね〜。お家は階段を登った先にあるのですが、駐車場もその階段手前にしっかり1台分ありますよ、しかも屋根付き!駅から歩いて23分とちょっと離れていますが、鎌倉らしい落ち着いた自然を楽しむにはよいのでは?定期賃貸借3年間室内禁煙ペット可(小型犬のみ)
Security deposit:敷金 | 1 month (plus 1 month for small dog breeding)1ヶ月(小型犬飼育の場合はプラス1カ月) |
---|---|
Key money:礼金 | 1 month1カ月 |
Building:建物面積 | 53 m² |
Scale:建物規模 | 1st floor1階 |
Structure:構造 | One-story wooden building木造平屋建 |
Built in:建築年 | 1967 |
Surrounded by nature, living quietly and leisurely... This is a recommended property for those who yearn for such a life.自然に囲まれ静かにゆったり暮らして…そんな生活にあこがれちゃうなぁ、というあなたにおすすめの物件です。
Security deposit:敷金 | 22 |
---|---|
Key money:礼金 | 11 |
Building:建物面積 | 90 m² |
Scale:建物規模 | 2 stories2階建 |
Structure:構造 | Wooden slate roof木造スレート葺 |
Built in:建築年 | 2004 |
Get off at Kita-Kamakura Station, and head from Engaku-ji Temple to Meigetsu-in Temple. This is a quiet and charming road that truly captures the essence of Kamakura. There are many tourists coming and going, but it's calm. It's lively, but quiet. The property we're introducing this time is located on such a road. It's a two-story wooden building with a tiled roof, and the building area is 115.09 m2 (34.81 tsubo). Because it is located in a "Type 1 low-rise residential area," the property cannot be used 100% as a store. It is a "store and residence" property. Negotiable for restaurants. (Chinese food, yakiniku, etc. are not allowed.) The kitchen equipment is treated as residual property with no performance guarantee, but since the equipment from the previous store remains, you can start up immediately with low initial costs.北鎌倉駅を降り、円覚寺から明月院へと向かう道。静けさと趣きがあり、鎌倉らしさを心から感じられる道です。観光客は多く行き交っているけど、落ち着いている。賑わっているけど、静か。そんな道にあるのが、今回ご紹介する物件です。木造瓦葺の2階建て、建物面積115.09㎡(34.81坪)。「第一種低層住居専用地域」に存している為、物件を100%店舗として利用することはできません。「店舗兼住居」の物件となります。飲食店相談可。(中華・焼肉などはNG)厨房設備は性能保証のない残置物扱いとなりますが、以前の店舗の物が残っているので、イニシャルコストを抑えてすぐに開業できます。
Security deposit:敷金 | 66 |
---|---|
Key money:礼金 | 22 |
Building:建物面積 | 115 m² |
Scale:建物規模 | 2 stories2階建 |
Structure:構造 | Wooden tile roof木造瓦葺 |
Built in:建築年 | 1979 |
Kanagawa Prefecture, located just south of Tokyo, is a vibrant prefecture that seamlessly blends urban convenience with natural beauty, making it an exceptional choice for those considering relocation. One of its standout features is its proximity to Tokyo, offering a suburban lifestyle with easy access to the bustling capital—an appealing factor for professionals seeking a balance between work and leisure. Kanagawa is home to popular cities such as Yokohama, with its picturesque waterfront and lively international atmosphere, and Kamakura, famed for its cultural heritage and coastal charm. For nature lovers, the stunning landscapes of the Hakone region, known for its hot springs and views of Mt. Fuji, provide tranquil retreats just a stone’s throw away. Affordability is a crucial aspect for prospective buyers, and Kanagawa offers competitive property prices compared to the heart of Tokyo, particularly in areas like Kawasaki and Atsugi. Here, you can find spacious homes and apartments that fit various budgets, making it suitable for first-time buyers or families. Additionally, the local government has been actively promoting residential developments that cater to newcomers, ensuring a diverse community with ample amenities. Schools, parks, and transport systems are well-developed, adding to the region's appeal. Overall, Kanagawa Ken offers a dynamic lifestyle with a variety of housing options, making it a compelling choice for anyone looking to invest in property while enjoying both urban and natural facets of Japan.
AllAkiyas.com puts at your disposition thousands of Japanese real estate listings of properties available for sale or rent. Our extensive listings include detached houses, townhouses, apartments, commercial spaces, and vacant lots. We place a special focus on traditional vacant houses, known as akiya (or kominka in rural areas), and traditional townhouses, or machiya. You can easily search for properties across all of Japan's prefectures using your specific criteria.