
Verify availabilityAdd to lists:✕

I posted it on your site once, and other acquaintances and customers got it, but I couldn't get a contract, so I decided to post it again this time. This time, it is scheduled to be completely sold and vacant at the end of April next month. The family will move to my parents' home, Sendai City, Miyagi Prefecture. (Parents' care) That's why I'm selling it. Full renovation completed, three and a half years since the unoccupied property has been completed. When you move out, we will house clean all rooms. It is a property within walking distance along the Yamanote Line and is located in a very convenient location for commuting and moving. In addition, pets are allowed, and small to large dogs are allowed to live together. If you have a private car, you can take over the covered parking lot for 20,000 yen including consumption tax per month. (Within a 3-minute walk from the property, large vehicles are OK) In addition, the property is located at the intersection of Okubashi Street and Meiji Street, which are major trunk roads, and the transportation is extremely convenient. Within a 1-minute walk of the property there is a recently maintained park with a fountain, tennis and sports co一度貴社サイトに掲載し、他の知人顧客が付きましたが、契約まで至らず今回改めて掲載をしようと思いました。今回も完全売却で来月4月末に転居空室の予定になっています。実家宮城県仙台市へ世帯転居します。(両親の介護)その為、売却します。フルリノベーション完成、未入居状態物件から三年半になります。退去時は当方で全室ハウスクリーニングをおこないます。山手線沿線徒歩圏内物件で通勤や移動にとても便利な立地物件です。また、ペット可能で小型犬から大型犬まで同居OKです。(ペット規約あり)自家用車をお持ちの方は、屋根付き駐車場を月額消費税込み二万円にて承継できます。(物件から徒歩3分以内、大型車両OK)その他、主要幹線である尾久橋通りと明治通りの交差点に位置に物件があり、交通の便も極めて良いところです。物件から徒歩1分以内には、最近整備された公園(噴水あり)やテニスコート、スポーツコートがあります。治安も良く安心して暮らせる好環境立地です。
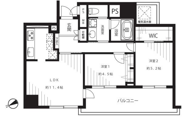
| Building:建物面積 | 65 m² |
|---|---|
| Scale:建物規模 | 2SLDK, wall core 65.30㎡2SLDK・壁芯65.30㎡ |
| Structure:構造 | SRC StructureSRC構造 |
| Built in:建築年 | 1987 |

私たち東宝ハウス城東は不動産売買を通じて、お客様一人一人と誠実に向き合い、これからの暮らしに「安心」と「満足」をお届けし続けていきます。
\ 人気物件は決まるのが早い!まずはお問合せを /
掲載終了まであと11日私たち東宝ハウス城東は不動産売買を通じて、お客様一人一人と誠実に向き合い、これからの暮らしに「安心」と「満足」をお届けし続けていきます。
\ 人気物件は決まるのが早い!まずはお問合せを /
掲載終了まであと11日
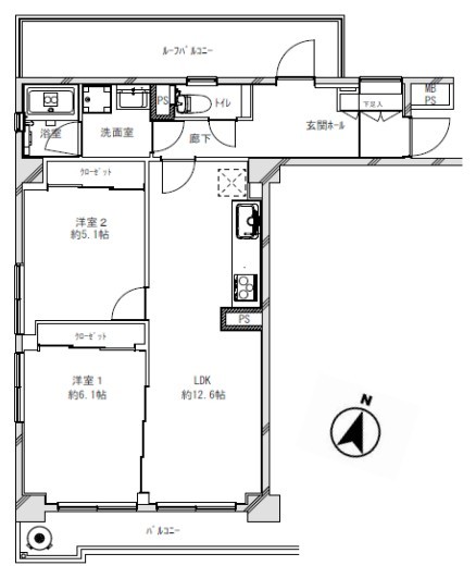
| Building:建物面積 | 66 m² |
|---|---|
| Exclusive area:専有面積 | 66 m² |
| Structure:構造 | RC 造RC 造 |
| Built in:建築年 | 1998 |

私たち東宝ハウス城東は不動産売買を通じて、お客様一人一人と誠実に向き合い、これからの暮らしに「安心」と「満足」をお届けし続けていきます。
\ 人気物件は決まるのが早い!まずはお問合せを /
掲載終了まであと11日私たち東宝ハウス城東は不動産売買を通じて、お客様一人一人と誠実に向き合い、これからの暮らしに「安心」と「満足」をお届けし続けていきます。
\ 人気物件は決まるのが早い!まずはお問合せを /
掲載終了まであと11日
| Building:建物面積 | 82 m² |
|---|---|
| Exclusive area:専有面積 | 82 m² |
| Structure:構造 | RC 造RC 造 |
| Built in:建築年 | 2006 |

[Sumitomo Real Estate Former Sale]
☆10th floor part southeast orientation Please take a look at the view☆【住友不動産旧分譲】
☆10階部分南東向き 是非眺望をご覧ください☆
| Building:建物面積 | 85 m² |
|---|---|
| Exclusive area:専有面積 | 85 m² |
| Built in:建築年 | 2004 |

[Formerly sold by Sumitomo Realty & Development] "Comprehensive shared facilities" and "Spacious living space (facing south, with good sunlight)"【住友不動産旧分譲】「充実した共用施設」と「ゆとりのある居住空間(南向き、陽当り良好)」
| Building:建物面積 | 81 m² |
|---|---|
| Exclusive area:専有面積 | 81 m² |
| Built in:建築年 | 2004 |

■ Mitsui Rehouse Akabane Center ■
14th floor (top floor), southeast corner room with good sunlight
There are only two units on the 14th floor, so the room location gives a sense of privacy■ 三井のリハウス赤羽センター ■
14階(最上階)、南東角部屋の陽当たりの良いお部屋です
14階のフロアには2住戸しかなくプライベート感が高い部屋位置です
| Building:建物面積 | 83 m² |
|---|---|
| Exclusive area:専有面積 | 83 m² |
| Built in:建築年 | 2004 |

■ Mitsui Rehouse Akabane Center ■
○ Access to 2 lines and 3 stations
○ Large-scale apartment complex with 5 buildings and a total of 863 units
Viewing is possible upon arranging a date and time, so please feel free to contact us.■ 三井のリハウス赤羽センター ■
○ 2路線3駅利用可能
○ 全5棟総戸数863戸の大規模マンション
日時調整の上、内覧可能ですので、お気軽にお問い合わせください
| Building:建物面積 | 76 m² |
|---|---|
| Exclusive area:専有面積 | 76 m² |
| Built in:建築年 | 2004 |

Relocating to the Tokyo To (Tokyo Metropolis) prefecture offers a dynamic lifestyle characterized by a unique blend of tradition and modernity. As the heart of Japan, Tokyo boasts an extensive transportation network, making it convenient to explore its bustling neighborhoods, cultural landmarks, and lush parks. The vibrant city is known for its shopping, dining, and entertainment options, alongside rich cultural experiences like art galleries, museums, and traditional festivals. Residents often enjoy a fast-paced lifestyle with a focus on work, socialization, and leisure. Finding affordable housing in Tokyo is a challenge due to high demand and limited space. While options exist in suburban areas or smaller units, prices tend to be significantly higher compared to other regions. Renting a small apartment in central Tokyo can be costly, but more reasonably priced options can be found in neighboring areas, such as Saitama or Chiba, where commuting is manageable. In terms of quality of life, Tokyo To offers excellent healthcare, education, and safety, often ranking high on global livability indices. However, the cost of living is relatively high, particularly for housing and daily expenses. Compared to other regions in Japan, like Hokkaido or Kyushu, where living costs are lower and nature is more accessible, Tokyo provides an unparalleled urban lifestyle; but it may come with the trade-off of higher expenses. Overall, Tokyo offers an exciting lifestyle for those willing to navigate the challenges of urban living and housing.
AllAkiyas.com puts at your disposition thousands of Japanese real estate listings of properties available for sale or rent. Our extensive listings include detached houses, townhouses, apartments, commercial spaces, and vacant lots. We place a special focus on traditional vacant houses, known as akiya (or kominka in rural areas), and traditional townhouses, or machiya. You can easily search for properties across all of Japan's prefectures using your specific criteria.