
Verify availabilityAdd to lists:✕

・Legal restrictions: Type 2 residential area
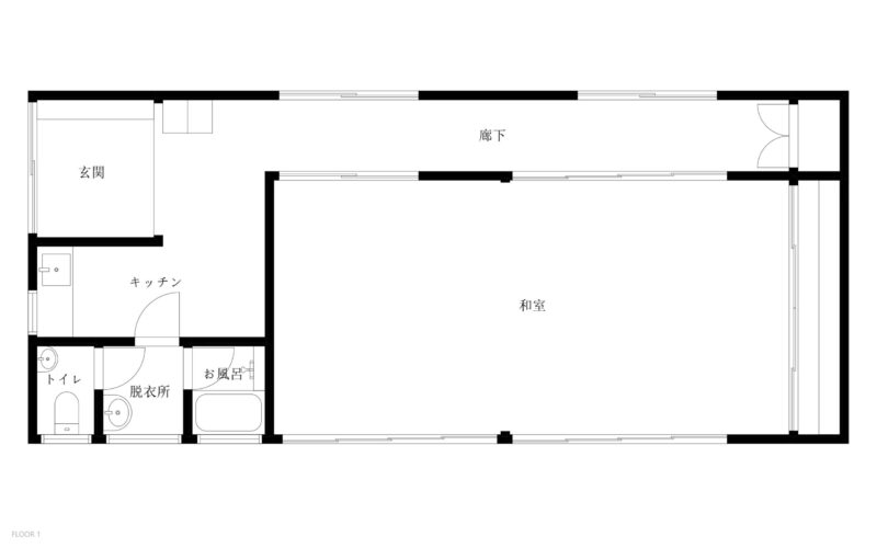
・Renovated (2023)
・Part of the neighboring house's roof and eaves cross over into the neighboring house's border.
・Located within a sewerage planning area, but the start date of service has not yet been decided.・法令等制限:第二種住居地域
・リフォーム済み(令和5年)
・隣宅の屋根・庇の一部が越境しています。
・下水道計画区域内ですが、供給開始時期は未定です。
| Security deposit:敷金 | Not clear不明 |
|---|---|
| Key money:礼金 | Not clear不明 |
| Building:建物面積 | Please inquire |
| Structure:構造 | Wooden木造 |
| Built in:建築年 | 1977 |

Mie Prefecture, located in the Kansai region of Japan, offers a unique blend of traditional and modern lifestyles. Nestled between the mountains and the coastline, Mie is renowned for its stunning natural beauty, particularly the Ise Shima National Park and the famous Ise Shrine. Residents enjoy a slower-paced life, with access to serene beaches, lush countryside, and local hot springs, fostering a strong sense of community and connection to nature. Finding affordable housing in Mie Ken can be easier compared to larger urban centers like Tokyo or Osaka. Average rent prices tend to be significantly lower, allowing for more spacious living arrangements. While the housing market is less dynamic than in metropolitan areas, opportunities for purchasing property exist, especially for those considering older homes in rural areas that come at lower costs. In terms of quality of life, Mie boasts excellent healthcare facilities, good public transportation options, and a variety of local markets showcasing fresh produce and seafood. The area is less crowded, offering a peaceful environment conducive to family life or retirement. The cost of living, while rising, remains relatively manageable compared to big cities. Overall, Mie Ken represents an attractive option for those seeking an affordable and fulfilling lifestyle in Japan, blending tranquility with cultural richness, while still being within reach of larger urban amenities.
AllAkiyas.com puts at your disposition thousands of Japanese real estate listings of properties available for sale or rent. Our extensive listings include detached houses, townhouses, apartments, commercial spaces, and vacant lots. We place a special focus on traditional vacant houses, known as akiya (or kominka in rural areas), and traditional townhouses, or machiya. You can easily search for properties across all of Japan's prefectures using your specific criteria.