
Verify availabilityAdd to lists:✕

5 minutes walk to supermarkets, convenience stores, home centers, and hospitals Convenient location! Two-story house with gardenスーパー、コンビニ、ホームセンター、病院まで徒歩5分利便性の良い立地!庭付きの二階建て住宅
| Land:土地面積 | 1475 m² |
|---|---|
| Building:建物面積 | 124 m² |
| Scale:建物規模 | 2 stories2階建 |
| Structure:構造 | Wooden two-story building木造2階建 |
| Built in:建築年 | 1968 |

Vacant house bank [Buy/sell] 2 million yen [Rental] 15,000 yen Tochigi Prefecture Haga-gun Motegi-cho Oji Onuki Large site in the mountains 5K lightweight steel frame two-story building with barn and one-story old house空き家バンク【売買】200万円【賃貸】1.5万円 栃木県芳賀郡茂木町大字小貫 山間の広い敷地 納屋・平屋古民家付き5K軽量鉄骨2階建
| Land:土地面積 | 1765 m² |
|---|---|
| Building:建物面積 | 132 m² |
| Structure:構造 | 2-story lightweight steel structure軽量鉄骨造2階建 |

A sunny house
Renovation of housing equipment required (boiler, septic tank, etc.)
The approach road to the property is narrow
Buying and selling takes time日当たり良好な一軒家
住宅設備要改修(ボイラー、浄化槽等)
物件までの進入路狭い
売買の場合時間を要します
| Land:土地面積 | 297 m² |
|---|---|
| Building:建物面積 | 104 m² |
| Structure:構造 | Wooden木造 |
| Built in:建築年 | 1986 |

Spacious environment surrounded by nature and not crowded with buildings
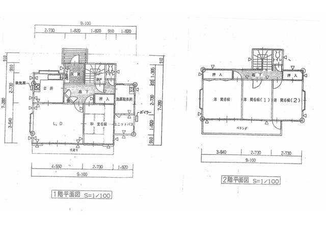
The floor plan is 6LDK and can accommodate a family.
The site is 295 tsubo (295 tsubo), so it can be used for various purposes such as parking for multiple cars and a home vegetable garden.
Partially hidden boundaries自然に囲まれており、建物が密集しておらず広々とした環境
間取は6LDKあり家族での入居可能
敷地は295坪ある為複数台の駐車や家庭菜園等様々な利用が可能
一部境界非明示
| Land:土地面積 | 977 m² |
|---|---|
| Building:建物面積 | 155 m² |
| Scale:建物規模 | 2-story / -2階建 / - |
| Structure:構造 | Wooden木造 |
| Built in:建築年 | 1998 |

Tochigi Prefecture, located in the Kanto region of Japan, offers a unique blend of natural beauty and a relaxed lifestyle, making it an increasingly attractive destination for those looking to immigrate. Known for its picturesque landscapes, including the iconic Nasu Mountain Range and numerous hot springs, Tochigi presents a serene environment that fosters a balance between urban living and nature. Compared to more densely populated and expensive prefectures like Tokyo or Kanagawa, Tochigi boasts significantly lower housing costs, making it accessible for first-time homebuyers and those wishing to invest in property. The average prices for homes in Tochigi are generally much more affordable, with options ranging from traditional wooden houses to modern apartments, catering to various preferences and budgets. Additionally, Tochigi is well-connected through various transport options, including trains and highways, ensuring easy access to nearby metropolitan areas such as Tokyo, appealing to commuters seeking a quieter home life without sacrificing convenience. The local culture, marked by festivals, local cuisine, and historic temples, creates a welcoming atmosphere for newcomers. Families and individuals alike can enjoy an excellent quality of life, with lower crime rates, reputable schools, and ample recreational opportunities. These attributes, combined with the affordability of housing and a slower pace of life, position Tochigi Ken as a compelling choice for those considering immigration to Japan.
AllAkiyas.com puts at your disposition thousands of Japanese real estate listings of properties available for sale or rent. Our extensive listings include detached houses, townhouses, apartments, commercial spaces, and vacant lots. We place a special focus on traditional vacant houses, known as akiya (or kominka in rural areas), and traditional townhouses, or machiya. You can easily search for properties across all of Japan's prefectures using your specific criteria.