
Verify availabilityAdd to lists:✕

In Nakazato, Odawara City, a one-story used house built in 1964 (Showa 39) has appeared on a spacious site of 64.82 tsubo. Buildings that have been layered over the years can breathe new life into modern lifestyles through "modern renovations" that retain the warmth and atmosphere of the Showa era. This house, which harmonizes nostalgia and comfort, will become "my favorite place in the world" for those who live there. The building is attractive for its ease of living unique to a one-story house, making it perfect for living with an eye on the future. The large site also expands the possibilities for how to live, such as gardening, home gardening, and hobby space. In addition, within a 5-minute walk, there is a large commercial facility "Dynacity" and other facilities that are convenient for daily shopping and dining out, providing a living environment with excellent living convenience. It is a house full of possibilities that allows you to realize your own life through renovation that takes advantage of the Showa era texture. It is recommended not only as a new home, but also as a second home or a base for hobbies.小田原市中里に、ゆったりとした敷地64.82坪に佇む、1964年(昭和39年)築の平屋中古戸建てが登場しました。時代を重ねた建物は、昭和のあたたかみや趣を今に残しながらも、現代のライフスタイルに合わせた「いまどきリノベーション」で、新たな息吹を吹き込むことができます。懐かしさと心地よさが調和するこの家は、住む人にとって「世界でいちばん好きな場所。」となることでしょう。建物は平屋ならではの暮らしやすさが魅力で、将来を見据えた生活にもぴったり。敷地が広いため、庭づくりや家庭菜園、趣味のスペースなど、住まい方の可能性も広がります。また、徒歩5分圏内には大型商業施設「ダイナシティ」をはじめ、日々の買い物や外食に便利な施設が点在しており、生活利便性にも優れた住環境が整っています。昭和の風合いを活かしたリノベーションで、自分らしい暮らしを実現できる、そんな可能性に満ちた一軒です。新しい住まいとしてはもちろん、セカンドハウスや趣味の拠点としてもおすすめです。
| Land:土地面積 | 214 m² |
|---|---|
| Building:建物面積 | 102 m² |
| Scale:建物規模 | 1 story above ground地上1階建 |
| Structure:構造 | Wooden木造 |
| Built in:建築年 | 1964 |

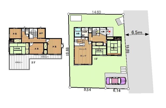
Fully renovated in July 2014 with "Newly built lookalike" Odawara City Kashiyama used house. It is very clean to use and you can start a new life immediately. You can feel the morning sun from the east side at the southeast corner lot, and the sun shines in all day because the light enters from the south side during the day. The south side is an open viewpoint in the urbanization control area. It is a living space with 4LDK + pantry + 2 barns, and you can live comfortably with storage capacity. The veranda on the second floor can also be used as a space for reading, tea time, conversation with family, hobbies, and workspaces, creating a space that balances a sense of openness and privacy. 【Renovation Details】Exterior wall siding, sash replacement (double glass), system kitchen, washbasin (1F/2F), wall and ceiling cloth, floor (partial) replacement「新築そっくりさん」で2014年7月フルリフォーム済み 小田原市栢山中古住宅。とてもきれいにお使いで、直ぐに新生活をスタートできます。 南東角地につき東側から朝日を感じ、日中は南側から光が入るため、1日中日差しが差し込みます。南側が市街化調整区域で開放的な見晴らしです。 4LDK+パントリー+納戸2ヶ所設けられ、収納力のあるゆったりと暮らせる住空間です。また2階にある縁側は、読書やティータイム、家族との会話や趣味スペース、ワークスペースとしても活用でき、開放感とプライバシーバランスが取れた空間を創出します。 【リフォーム内容】外壁サイディング貼り、サッシ交換(ペアガラス)、システムキッチン、洗面台(1F/2F)、壁・天井クロス、床(一部)貼替
| Land:土地面積 | 136 m² |
|---|---|
| Building:建物面積 | 116 m² |
| Scale:建物規模 | 2 floors above ground地上2階建 |
| Structure:構造 | Wooden木造 |
| Built in:建築年 | 1994 |

Ogimachi, Tahara City, a completely separate two-family house. It is an 8LDK with 2LDK+6LDK, and a large-scale interior renovation will be carried out in August 2025. Toilet, bathroom vanity, water heater, etc. have been replaced, floors and cloths have been replaced, fusuma and tatami mats have been replaced, and veranda waterproofing has been completed. The site is easy to use with a shaped site, and it is suitable for two households or rental use.田原市扇町、完全分離型の2世帯住宅。2LDK+6LDKの8LDKで、2025年8月に室内大規模リフォーム実施。トイレ、洗面化粧台、給湯器等水回り交換、床・クロス張替、襖・畳新調、ベランダ防水工事済。敷地は整形地で使いやすく、二世帯や賃貸併用にも適する物件。
| Land:土地面積 | 294 m² |
|---|---|
| Building:建物面積 | 227 m² |
| Scale:建物規模 | 2 floors above ground地上2階建 |
| Structure:構造 | Other軽量鉄骨造 |
| Built in:建築年 | 1995 |

This is Tajima from the Real Estate Information Center. Living at the gateway of Hakone and Izu, a one-story used detached house blessed with a quiet living environment in Itabashi, Odawara City has appeared. It is a home that feels nostalgic and warm.不動産情報センターの田嶋です。箱根・伊豆の玄関口に暮らす、小田原市板橋の静かな住環境に恵まれた平屋中古戸建てが登場しました。どこか懐かしくも温かみを感じる住まいです。
| Land:土地面積 | 214 m² |
|---|---|
| Building:建物面積 | 92 m² |
| Scale:建物規模 | 1 floor above ground地上1階平屋 |
| Structure:構造 | Wooden木造 |
| Built in:建築年 | 1977 |

内装リフォーム済
南向
始発駅
2沿線利用可
3沿線以上利用可
総合病院徒歩10分以内
スーパーが近い
閑静な住宅街
周辺交通量少なめ
市街地が近い
海が見える
高台に立地
眺望良好
通風良好
陽当り良好
2階建
整形地内装リフォーム済
南向
始発駅
2沿線利用可
3沿線以上利用可
総合病院徒歩10分以内
スーパーが近い
閑静な住宅街
周辺交通量少なめ
市街地が近い
海が見える
高台に立地
眺望良好
通風良好
陽当り良好
2階建
整形地
| Land:土地面積 | 239 m² |
|---|---|
| Building:建物面積 | 152 m² |
| Structure:構造 | 木造 スレート葺 2階建木造 スレート葺 2階建 |
| Built in:建築年 | 1991 |

内装リフォーム済
外装リフォーム済
内外装リフォーム済
南向
始発駅
2沿線利用可
3沿線以上利用可
小学校徒歩10分以内
海に近い
閑静な住宅街
市街地が近い
2階建
平坦地
開発分譲地内
外装コンクリート打
建築確認完了検査済証内装リフォーム済
外装リフォーム済
内外装リフォーム済
南向
始発駅
2沿線利用可
3沿線以上利用可
小学校徒歩10分以内
海に近い
閑静な住宅街
市街地が近い
2階建
平坦地
開発分譲地内
外装コンクリート打
建築確認完了検査済証
| Land:土地面積 | 149 m² |
|---|---|
| Building:建物面積 | 116 m² |
| Structure:構造 | 木造 セメントかわらぶき 2階建木造 セメントかわらぶき 2階建 |
| Built in:建築年 | 2006 |

Kanagawa Prefecture, located just south of Tokyo, is a vibrant prefecture that seamlessly blends urban convenience with natural beauty, making it an exceptional choice for those considering relocation. One of its standout features is its proximity to Tokyo, offering a suburban lifestyle with easy access to the bustling capital—an appealing factor for professionals seeking a balance between work and leisure. Kanagawa is home to popular cities such as Yokohama, with its picturesque waterfront and lively international atmosphere, and Kamakura, famed for its cultural heritage and coastal charm. For nature lovers, the stunning landscapes of the Hakone region, known for its hot springs and views of Mt. Fuji, provide tranquil retreats just a stone’s throw away. Affordability is a crucial aspect for prospective buyers, and Kanagawa offers competitive property prices compared to the heart of Tokyo, particularly in areas like Kawasaki and Atsugi. Here, you can find spacious homes and apartments that fit various budgets, making it suitable for first-time buyers or families. Additionally, the local government has been actively promoting residential developments that cater to newcomers, ensuring a diverse community with ample amenities. Schools, parks, and transport systems are well-developed, adding to the region's appeal. Overall, Kanagawa Ken offers a dynamic lifestyle with a variety of housing options, making it a compelling choice for anyone looking to invest in property while enjoying both urban and natural facets of Japan.
AllAkiyas.com puts at your disposition thousands of Japanese real estate listings of properties available for sale or rent. Our extensive listings include detached houses, townhouses, apartments, commercial spaces, and vacant lots. We place a special focus on traditional vacant houses, known as akiya (or kominka in rural areas), and traditional townhouses, or machiya. You can easily search for properties across all of Japan's prefectures using your specific criteria.