





Add to lists:✕
~POINT~
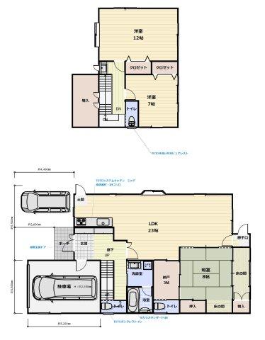
〇 It will be a large house with 10 rooms.
It is ♪ large enough for a large family
〇 It will be a house that has been expanded and renovated multiple times.
Showa 51 extension, Showa 54 extension, Showa 61 extension (property information area + about 113.85㎡)
〇 Garage with shutter (warehouse)
〇 The front road is about 2.7 m wide, but since it is immediately after entering from the main road, it can be accessed without difficulty even by ordinary car.
< Surrounding Environment>
・About 3 minutes on foot from Yoko Elementary School
・About 20 minutes on foot from Second Junior High School
〇 Due to the spread of the new coronavirus, materials and other items are soaring, so second-hand houses are attracting attention again.
■ Property details and surrounding environment ■ Mortgage loan and sale ■ Please feel free to contact us for renovation and reconstruction.~POINT~
〇10部屋ある大きな住宅になります。
大家族でも安心の広さです♪
〇複数回増改築をされた住宅になります。
昭和51年増築・昭和54年増築・昭和61年増築(物件情報面積+約113.85㎡)
〇シャッター付ガレージ(倉庫)
〇前道は幅員約2.7mになりますが、幹線道路より入ってすぐの為、普通自動車でも無理なくアクセス可能。
<周辺環境>
・余子小学校徒歩約3分
・第二中学校徒歩約20分
〇新型コロナウイルス蔓延の影響で材料等が高騰している為、中古住宅が再注目されてきております。
■物件詳細や周辺環境 ■住宅ローンやご売却 ■リフォームや建替え はお気軽にご相談ください。
Land:土地面積 | 775 m² |
---|---|
Building:建物面積 | 240 m² |
Structure:構造 | Wooden / 2-story木造 / 2階建 |
Built in:建築年 | 1969 |
~POINT~
〇 A floor plan that is suitable for the modern era, with insulation that rivals new construction and a focus on earthquake resistance.
〇 Ample storage space, including a laundry room, walk-in closet, and pantry.
〇 Insulation work: Window replacement, interior window installation, and insulation renovation of the floor, walls, and ceiling.
〇 Renovated house with changed floor plan * 5DK to 3LDK
〇 Exterior wall painting and new front door planned!
〇 Complete new plumbing
〇 Property with existing housing defect insurance
<Surrounding area>
・ Approximately 14 minutes walk to Tonoe Elementary School
・ Approximately 11 minutes walk to Third Junior High School
〇 Materials and other items are rising in price due to the spread of the new coronavirus.
As a result, used houses are attracting attention.
■ Please feel free to contact us for any inquiries regarding mortgages, sales, renovations, and rebuilding ♪~POINT~
〇新築に負けない断熱、耐震にこだわった今の時代に合った間取り。
〇ランドリールーム・ウォークインクローゼット・パントリ―など収納充実。
〇断熱工事:窓の取替・内窓設置・床下、壁、天井を断熱改修。
〇間取り変更のリノベーション住宅※5DK→3LDKへ
〇外壁塗装及び玄関戸新調予定!
〇水廻り一式新調
〇既存住宅瑕疵保険加入物件
<周辺環境>
・外江小学校まで徒歩約14分
・第三中学校まで徒歩約11分
〇新型コロナウイルス蔓延の影響で材料等が高騰しています。
その為中古住宅が注目されております。
■住宅ローンやご売却 ■リフォームや建替え のご相談もお気軽にお問い合せ下さい♪
Land:土地面積 | 271 m² |
---|---|
Building:建物面積 | 120 m² |
Structure:構造 | Wooden / 2-story木造 / 2階建 |
Built in:建築年 | 1978 |
Vacant house bank [Sale] 4.9 million yen Sotoe Town, Sakaiminato City, Tottori Prefecture Large site 6DK 2-story old folk house Flush toilet Roundabout edge / continuation There is a space空き家バンク【売買】490万円 鳥取県境港市外江町 広い敷地 6DK2階建古民家 水洗トイレ 回り縁・続き間有
Land:土地面積 | 578 m² |
---|---|
Building:建物面積 | 114 m² |
Structure:構造 | Two-story wooden structure木造2階建 |
Tottori, a less-visited and rural prefecture in Japan, is known for having a relatively higher number of vacant houses, or "akiya," in comparison to more populous regions of the country. This surplus of vacant houses presents a unique opportunity for individuals interested in purchasing property at affordable prices.
Life in Tottori is characterized by a slower pace, tranquil surroundings, and a strong connection to traditional Japanese culture. The prefecture is famous for its stunning sand dunes, pristine beaches, and natural beauty. Tottori offers a quieter, more relaxed lifestyle, making it appealing to individuals looking to escape the hustle and bustle of major cities.
The cost of living in Tottori is generally lower than in urban centers like Tokyo or Osaka. However, job opportunities can be more limited, and it's essential to consider employment prospects when planning to live in Tottori. Those with remote work options or a source of income that doesn't rely on local job markets may find Tottori particularly attractive for its affordability and quality of life.
AllAkiyas.com puts at your disposition thousands of Japanese real estate listings of properties available for sale or rent. Our extensive listings include detached houses, townhouses, apartments, commercial spaces, and vacant lots. We place a special focus on traditional vacant houses, known as akiya (or kominka in rural areas), and traditional townhouses, or machiya. You can easily search for properties across all of Japan's prefectures using your specific criteria.