



Add to lists:✕
9 minutes by car from JR Nishisagawa Station! It is an old private house built in Meiji 2 in a quiet location ♪! There is also a Goemon bath on the premises!JR西佐川駅から車で9分!静かな立地です♪明治2年築の古民家です!敷地には五右衛門風呂もあります!
Land:土地面積 | 474 m² |
---|---|
Building:建物面積 | 59 m² |
Scale:建物規模 | One-story house平屋 |
Structure:構造 | Old folk house古民家 |
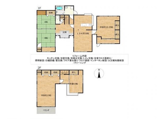
This property has many rooms and is extremely sunny! Families and those looking for a spacious home are welcome.部屋数が多く、日当たり抜群の物件です!広いお家を希望される方、ファミリーの方大歓迎♪
Land:土地面積 | 242 m² |
---|---|
Building:建物面積 | 178 m² |
Scale:建物規模 | Building area: 178.32m² Land area: 242.02m²建物面積:178.32m² 土地面積:242.02m² |
Structure:構造 | Wooden木造 |
Built in:建築年 | 2024 |
It is a one-story house in an old private house, and there is a two-story barn on a sunny ♪ site!古民家の平屋で、日当たり良好♪敷地には2階建て納屋があります!
Land:土地面積 | 443 m² |
---|---|
Building:建物面積 | 196 m² |
Scale:建物規模 | Building area: 196.96m² Land area: 443.21m²建物面積:196.96m² 土地面積:443.21m² |
Structure:構造 | One-storied house平屋 |
The property has been earthquake-resistant, and there is a warehouse and a field next to it. It is also a two-story property with good sunlight!耐震工事済で、物件の隣には倉庫も畑もついています♪また、日当たり良好で二階建て物件です!
Security deposit:敷金 | Not clear不明 |
---|---|
Key money:礼金 | Not clear不明 |
Building:建物面積 | 123 m² |
Exclusive area:専有面積 | 123 m² |
Structure:構造 | Wooden木造 |
This house is located in a quiet village and gets plenty of sunlight!
You can get a great view of the surrounding area from the spacious garden!静かな集落で、日当たり良好なお家です!
広いお庭から周辺を一望できます!
Security deposit:敷金 | Not clear不明 |
---|---|
Key money:礼金 | Not clear不明 |
Building:建物面積 | 62 m² |
Exclusive area:専有面積 | 62 m² |
Structure:構造 | Wooden木造 |
There is almost no repair, and all of them are flooring! It is ♪ a one-story and compact property with sunlight ◎補修はほとんどいらず、すべてフローリングとなっています! 日当たり◎、平屋でコンパクトな物件です♪
Security deposit:敷金 | 10,000 yen10,000円 |
---|---|
Key money:礼金 | ~Less than 30,000 yen/month (rental)~3万円未満/月(賃貸) |
Land:土地面積 | 138 m² |
Building:建物面積 | 58 m² |
Structure:構造 | One-storied house平屋 |
Kochi Prefecture, located on Shikoku Island, offers a unique lifestyle that blends traditional Japanese culture with stunning natural landscapes. Known for its lush greenery, beautiful coastline, and rich history, residents enjoy a slower pace of life surrounded by breathtaking scenery, including mountains and beaches. The area is famous for its local cuisine, especially Katsuo no Tataki (seared bonito), and vibrant festivals like the Yosakoi Dance Festival. Affordable housing in Kochi Ken is relatively accessible compared to major urban centers like Tokyo or Osaka. The cost per square meter for property tends to be lower, making it possible to find spacious homes at reasonable prices. Online platforms and local real estate agencies can assist in navigating the housing market, with options ranging from traditional machiya (townhouses) to modern apartments. In terms of quality of life, Kochi Ken offers a balance of tranquility and community spirit. The region has lower crime rates, pleasant weather, and abundant outdoor recreational opportunities, especially for hiking, fishing, and surfing enthusiasts. While Kochi's infrastructure is not as extensive as in larger cities, public transport is reliable, and daily conveniences are available in local markets. The overall cost of living is significantly lower than in metropolitan regions, allowing for a comfortable lifestyle with more affordable expenses. For those seeking an authentic Japanese experience away from the hustle and bustle, Kochi Ken can be a compelling choice.
AllAkiyas.com puts at your disposition thousands of Japanese real estate listings of properties available for sale or rent. Our extensive listings include detached houses, townhouses, apartments, commercial spaces, and vacant lots. We place a special focus on traditional vacant houses, known as akiya (or kominka in rural areas), and traditional townhouses, or machiya. You can easily search for properties across all of Japan's prefectures using your specific criteria.