





Añadir a listas:✕
7 habitaciones + 3 garajes DK + casa Aozora Asahimachi en venta
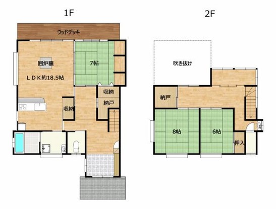
A 10 minutos a pie se encuentran el Ayuntamiento de Gosen, el Hospital Central de Gosen, el Centro Comercial Gosen, etc. Tiene un sitio de 171 tsubo en el área urbana, no en el campo ni en los suburbios. Debido a que es de 7 habitaciones + DK, es posible vivir en un gran número de personas.7部屋+DK 車庫3台+青空 旭町 売住宅
徒歩10分圏内に五泉市役所、五泉中央病院、五泉ショッピングセンター等あります。田舎や郊外ではなく市街地内で171坪の敷地を有します。7部屋+DKの為、大人数でも居住可能です。
Terreno:土地面積 | 568 m² |
---|---|
Edificio:建物面積 | 144 m² |
Escala:建物規模 | 2 plantas sobre rasante地上2階 |
Estructura:構造 | De madera木造 |
Construido en:建築年 | 1976 |
Todas las akiya en un solo lugar
¡Encuentre la casa vacante perfecta en Japón!
La prefectura de Niigata, situada en la costa del Mar de Japón, ofrece un estilo de vida tranquilo y acogedor, ideal para aquellos que buscan un ambiente más relajado en comparación con ciudades como Tokio. Esta región es conocida por su belleza natural, incluyendo montañas y mar, lo que proporciona oportunidades para actividades al aire libre, como esquí en invierno y senderismo en verano. Además, Niigata es famosa por sus productos agrícolas, especialmente su arroz, lo que la convierte en un lugar atractivo para los amantes de la gastronomía local.
En términos de vivienda, encontrar opciones asequibles en Niigata es relativamente fácil en comparación con las grandes metrópolis. Los precios de alquiler suelen ser mucho más bajos, lo que permite a las familias disfrutar de espacios más amplios y confortables. Aunque la disponibilidad de vivienda puede variar según la ubicación específica dentro de la prefectura, en general, vivir en Niigata es más accesible.
En cuanto a calidad y costo de vida, Niigata ofrece un equilibrio atractivo. Mientras que las grandes ciudades presentan más facilidades y empleo, Niigata proporciona tranquilidad, naturaleza y comunidad, todo a un costo que es un 30%-40% menos elevado que en zonas urbanas más densas, lo que la convierte en un destino ideal para familias jóvenes y jubilados.
AllAkiyas.com pone a su disposición miles de anuncios inmobiliarios japoneses de propiedades en venta o en alquiler. Nuestra vasto catálogo incluye casas unifamiliares, casas adosadas, apartamentos, locales comerciales y terrenos baldíos. Nos centramos especialmente en las casas tradicionales vacías, conocidas como akiya (o kominka en zonas rurales), y las casas adosadas tradicionales, o machiya. Puede buscar fácilmente propiedades en todas las prefecturas de Japón utilizando sus criterios específicos.