Verifique disponibilidadAñadir a listas:✕

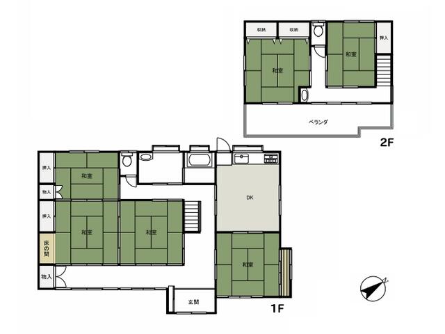
* Como edificios auxiliares, el área total de (1) almacén: 48.59㎡ (edificio de un piso con techo de pizarra con estructura de acero liviana) y (2) Benjo: 3.72㎡ (edificio de un piso de madera o paja) se expresa como "otros 52.01㎡".
★ Hay un edificio en el sitio que se puede utilizar como almacén.
¿Qué tal una vida en la que puedas disfrutar de pasatiempos como la jardinería en un sitio grande?
★ Comodidad y acceso
Centros comerciales: Hay supermercados y tiendas de conveniencia repartidos por la zona, lo que es conveniente para las compras diarias.
★ Un entorno rodeado de naturaleza e historia
Entorno natural: En las inmediaciones hay ríos y parques, y se puede disfrutar de la naturaleza en las cuatro estaciones, como la floración de los cerezos en primavera.
Atracciones históricas: La ciudad de Gyoda es el lugar de nacimiento del topónimo "Saitama" y alberga muchos monumentos históricos, como el castillo de Shinobi y las tumbas antiguas de Saitama.
★ Es una zona atractiva con un rico entorno natural y una importante infraestructura habitable. Se puede decir que es una zona cómoda para vivir para una amplia gama de personas, desde la generación que cría a los hijos hasta la generac※付随建物として、①物置:48.59㎡(軽量鉄骨造スレート葺平屋建) ②弁上:3.72㎡(木造かわらぶき平屋建)をの面積を合計して「その他52.01㎡」と表記しております。
★敷地内に倉庫として利用可能な建物があります。
広い敷地で家庭菜園などの趣味を楽しむ生活にいかがでしょうか。
★生活利便性とアクセス
買い物施設:周辺にはスーパーやコンビニが点在し、日常の買い物に便利です。
★自然と歴史に囲まれた環境
自然環境:周辺には川や公園があり、春には桜が咲き誇るなど、四季折々の自然を楽しめます。
歴史的魅力:行田市は「埼玉」の地名発祥の地であり、忍城や埼玉古墳群など、歴史的な名所が多数存在します。
★自然豊かな環境と充実した生活インフラが魅力のエリアです。子育て世代からシニア世代まで、幅広い層にとって住みやすい地域と言えるでしょう。
★建替えすることも可能です。
近隣施設
★行田市立見沼小学校・・・902m
★行田市立見沼中学校・・・828m
★ローソン行田125号バイパス店・・・770m
★マクドナルド行田バイパス店・・・599m
★見沼公園・・・593m
| Terreno:土地面積 | 1028 m² |
|---|---|
| Edificio:建物面積 | 111 m² |
| Escala:建物規模 | 2 historias2階建て |
| Estructura:構造 | Techo de tejas de madera木造 瓦葺 |
| Construido en:建築年 | 1988 |

■ La entrega es de 3 meses después de la firma del contrato.
Terreno residencial antes de la delimitación. La reconstrucción es posible mediante la obtención de la certificación del artículo 60 de la Ordenanza para la Aplicación de la Ley de Planificación Urbana.
Esquema del edificio 2: Construido en junio del 50, superficie: 372,55㎡ en el 1er piso, 251,70㎡ en el 2º piso, 24㎡ en el 3º piso, 648,25㎡ en total. Ampliado en abril del 54. Lugar: Sala de examen
Terreno residencial antes de la delimitación. Al obtener la certificación del Artículo 60 de las Regulaciones de Aplicación de la Ley de Planificación Urbana, es posible reconstruir un edificio del mismo sitio, uso y escala.
■ Adyacente a la carretera pública noroeste unos 4,0 m y al lado sur unos 7,3 m
* Hay una clínica separada (edificio adjunto: sala de calderas) en las instalaciones de esta propiedad.
Tipo: Clínica, Estructura: Hormigón armado, cubierta plana con estructura de acero de 3 pisos,
Superficie: 1ª planta 372,55㎡ 2ª planta 251,70㎡ 3ª planta 24㎡ Total 648,25㎡
Construido en junio de 50, Ampliación (1) Fecha: abril 54 (2) Lugar: Sala de examen■引渡しは契約後3ヶ月・
線引き前宅地。都市計画法施行規則の60条証明を取得することで再建築可。
建物2概要:昭和50年6月築、床面積:1階372.55㎡ 2階251.70㎡ 3階24㎡ 合計648.25㎡。昭和54年4月増築。増築箇所:診察室
線引き前宅地。都市計画法施行規則の60条証明を取得することで、同一敷地・用途・規模の建物の建替え可
■北西側公道約4.0mおよび南側約7.3mに接道
※本物件敷地内に別に診療所(付属建物:ボイラー室)あり
種類:診療所、構造:鉄筋コンクリート・鉄骨造陸屋根3階建、
床面積:1階372.55㎡ 2階251.70㎡ 3階24㎡ 合計648.25㎡
昭和50年6月築、増築①年月日:昭和54年4月②箇所:診察室
| Terreno:土地面積 | 3196 m² |
|---|---|
| Edificio:建物面積 | 373 m² |
| Escala:建物規模 | 2 historias2階建て |
| Estructura:構造 | De madera木造 |
| Construido en:建築年 | 2000 |

Cuenta con una amplia superficie habitable con una superficie total construida de 149,46 metros cuadrados y un gran jardín donde se pueden instalar muebles de exterior como sillas de jardín, por lo que si instala asientos en la terraza, podrá disfrutar de comidas y té al aire libre.ゆったりめの延床面積149.46㎡の居室空間、更にガーデンチェアなど野外家具も設置いただける広い庭付なので、テラス席を設ければオープンエアで食事やお茶が楽しめます。
| Terreno:土地面積 | 638 m² |
|---|---|
| Edificio:建物面積 | 149 m² |
| Escala:建物規模 | 2 plantas sobre rasante地上2階 |
| Estructura:構造 | De madera木造 |
| Construido en:建築年 | 1995 |

La espaciosa sala de estar tiene una superficie total de 149,56 m² y está equipada con un balcón en la azotea que le permite disfrutar del espacio abierto y la pintoresca vista del vasto cielo al atardecer.広々とした延床面積149.56㎡の居室空間、更に突き抜ける空間を堪能できるルーフバルコニー付なので、絵心のある夕暮れの大きな空模様が楽しめます。
| Terreno:土地面積 | 303 m² |
|---|---|
| Edificio:建物面積 | 150 m² |
| Escala:建物規模 | 2 plantas sobre rasante地上2階 |
| Estructura:構造 | De madera木造 |
| Construido en:建築年 | 1997 |

Debido a que está orientada al sur, se mantiene cálido incluso en invierno, cuando sale el sol por un corto tiempo. Además, con una amplia superficie total de 117,58 m2, hay mucho espacio habitable. Un 3LDK que será una base segura para tu familia. Por favor, ven y compruébalo tú mismo.南向なので、陽が出ている時間が短い冬でも暖かさキープ。また広々とした延床面積117.58㎡で居住スペースにゆとり充分。家族の安心拠点になる3LDK。是非その目でお確かめください。
| Terreno:土地面積 | 321 m² |
|---|---|
| Edificio:建物面積 | 118 m² |
| Escala:建物規模 | 2 plantas sobre rasante地上2階 |
| Estructura:構造 | De madera木造 |
| Construido en:建築年 | 1998 |
Todas las akiya en un solo lugar
¡Encuentre la casa vacante perfecta en Japón!

La prefectura de Saitama, ubicada al norte de Tokio, ofrece un estilo de vida atractivo y dinámico, ideal para familias y personas que buscan estar cerca de la capital japonesa sin los altos costos de vida. Saitama cuenta con una excelente infraestructura de transporte, facilitando los desplazamientos a Tokio en aproximadamente 30 minutos en tren, lo que permite disfrutar de las oportunidades laborales y culturales de la metrópoli mientras se vive en un ambiente más tranquilo.
En términos de vivienda, Saitama suele tener opciones más asequibles que Tokio, aunque la disponibilidad de viviendas puede variar por localidades. Ciudades como Saitama (capital de la prefectura) o Kawaguchi ofrecen una combinación de apartamentos y casas familiares a precios competitivos. Sin embargo, los precios han ido en aumento, por lo que es recomendable investigar y actuar con rapidez.
En comparación con otras regiones de Japón, Saitama tiene una calidad de vida alta, con acceso a parques, escuelas y servicios de salud de calidad. A menudo, las familias eligen Saitama por su ambiente seguro y comunitario. En resumen, Saitama es una excelente opción para quienes buscan un balance entre vida urbana y tranquilidad suburbana.
AllAkiyas.com pone a su disposición miles de anuncios inmobiliarios japoneses de propiedades en venta o en alquiler. Nuestra vasto catálogo incluye casas unifamiliares, casas adosadas, apartamentos, locales comerciales y terrenos baldíos. Nos centramos especialmente en las casas tradicionales vacías, conocidas como akiya (o kominka en zonas rurales), y las casas adosadas tradicionales, o machiya. Puede buscar fácilmente propiedades en todas las prefecturas de Japón utilizando sus criterios específicos.