
Verifique disponibilidadAñadir a listas:✕

Abril 2025 Renovación interior y exterior (contenido): cocina, baño, inodoro, pared, baño, pared exterior, techo, estacionamiento / Información proporcionada por: Kachitas2025年4月内外装リフォーム済(内容):キッチン・浴室・トイレ・壁・洗面所・外壁・屋根・駐車場 / 情報提供:カチタス
| Terreno:土地面積 | 282 m² |
|---|---|
| Edificio:建物面積 | 84 m² |
| Escala:建物規模 | 1er piso1階 |
| Estructura:構造 | De madera木造 |
| Construido en:建築年 | 2002 |

Buena luz solar, edificio principal espacioso de Heike, edificio Heike independiente y espacio de almacenamiento.
La tierra y los campos de arroz adyacentes a la zona residencial se pueden disfrutar como huerto casero. También hay una casa independiente de una planta, lo que la hace ideal para dos familias. Hay un almacén para espacio de almacenamiento.日当たり良好、ゆったりした平家の母屋、別棟平家、倉庫あり
宅地に隣接した地目・田は、現況家庭菜園として楽しめます。別棟平家もあり二世帯用にも最適。収納スペースとしての倉庫あり。
| Terreno:土地面積 | 2096 m² |
|---|---|
| Edificio:建物面積 | 227 m² |
| Escala:建物規模 | 1 piso sobre rasante地上1階平屋 |
| Estructura:構造 | De madera木造 |
| Construido en:建築年 | 1948 |

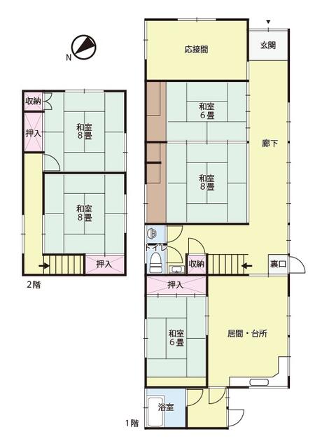
La tierra tiene más de 200 pings. Plano detallado: 7DK (1ª planta: 8 esterillas× 2, 1ª planta: 6 tatamis ×1, 1 planta: 8,5 tatami colchonetas ×1, 1 planta: 8 tatami colchonetas ×1, segunda planta: 7 tatami colchonetas ×2, 1era planta: DK8 tata). Se da prioridad a la situación actual, y cada imagen es una figura de referencia.土地200坪以上。詳細間取:7DK(1階:和8帖×2、1階:和6帖×1、1階:洋8.5帖×1、1階:洋8帖×1、2階:洋7帖×2、1階:DK8帖)。現況優先、各画像は参考図。
| Terreno:土地面積 | 748 m² |
|---|---|
| Edificio:建物面積 | 178 m² |
| Escala:建物規模 | 2 historias2階建 |
| Estructura:構造 | De madera木造 |
| Construido en:建築年 | 1976 |

Tatami, biombos shoji, tokonoma... el espacio de relax comienza desde la sala de estilo japonés. ¡El espacioso edificio de 107 tsubo también se recomienda para aquellos que estén considerando una casa bifamiliar!畳、障子、床の間…くつろぎの空間は和室から。 ゆとりある建物107坪は、二世帯住宅をご検討の方にもおすすめです!
| Terreno:土地面積 | 746 m² |
|---|---|
| Edificio:建物面積 | 355 m² |
| Escala:建物規模 | 2 plantas sobre rasante地上2階 |
| Estructura:構造 | De madera木造 |
| Construido en:建築年 | 1984 |
Todas las akiya en un solo lugar
¡Encuentre la casa vacante perfecta en Japón!

Mudarse a la prefectura de Akita ofrece una experiencia de vida única, caracterizada por un ambiente rural tranquilo rodeado de naturaleza. Akita es conocida por sus paisajes hermosos, incluyendo montañas y lagos, lo que permite disfrutar de actividades al aire libre como senderismo y esquí. La cultura local es rica en festividades y tradiciones, destacando eventos como el famoso Festival Kanto.
En términos de vivienda, Akita se presenta como una opción más asequible en comparación con las grandes ciudades, como Tokio o Osaka. Aunque la disponibilidad de viviendas puede variar, generalmente se pueden encontrar apartamentos y casas a precios razonables, especialmente en áreas más rurales.
En cuanto a calidad de vida, Akita cuenta con comunidades unidas y un ritmo de vida más relajado. Sin embargo, el acceso a servicios culturales y de entretenimiento puede ser limitado en comparación con las grandes urbes. A pesar de esto, muchos residentes valoran la tranquilidad y la calidad del aire que se disfruta en Akita. En resumen, es una excelente opción para quienes buscan un estilo de vida más tranquilo y asequible en Japón.
AllAkiyas.com pone a su disposición miles de anuncios inmobiliarios japoneses de propiedades en venta o en alquiler. Nuestra vasto catálogo incluye casas unifamiliares, casas adosadas, apartamentos, locales comerciales y terrenos baldíos. Nos centramos especialmente en las casas tradicionales vacías, conocidas como akiya (o kominka en zonas rurales), y las casas adosadas tradicionales, o machiya. Puede buscar fácilmente propiedades en todas las prefecturas de Japón utilizando sus criterios específicos.