





Añadir a listas:✕
梁や天井を抜いたあとのラフさはそのままに、天井の高さが気持ちのいいハンモックが似合いすぎるリビング。南向きの窓からはキラキラと木漏れ日が差し込み…なんて居心地がいいんだ。このままハンモックに揺られて昼寝したい。壁や柱は白一色に塗られ、今まで見たこともないような幅太ホワイトオークのフローリング。キッチンもお風呂もピカピカ!築40年の古家だったとは想像ができない。ああ、全部が新しいんだなと思い気や、古い建具や、雪の結晶みたいなレトロな磨りガラスはそのままに。古家しか出せない味をしっかりと残しつつも、生まれ変わった家。それが本物件です。まずは玄関を開けて嬉しいサプライズ。正面の壁が黒板塗装。玄関を開けるたびに楽しみがある!たとえば、来客にあわせて“Welcome”って描きたくなっちゃう。続いて、洗面所・風呂・トイレ。まず全部の扉にキュン。古道具屋にあるような扉、ナイスな色、磨りガラスから光が漏れる感じ。すごくいい。お風呂は可愛いタイル貼り。洗面所は足場板の造作棚がナイス!もちろん、トイレは最新っす。そしてキッチン。これまたタイルにやられます。キッチンにはオーブンや食洗機も完備。こんな素敵なキッチンなら毎日ごはんをつくるのが楽しくなりそう。羨ましい!真っ白な階段を上がり2階へ。幅太のフローリングは2階の部屋も全部。白の塗り壁とグレーの建具が絶妙。新しいんだけど、温かみと懐かしさを感じるお部屋に仕上がってます。切り取られた窓からは葉山の緑が見えてナイスビュー。押入の横のスペースをつかった足場板の机とベストマッチの椅子にもやられたぁ!そうそう、このお家の家具や照明は一部を除き、付いてきます。家具付きリノベ物件です。忘れちゃいけない外構部分。カースペースは車種にもよりますが2台分。きれいに仕上げられています。階段を降りると芝生のお庭に元気な植栽たち。ウッドデッキも付いてますよ〜!この家から葉山公園や海までは歩いて10分。海で遊んだら水着のまま帰ってきて、外水栓でガンガン遊び道具と体を洗いましょう。今でも十分、居心地のいい家ですが、お気に入りの家具や小物を置いたり、造作したり。家族の思い出が重なるたびに本当の心地よさが生まれていくのだと思います。いつでも内見可能です。ご興味ある方はお気軽にご連絡ください!梁や天井を抜いたあとのラフさはそのままに、天井の高さが気持ちのいいハンモックが似合いすぎるリビング。南向きの窓からはキラキラと木漏れ日が差し込み…なんて居心地がいいんだ。このままハンモックに揺られて昼寝したい。壁や柱は白一色に塗られ、今まで見たこともないような幅太ホワイトオークのフローリング。キッチンもお風呂もピカピカ!築40年の古家だったとは想像ができない。ああ、全部が新しいんだなと思い気や、古い建具や、雪の結晶みたいなレトロな磨りガラスはそのままに。古家しか出せない味をしっかりと残しつつも、生まれ変わった家。それが本物件です。まずは玄関を開けて嬉しいサプライズ。正面の壁が黒板塗装。玄関を開けるたびに楽しみがある!たとえば、来客にあわせて“Welcome”って描きたくなっちゃう。続いて、洗面所・風呂・トイレ。まず全部の扉にキュン。古道具屋にあるような扉、ナイスな色、磨りガラスから光が漏れる感じ。すごくいい。お風呂は可愛いタイル貼り。洗面所は足場板の造作棚がナイス!もちろん、トイレは最新っす。そしてキッチン。これまたタイルにやられます。キッチンにはオーブンや食洗機も完備。こんな素敵なキッチンなら毎日ごはんをつくるのが楽しくなりそう。羨ましい!真っ白な階段を上がり2階へ。幅太のフローリングは2階の部屋も全部。白の塗り壁とグレーの建具が絶妙。新しいんだけど、温かみと懐かしさを感じるお部屋に仕上がってます。切り取られた窓からは葉山の緑が見えてナイスビュー。押入の横のスペースをつかった足場板の机とベストマッチの椅子にもやられたぁ!そうそう、このお家の家具や照明は一部を除き、付いてきます。家具付きリノベ物件です。忘れちゃいけない外構部分。カースペースは車種にもよりますが2台分。きれいに仕上げられています。階段を降りると芝生のお庭に元気な植栽たち。ウッドデッキも付いてますよ〜!この家から葉山公園や海までは歩いて10分。海で遊んだら水着のまま帰ってきて、外水栓でガンガン遊び道具と体を洗いましょう。今でも十分、居心地のいい家ですが、お気に入りの家具や小物を置いたり、造作したり。家族の思い出が重なるたびに本当の心地よさが生まれていくのだと思います。いつでも内見可能です。ご興味ある方はお気軽にご連絡ください!
Terreno:土地面積 | 155 m² |
---|---|
Edificio:建物面積 | 82 m² |
Escala:建物規模 | 2階建2階建 |
Estructura:構造 | 木造2階建木造2階建 |
Construido en:建築年 | 1976 |
Una casa antigua con un jardín de césped soleado y vista al mar. En primer lugar, el terreno tiene más de 120 tsubo en la esquina sureste, ¡y es espacioso! ¡El jardín también es grande! ¡Brillante! ¡La casa tiene unos 40 años y tiene el sabor justo! La renovación ya duele. Es un boom marino desde el segundo piso, ¡así que es posible que realmente lo desees!日当りの良い芝生の庭とオーシャンビューを兼ね備えた古家。まず土地が南東角地で120坪以上あって、広い!庭も広い!明るい!家も築40年くらいでちょうど良い味わいなんですよね!もうリノベーション心が疼きます。そこに来て2階から海ドーンですから、マジで自分が欲しいかも!
Terreno:土地面積 | 406 m² |
---|---|
Edificio:建物面積 | 104 m² |
Escala:建物規模 | 2 historias2階建 |
Estructura:構造 | Estructura de madera de dos pisos木造2階建 |
Construido en:建築年 | 1975 |
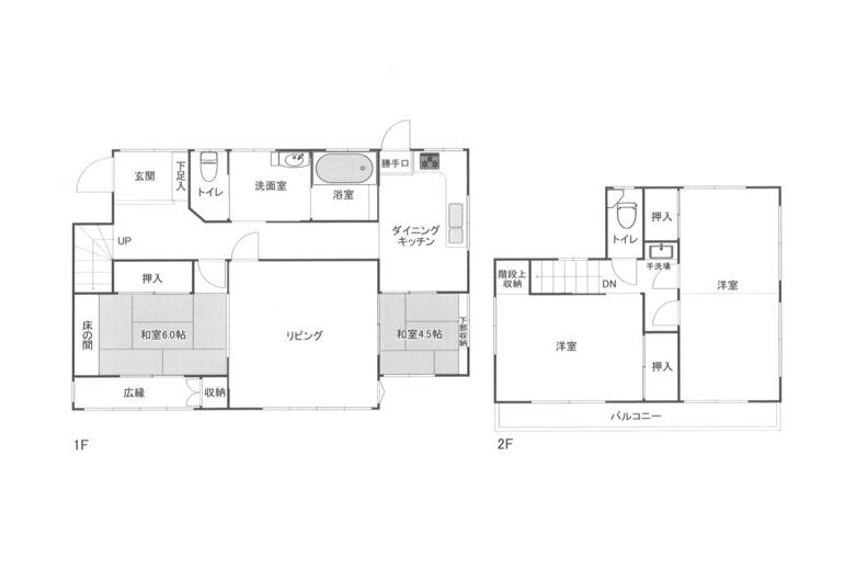
¡Bien! ¡Varios grandes! En primer lugar, es diferente del tamaño de la entrada. ¡Es como una posada! El salón es grande y hay muchas habitaciones, y si tienes muchos hijos o estás pensando en vivir con tus padres, ¡bienvenido! Vivamos todos una vida animada. El olor de las esteras de tatami se calma. Este sentimiento es nostálgico. La ubicación está cerca de Isshiki Rosen. HAC, Bredor, Kirihara y restaurantes también están cerca, por lo que no hay duda de que será fácil vivir en él. También hay un jardín y plazas de aparcamiento para 1-2 coches. Un espacio estable en el que pueden colocar las bicicletas de toda la familia. No dude en contactarnos para obtener una vista previa. ¡Venga con toda la familia!おっきい!いろいろビッグ!まず、玄関の広さから違う。旅館みたい!リビングも広いし部屋数もいっぱいあるし、お子さんが多い方や、ご両親との同居をお考えの方、ウェルカム!みんなでワイワイ賑やかに暮らしましょう。畳の匂いが落ち着く。この感じ、懐かしい。場所は一色のローゼン近くです。HACやブレドール、霧原や飲食店もそばにあるので暮らしやすいこと間違いなし。お庭もあるし、駐車スペースは1〜2台分。家族みんなの自転車もガンガン置ける安定の広さ。内見はお気軽にお問い合わせください。ぜひ家族みんなで!
Terreno:土地面積 | 330 m² |
---|---|
Edificio:建物面積 | 150 m² |
Escala:建物規模 | 2 historias2階建 |
Estructura:構造 | Estructura de madera de dos pisos木造2階建 |
Construido en:建築年 | 1987 |
Una casa unifamiliar de segunda mano con vistas tipo resort que se extiende exuberantemente en dirección al mar. Está orientado hacia el lado sur y es bajo en el lado sur, por lo que tiene buena luz solar y ventilación. Hay plazas de aparcamiento para dos plazas de piso, y hay supermercados y farmacias cerca.海方向へ緑豊かに伸びやかな広がるリゾート感のある眺望の中古戸建。南側に広く面し、南側が低いため、陽当り通風も良好です。駐車スペースも平置2台分あり、スーパーやドラッグストアなども近隣にあります。
Terreno:土地面積 | 290 m² |
---|---|
Edificio:建物面積 | 123 m² |
Escala:建物規模 | 2 plantas sobre rasante地上2階 |
Estructura:構造 | De madera木造 |
Construido en:建築年 | 1997 |
El hecho de que puedas contemplar una vista tan lujosa del mar de Hayama desde cerca de la cima de esta colina donde las hortensias están en plena floración es una vida cotidiana especial que sólo los residentes locales conocen. Al darse cuenta de su valor, el Sr. K inspeccionó la casa después de haberla desmantelado hasta su estructura básica y de haberla reforzado, y decidió que era confiable, por lo que la compró. Al desmantelar el interior, que originalmente estaba dividido en habitaciones pequeñas, puede eliminar las preocupaciones sobre partes invisibles como debajo del piso, el ático y dentro de las paredes, que son comunes al comprar una casa usada, y usarlo como contenedor para su nuevo estilo de vida. La posibilidad de pensar libremente ha aumentado. Para aprovechar al máximo la comodidad del atrio existente, se elevó el techo y se volvieron a colocar baldosas, y el segundo piso, que ofrece una gran vista, se transformó dinámicamente en un gran espacio continuo que alberga una variedad de escenas de vida.アジサイの咲き乱れるこの丘の頂上付近からこれほど贅沢に葉山の海が見渡せることは、地域の住民だけが知る特別な日常。その価値を実感していたKさんは、この家が骨組みまで解体され補強工事を終えた状態で内覧し、信頼できると判断して購入しました。元は小さな部屋で細かく区切られていた室内をいったん解体することで、床下や屋根裏、壁の内部など、中古住宅購入時にありがちな見えない部分への不安が取り除かれ、新しいライフスタイルの容れ物として自由に発想できる可能性が高まりました。既存の吹き抜けの気持ち良さを最大限に生かすため天井を上げて張り直し、眺めの良い2階は、さまざまな生活シーンを内包する一続きの大空間へとダイナミックに変貌しました。
Edificio:建物面積 | Por favor pregunte |
---|---|
Estructura:構造 | De madera木造 |
Construido en:建築年 | 2017 |
Todas las akiya en un solo lugar
¡Encuentre la casa vacante perfecta en Japón!
La prefectura de Kanagawa se destaca como un destino atractivo para quienes planean mudarse a Japón, combinando un estilo de vida vibrante con un acceso excepcional a servicios y naturaleza. Situada justo al sur de Tokio, Kanagawa ofrece la ventaja de estar a un corto trayecto en tren de la capital, lo que permite disfrutar de la vitalidad metropolitana mientras se reside en un ambiente más tranquilo. Ciudades como Yokohama, la segunda más grande del país, cuentan con una vibrante vida cultural, una rica historia de comercio y una arquitectura moderna impresionante, además de ser reconocidas por su accesibilidad a la vivienda en comparación con Tokio. Aunque los precios en áreas muy demandadas, como el centro de Yokohama, pueden ser más altos, hay zonas periféricas en Kanagawa que ofrecen opciones de vivienda más asequibles, así como comunidades más tranquilas y espacios abiertos. La oferta de parques, playas y montañas cercanas también facilita un estilo de vida saludable y equilibrado. Con un excelente transporte público, buenas escuelas y un ambiente cosmopolita, Kanagawa se presenta como una opción ideal para familias que buscan calidad de vida sin alejarse demasiado de la ajetreada vida urbana.
AllAkiyas.com pone a su disposición miles de anuncios inmobiliarios japoneses de propiedades en venta o en alquiler. Nuestra vasto catálogo incluye casas unifamiliares, casas adosadas, apartamentos, locales comerciales y terrenos baldíos. Nos centramos especialmente en las casas tradicionales vacías, conocidas como akiya (o kominka en zonas rurales), y las casas adosadas tradicionales, o machiya. Puede buscar fácilmente propiedades en todas las prefecturas de Japón utilizando sus criterios específicos.