
Verifique disponibilidadAñadir a listas:✕

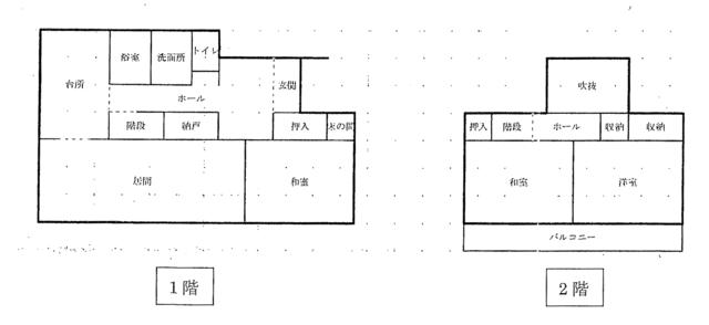
Es un vestidor con mucho espacio de almacenamiento que puede guardar varios objetos familiares bajándose en Kamisugaya, en la línea JRJR Mizugun, y cuenta con un timbre con monitor que es seguro para tratar con desconocidos. Y es una cocina de sistema que tiene la ventaja de crear una sensación de unidad en la cocina, hacer que luzca ordenada y facilitar la limpieza y la limpieza.こちらはJRJR水郡線を上菅谷で下車し、見知らぬ訪問者への対応も安心なモニター付きドアホンが付いてい、収納スペースがたっぷりのウォークインクローゼットは、家族のさまざまなものを収納できます。そして、キッチンに統一感が出てスッキリ見えたり、お手入れ・掃除がしやすいなどのメリットがあるシステムキッチンです。
| Depósito de seguridad:敷金 | 1 mes /-- Me gustaría preguntar sobre el costo inicial.1ヶ月/-- 初期費用について質問したい |
|---|---|
| Key money:礼金 | 1 mes1ヶ月 |
| Edificio:建物面積 | Por favor pregunte |
| Estructura:構造 | Otro軽量鉄骨 |
| Construido en:建築年 | 2005 |

Esta habitación está a 29 minutos andando de la estación Shimosugaya, en la línea JR Mizugun. Hay un timbre con monitor para atender a desconocidos, y el baño está equipado con función de calentamiento, por lo que puedes darte un baño caliente en cualquier momento. Es seguro aunque tengas mucha familia. Y hay un lavabo separado que está separado del baño y es muy cómodo para maquillarse y peinar y maquillarse. A menos de 2.400 m de los alrededores se encuentra la Escuela Primaria Sugaya Higashi.このお部屋はJR水郡線を下菅谷駅で下車し、徒歩29分の場所に位置しています。見知らぬ訪問者への対応も安心なモニター付きドアホンが付いてい、浴室は追い焚き機能が付いており、いつでも温かいお風呂に入れます。家族が多くても安心です。そして、浴室から切り離され、化粧やヘアメイクをするのにとても便利な独立洗面台があります。周辺2,400m圏内には菅谷東小があります。
| Depósito de seguridad:敷金 | 1 mes /-- Me gustaría preguntar sobre el costo inicial.1ヶ月/-- 初期費用について質問したい |
|---|---|
| Key money:礼金 | 1 mes1ヶ月 |
| Edificio:建物面積 | Por favor pregunte |
| Estructura:構造 | De madera木造 |
| Construido en:建築年 | 2025 |
Todas las akiya en un solo lugar
¡Encuentre la casa vacante perfecta en Japón!

La prefectura de Ibaraki, situada al este de Tokio, ofrece un estilo de vida tranquilo y equilibrado, ideal para familias que buscan un entorno más relajado, alejado del bullicio de las grandes ciudades. La región combina la belleza natural con acceso a áreas urbanas, lo que permite disfrutar de paisajes rurales mientras se está a una corta distancia de la capital, facilitando los desplazamientos diarios.
En cuanto a la vivienda, Ibaraki es conocida por sus precios más asequibles en comparación con áreas metropolitanas como Tokio y Yokohama. Es posible encontrar apartamentos y casas a precios razonables, lo que la convierte en una opción atractiva para quienes buscan maximizar su presupuesto. La calidad de vida en Ibaraki es alta, con buenos servicios públicos, escuelas y hospitales, así como una comunidad acogedora.
Sin embargo, en comparación con regiones más urbanizadas, como la prefectura de Kanagawa, Ibaraki puede ofrecer menos opciones de entretenimiento y actividades culturales. A pesar de esto, para familias que valoran la tranquilidad y la accesibilidad, Ibaraki representa una opción excelente en Japón.
AllAkiyas.com pone a su disposición miles de anuncios inmobiliarios japoneses de propiedades en venta o en alquiler. Nuestra vasto catálogo incluye casas unifamiliares, casas adosadas, apartamentos, locales comerciales y terrenos baldíos. Nos centramos especialmente en las casas tradicionales vacías, conocidas como akiya (o kominka en zonas rurales), y las casas adosadas tradicionales, o machiya. Puede buscar fácilmente propiedades en todas las prefecturas de Japón utilizando sus criterios específicos.