Verifique disponibilidadAñadir a listas:✕

Villa usada con terreno y edificio (estilo casa popular antigua). La habitación ha sido limpiada. La residencia permanente es posible. La primera planta mide 82,76㎡, la segunda 25,89㎡ y la planta total es de 133,65㎡.土地建物付き中古別荘(古民家風)。室内清掃済。永住可。1階82.76㎡、2階25.89㎡、総延床133.65㎡。
| Terreno:土地面積 | 233 m² |
|---|---|
| Edificio:建物面積 | 133 m² |
| Escala:建物規模 | 2 historias2階建て |
| Estructura:構造 | Edificio de dos plantas con tejado de madera galvanizada de木造亜鉛メッキ鋼板葺・ルーフィング葺2階建て |
| Construido en:建築年 | 1974 |

El terreno tiene una superficie de 1233 metros cuadrados (unos 373 tsubo), y la superficie total de planta es de 194,19 metros cuadrados. La casa principal (edificio (1)), la sala de servicio (edificio (2)) y la cabaña de barbacoa (edificio (3)) están conectadas por un pasillo de cruce. Hay un baño al aire libre, patio, cabaña para barbacoa, salón de té y almacén en granero. Hay alojamiento privado y villas de alquiler disponibles. Sin empresa de gestión, sin comisión de gestión.敷地1233㎡(約373坪)、総延床194.19㎡。母屋(建物①)、サービスルーム(建物②)、BBQ小屋(建物③)が渡り廊下で繋がる。露天風呂、中庭、BBQ小屋、茶室、納戸倉庫あり。民泊・貸別荘利用可。管理会社なし、管理費なし。
| Terreno:土地面積 | 1233 m² |
|---|---|
| Edificio:建物面積 | 194 m² |
| Escala:建物規模 | Edificio (1) edificio de dos plantas, edificio (2) y (3) ed建物① 2階建て、建物②・③ 平屋(総延床194.19㎡) |
| Estructura:構造 | Edificio (1): Edificio de dos plantas con tejas de madera /建物①:木造瓦葺2階建て/建物②:木造亜鉛メッキ鋼板平屋建て/建物③:木造亜鉛メッキ鋼板平屋建て |
| Construido en:建築年 | 1988 |

Una villa usada en las zonas de las Tierras Altas de Kita-Karuizawa Asama y la Villa Suzurandai de Kotobuki no Sato. 2LDK, terreno aprox. 462㎡ (aprox. 140 tsubo), planta total 88,6㎡ (1ª planta 52,17㎡, 2ª planta 36,43㎡), construida en agosto de 1995. Estufa de leña, terraza de madera cubierta, altillo, tejado y paredes exteriores de 2020 pintados.北軽井沢浅間高原・寿の郷すずらん台別荘地の中古別荘。2LDK、土地約462㎡(約140坪)、延床88.6㎡(1階52.17㎡、2階36.43㎡)、平成7年8月(1995年)築。薪ストーブ、屋根付きウッドデッキ、ロフト、2020年屋根・外壁塗装済。
| Terreno:土地面積 | 462 m² |
|---|---|
| Edificio:建物面積 | 89 m² |
| Escala:建物規模 | 2 historias2階建て |
| Estructura:構造 | Tejado de pizarra de madera木造スレート葺 |
| Construido en:建築年 | 1995 |

Una villa usada con un edificio de tierra en el área de Mihara de la aldea de Tsumagoi (con una antigua clínica). 10SLDK, superficie total de unos 213,84 metros cuadrados, terreno de unos 204,95 metros cuadrados. Registro bancario de la casa vacante, 5 años de historia de la casa vacante. Construido en S42 (1967). 9 millones de yenes.嬬恋村三原地区の土地建物付き中古別荘(元診療所併設)。10SLDK、延床約213.84㎡、土地約204.95㎡。空き家バンク登録、空き家歴5年。S42年(1967年)築。900万円。
| Terreno:土地面積 | 205 m² |
|---|---|
| Edificio:建物面積 | 214 m² |
| Escala:建物規模 | 2 plantas con 1 planta sótano地下1階付き2階建て |
| Estructura:構造 | Cubierta plana de madera y hormigón armado木・鉄筋コンクリート造陸屋根 |
| Construido en:建築年 | 1967 |

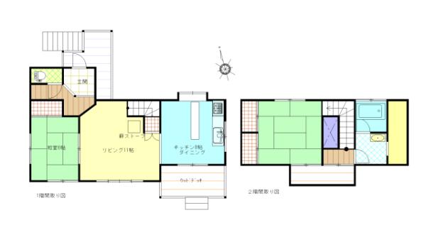
Puntos de control: ◎ Terreno nivelado de unos 110 tsubo ◎ Interior (suelo y tela) renovado ◎ Interior limpio y en buen estado ◎ La entrada está tapiada y es espaciosa ◎ Las paredes exteriores están en buen estado ◎ El plano es fácil de usar 3LDK ◎ LDK tiene unas 17 esterillas de tatami ◎ Habitación de estilo japonés en la primera planta 7 esterillas de tatami ◎ Habitación de estilo occidental en la segunda planta 7,5 esterillas de tatami y 6,1 esterillas de tatami 2 habitaciones ◎ También hay una buena zona de almacenamiento ◎ El lavabo ha sido reemplazado ◎ Espacio para aparcamiento para 2 cochesチェックポイント:◎約110坪の整地された敷地 ◎室内(床・クロス)リフォーム済 ◎清潔感のある室内で状態良好 ◎玄関は板張りで広さあり ◎外壁等状態良し ◎間取りは使い易い3LDK ◎LDK広さある約17帖 ◎1階和室7畳 ◎2階洋室7.5帖・6.1帖2部屋 ◎収納箇所もしっかりあります ◎洗面台交換済 ◎駐車場2台分
| Terreno:土地面積 | 363 m² |
|---|---|
| Edificio:建物面積 | 95 m² |
| Escala:建物規模 | Edificio de dos plantas con techo de pizarra de madera (2 p木造スレート葺2階建て(2階建て) |
| Estructura:構造 | Tejado de pizarra de madera木造スレート葺 |
| Construido en:建築年 | 1991 |

Usamos una villa con terreno y edificio (adyacente al bosque de Tsumagoi). Superficie del terreno: 424,61㎡ (unos 128 tsubo), superficie total: 61,27㎡ (unos 19 tsubo), casa de una sola planta. Plano de planta 2LDK (13 LDK tatami + 2 habitaciones de estilo occidental). Recién construido el 5 de junio. Publicación: 23/10 NUEVO, Las negociaciones empresariales están en marcha. Puntos de control: terraza cubierta de madera, gran parcela (unos 130 tsubo), residencia permanente permitida, baño en unidad, cocina compacta.土地建物付き中古別荘(嬬恋の森隣接)。土地面積:424.61㎡(約128坪)、延床面積:61.27㎡(約19坪)、平屋建て。間取り2LDK(13帖LDK+洋室2部屋)。平成5年6月新築。掲載表示:10/23 NEW、商談中。チェックポイント:屋根付きウッドデッキ、敷地広(約130坪)、永住可、ユニットバス、コンパクトキッチン。
| Terreno:土地面積 | 424 m² |
|---|---|
| Edificio:建物面積 | 61 m² |
| Escala:建物規模 | Edificio de una sola planta (1ª planta)平屋建て(1階) |
| Estructura:構造 | Casa de madera de una planta con tejado de pizarra木造スレート葺平屋建て |
| Construido en:建築年 | 1993 |

No se permite aparcar a los residentes. Una villa de segunda mano recién construida en julio de 1990. Terraza de madera cubierta, LDK doble acristalado, estufa de leña Vermont Encore, calefacción por suelo radiante (LDK, inodoro, baño) Planta: 8 tatamis en una habitación de estilo japonés en la primera planta, 12,5 tatami en LDK, 7 tatami en una habitación de estilo occidental en la segunda planta. Cocina 1800 (cocina de 2 quemadores), baño 1 tsubo, jardín bien cuidado, residencia permanente permitida, huerto posible.民泊不可。平成2年(1990年)7月新築の中古別荘。屋根付きウッドデッキ、LDKはペアガラス、バーモント社製アンコール薪ストーブ、床下暖房(LDK・トイレ・洗面脱衣室)。間取り:1階和室8畳・LDK12.5帖、2階洋室7帖。キッチン1800(2口コンロ)、浴室1坪、手入れ行き届いたガーデン、永住可、家庭菜園可能。
| Terreno:土地面積 | 458 m² |
|---|---|
| Edificio:建物面積 | 63 m² |
| Escala:建物規模 | 2 historias2階建て |
| Estructura:構造 | Edificio de madera de dos pisos con techo de tejas木造瓦葺2階建て |
| Construido en:建築年 | 1990 |

Highland Village, Green Town, Villa Terreno y villa utilizada con edificios. Superficie terrestre 542,37㎡, superficie total 60,44㎡ (2DK), construido en noviembre de 49. Se requiere reparación del suelo, y hay cubierta de madera disponible. Negociaciones.高原ヴィレッジ緑の街別荘地の土地・建物付き中古別荘。土地面積542.37㎡、建物延床60.44㎡(2DK)、昭和49年11月築。床補修必要、屋根付きウッドデッキあり。商談中。
| Terreno:土地面積 | 542 m² |
|---|---|
| Edificio:建物面積 | 60 m² |
| Escala:建物規模 | 2 historias2階建て |
| Estructura:構造 | Techo de madera de 2 pisos de acero galvanizado.木造亜鉛メッキ鋼板葺2階建て |
| Construido en:建築年 | 1974 |
Todas las akiya en un solo lugar
¡Encuentre la casa vacante perfecta en Japón!

La prefectura de Gunma, situada al norte de Tokio, es un destino atractivo para quienes buscan una vida equilibrada entre la tranquilidad de la naturaleza y la accesibilidad a las grandes ciudades. Conocida por sus impresionantes paisajes montañosos, aguas termales (onsen) y una rica tradición cultural, Gunma ofrece un estilo de vida relajado, ideal para familias y personas que valoran el bienestar emocional. A diferencia de las prefecturas metropolitanas como Tokio o Yokohama, donde los precios de la vivienda son prohibitivos, Gunma se destaca por la asequibilidad de sus propiedades. Aquí, es posible encontrar casas en venta a precios mucho más bajos que el promedio nacional, lo que permite a las familias adquirir un hogar espacioso con jardín, algo difícil de conseguir en las áreas urbanas. Además, la prefectura está bien conectada con Tokio a través de líneas de tren, lo que facilita los desplazamientos diarios para trabajar o estudiar en la ciudad. Con un entorno natural que promueve actividades al aire libre y una comunidad acogedora, Gunma es una opción ideal para aquellos que buscan un equilibrio entre la vida urbana y la rural sin sacrificar la calidad de vida.
AllAkiyas.com pone a su disposición miles de anuncios inmobiliarios japoneses de propiedades en venta o en alquiler. Nuestra vasto catálogo incluye casas unifamiliares, casas adosadas, apartamentos, locales comerciales y terrenos baldíos. Nos centramos especialmente en las casas tradicionales vacías, conocidas como akiya (o kominka en zonas rurales), y las casas adosadas tradicionales, o machiya. Puede buscar fácilmente propiedades en todas las prefecturas de Japón utilizando sus criterios específicos.