




Ajouter aux listes:✕
Propriétés qui peuvent être vendues et louées avec de précieuses places de stationnement dans le paysage urbain d’une ville minière, et qui peuvent être rénovées même si elles sont louées
・Les articles ménagers inutiles seront retirés aux frais du propriétaire.
・Il y a encore des traces de fuites sur le plafond intérieur, mais les carreaux ont été mis à jour en H28 et il n’y a plus de fuites maintenant.
・Il y a des traces de dommages causés par les termites, mais ils ont été enlevés et ne sont actuellement pas endommagés. (Il y a des traces autour des piliers de l’alcôve et du seuil du porche)
・Pour les deux endroits ci-dessus, si le contrat est décidé, le propriétaire le réparera et le remettra.
・Dans le cas d’une location, les frais de réparation encourus après l’emménagement seront à la charge de l’utilisateur qui emménagera.
(Au lieu de cela, vous pouvez rénover librement dans une certaine mesure, consultez séparément)
・Il y a des terres agricoles à proximité.
*Il y a aussi des informations basées sur des entretiens, etc., de sorte qu’elles peuvent différer de la région.
*Cliquez sur l’image pour l’agrandir.鉱山町の町並みにある貴重な駐車スペースのある売却及び賃貸可能物件、賃貸でもリフォーム可能
・不要な家財道具は所有者負担にて撤去。
・屋内天井に雨漏り痕跡が今もあるが、H28年に瓦を更新しており、現在は雨漏りなし。
・シロアリ被害痕跡があるが、除去済みのため現在は被害ないとのこと。(床の間の柱と縁側の敷居あたりに痕跡あり)
・上記2カ所については、契約が決まれば、所有者負担で修繕をして引き渡し。
・賃貸の場合、入居されてから掛かる補修費用負担は、入居される利用者にて負担。
(その代わり、ある程度自由にリフォーム可能、別途相談)
・近隣に農地あり
※聞き取り等による情報もありますので、現地と違う場合があります。
※画像をクリックすると拡大します。
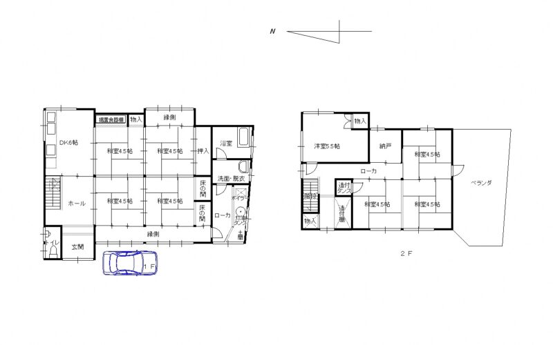
Terrain :土地面積 | 248 m² |
---|---|
Bâtiment :建物面積 | 172 m² |
Structure :構造 | Bâtiment en bois de deux étages (construit au cours de la p木造2階建て(昭和元年築) |
Banque de maisons vacantes [Vente] 1,5 million de yens [Location] 30 000 yens Hyogo Asago City, Ikuno-choguchi Ginya Station Terres agricoles à proximité, jardin, débarras, parking 5DK Vieille maison à 2 étages avec parking Approvisionnement en eau et égouts空き家バンク【売買】150万円【賃貸】3万円 兵庫県朝来市生野町口銀谷 駅近い 近隣農地・庭・物置・駐車場付き5DK2階建古民家 上下水道
Terrain :土地面積 | 248 m² |
---|---|
Bâtiment :建物面積 | 172 m² |
Structure :構造 | Bâtiment en bois à deux étages木造2階建 |
Maison vacante Bank [À vendre] 1,8 million de yens Noza, ville d'Asago, préfecture de Hyogo, pied de la montagne, 11DK, maison ancienne de 2 étages avec jardin, débarras et garage, toilettes à chasse d'eau, véranda à deux côtés et pièce adjacente空き家バンク【売買】180万円 兵庫県朝来市納座 山の麓 庭・物置・車庫付き11DK2階建古民家 水洗トイレ 二面縁側・続き間有
Terrain :土地面積 | 626 m² |
---|---|
Bâtiment :建物面積 | 306 m² |
Structure :構造 | Bâtiment en bois à deux étages木造2階建 |
Une maison à la « campagne » en pleine nature.
La chaudière de bain a été retirée en raison de dommages. Les objets ménagers inutiles et les autels bouddhistes sont enlevés aux frais du propriétaire.
*Il y a aussi des informations basées sur des entretiens, etc., de sorte qu’elles peuvent différer de la région.
*Cliquez sur l’image pour l’agrandir.自然に囲まれた「田舎」の一軒家。
風呂ボイラー破損で撤去済。不要な家財道具・仏壇などは所有者負担で撤去。
※聞き取り等による情報もありますので、現地と違う場合があります。
※画像をクリックすると拡大します。
Terrain :土地面積 | 191 m² |
---|---|
Bâtiment :建物面積 | 158 m² |
Structure :構造 | En bois木造 |
Il s’agit d’une propriété d’un étage située dans un quartier résidentiel élégant de la ville d’Asago !
Après avoir emménagé le 7 mai, j’organise petit à petit mes affaires.
Les restes seront enlevés aux frais du vendeur.
Pour toute demande de renseignements sur la propriété ou pour demander une visite, veuillez contacter la section de la banque de la maison vacante de l’hôtel de ville d’Asago (TEL : 079-672-1492).
*Cette propriété est membre de la branche Tajima de l’Association immobilière de la préfecture de Hyogo, « Handyman Magonote » (Tsutsue, ville de Wadayama), qui est en charge des services de courtage et d’intermédiaire.
Cependant, pour les visites, nous l’accepterons à la banque de la maison vacante de l’hôtel de ville d’Asago (TÉL : 079-672-1492).
*Il y a aussi des informations basées sur des entretiens, etc., de sorte qu’elles peuvent différer de la région.
*Cliquez sur l’image pour l’agrandir.朝来市内のおしゃれな住宅地にある平屋の物件です!
R7年5月に引っ越し後、少しずつ家財整理作業進行中。
残置物は売主負担にて撤去予定。
物件に関するお問い合わせや内覧希望は、朝来市役所空き家バンク担当(TEL:079-672-1492)にご連絡ください。
※この物件は、兵庫県宅地建物業協会但馬支部会員の『便利屋まごのて』(和田山町筒江)が仲介・媒介業務を担当します。
ただし、内覧については、朝来市役所空き家バンク担当(TEL:079-672-1492)で受付します。
※聞き取り等による情報もありますので、現地と違う場合があります。
※画像をクリックすると拡大します。
Terrain :土地面積 | 368 m² |
---|---|
Bâtiment :建物面積 | 61 m² |
Structure :構造 | Maison en bois d’un étage (construite à Heisei 18)木造平屋建て(平成18年築) |
Il s’agit d’une maison privée sur un vaste site.
Pour toute demande de renseignements sur la propriété ou pour demander une visite, veuillez contacter la section de la banque de la maison vacante de l’hôtel de ville d’Asago (TEL : 079-672-1492).
*Cette propriété est membre de la branche Tajima de l’Association immobilière de la préfecture de Hyogo, Katsurano Corporation (Hayata, ville du Shandong), qui est en charge des services de courtage et de médiation.
Cependant, pour les visites, nous l’accepterons à la banque de la maison vacante de l’hôtel de ville d’Asago (TÉL : 079-672-1492).
*Il y a aussi des informations basées sur des entretiens, etc., de sorte qu’elles peuvent différer de la région.
*Cliquez sur l’image pour l’agrandir.広大な敷地にある民家です。
物件に関するお問い合わせや内覧希望は、朝来市役所空き家バンク担当(TEL:079-672-1492)にご連絡ください。
※この物件は、兵庫県宅地建物業協会但馬支部会員の桂野工務店(山東町早田)が仲介・媒介業務を担当します。
ただし、内覧については、朝来市役所空き家バンク担当(TEL:079-672-1492)で受付します。
※聞き取り等による情報もありますので、現地と違う場合があります。
※画像をクリックすると拡大します。
Terrain :土地面積 | 1002 m² |
---|---|
Bâtiment :建物面積 | 202 m² |
Structure :構造 | Bâtiment en bois de deux étages (construit à Showa 46)木造2階建て(昭和46年建築) |
Maison vacante banque [vente] 2 millions de yens Préfecture de Hyogo Ville d’Asago Wadayama-cho Takenouchi Sur les rives du ruisseau 8SDK Vieille maison de 2 étages avec jardin, débarras et parking Approvisionnement en eau et assainissement空き家バンク【売買】200万円 兵庫県朝来市和田山町竹之内 小川のほとり 庭・物置・駐車場付き8SDK2階建古民家 上下水道
Terrain :土地面積 | 191 m² |
---|---|
Bâtiment :建物面積 | 158 m² |
Structure :構造 | Bâtiment en bois à deux étages木造2階建 |
DSC_0086
DSC_0085
DSC_0081
DSC_0049
DSC_0057
DSC_0053
DSC_0048
DSC_0058
DSC_0059
DSC_0059
DSC_0060
DSC_0060
DSC_0076
DSC_0054
DSC_0059
DSC_0064
DSC_0066
DSC_0065
DSC_0071
DSC_0069
DSC_0070
DSC_0091
DSC_0092
DSC_0074
DSC_0075
[Prix réduit !!] Une grande maison au village ! Il y a aussi une pièce au deuxième étage de l'entrepôt.
La fuite a été réparée
Le deuxième étage du bâtiment principal est en grande partie lambrissé et nécessite d'importantes rénovations pour être utilisé comme pièce.
Il y a une pièce au dessus de l'entrepôt
*Certaines informations sont basées sur des entretiens, etc., elles peuvent donc différer du lieu réel.
*Cliquez sur l'image pour l'agrandir.DSC_0086
DSC_0085
DSC_0081
DSC_0049
DSC_0057
DSC_0053
DSC_0048
DSC_0058
DSC_0059
DSC_0059
DSC_0060
DSC_0060
DSC_0076
DSC_0054
DSC_0059
DSC_0064
DSC_0066
DSC_0065
DSC_0071
DSC_0069
DSC_0070
DSC_0091
DSC_0092
DSC_0074
DSC_0075
[値下げしました!!]集落内に佇む大型の1軒家! 倉庫の2階にも部屋があります。
雨漏りは修理済
母屋の二階はほぼ板間、部屋として使うには大幅なリフォームが必要
倉庫の上に部屋あり
※聞き取り等による情報もありますので、現地と違う場合があります。
※画像をクリックすると拡大します。
Terrain :土地面積 | 530 m² |
---|---|
Bâtiment :建物面積 | 274 m² |
Structure :構造 | Bâtiment en bois à deux étages (bâtiment principal : constr木造2階建て(母屋:昭和12年築、離れ:昭和31年築) |
▲■●Kakitsubo, Santocho (Maison individuelle d'occasion)▲■●Excellent agencement, parking pour 3 voitures, site spacieux d'environ 200 tsubo▲■●山東町柿坪(中古戸建)▲■●間取充実3台駐車可能約200坪の広い敷地
Terrain :土地面積 | 663 m² |
---|---|
Bâtiment :建物面積 | 108 m² |
Échelle :建物規模 | 2 étages hors sol地上2階 |
Structure :構造 | En bois木造 |
Bâtit en :建築年 | 1937 |
Toutes les akiya au même endroit
Trouvez la maison vacante parfaite au Japon!
Hyogo Ken, situé dans la région de Kansai, est une préfecture qui offre un cadre de vie exceptionnel aux familles souhaitant s'expatrier. Avec sa capitale, Kobe, célèbre pour son ambiance cosmopolite et son port animé, Hyogo Ken allie modernité et traditions japonaises. Ce qui distingue cette préfecture, c’est sa diversité géographique, allant des côtes de la mer intérieure à des montagnes comme le mont Rokko, offrant ainsi un accès facile aux activités de plein air tout en bénéficiant des commodités urbaines. En termes de logement, Hyogo Ken est généralement plus abordable que des régions comme Tokyo ou Osaka. Les villes comme Himeji et Nishinomiya proposent des options variées, allant des maisons traditionnelles japonaises aux appartements modernes, tout en offrant un cadre plus spacieux pour les familles. De plus, l'infrastructure de transport est performante, facilitant les déplacements vers d'autres grandes villes de la région. Les écoles internationales et les installations pour les enfants, ainsi que la riche culture locale et les festivals, font de Hyogo Ken un choix attrayant pour ceux qui cherchent une qualité de vie élevée à un coût raisonnable. Ainsi, cette préfecture se présente comme une option idéale pour les familles envisagées de vivre au Japon.
AllAkiyas.com met à votre disposition des milliers d'annonces de biens immobiliers japonais à vendre ou à louer. Notre vaste sélection comprend des maisons individuelles, des maisons de ville, des appartements, des locaux commerciaux et des terrains vagues. Nous accordons une attention particulière aux maisons vacantes traditionnelles, appelées akiya (ou kominka en zone rurale), et aux maisons de ville traditionnelles, ou machiya. Vous pouvez facilement rechercher des biens dans toutes les préfectures du Japon selon vos critères spécifiques.