
Vérifiez disponibilitéAjouter aux listes:✕

名鉄形原駅まで徒歩4分。スーパーまで徒歩3分。
家財が残っていますが、所有者負担で片づけます。
賃貸契約をする場合、愛三不動産を仲介業者とする。名鉄形原駅まで徒歩4分。スーパーまで徒歩3分。
家財が残っていますが、所有者負担で片づけます。
賃貸契約をする場合、愛三不動産を仲介業者とする。
| Dépôt de garantie :敷金 | 3ヶ月 / -3ヶ月 / - |
|---|---|
| Key money :礼金 | 不明不明 |
| Bâtiment :建物面積 | 48 m² |
| Superficie exclusive :専有面積 | 48 m² |
| Structure :構造 | 木造木造 |
| Bâtit en :建築年 | 1959 |

Il y a de nombreuses pièces, et vous pouvez l’utiliser à diverses fins !
Rénovation à petite échelle nécessaire (à la charge du locataire)
Lors de la conclusion d’un contrat de vente, utilisez le magasin Marushichi Residence Koda comme intermédiaire部屋数が多く、様々な用途にご使用いただけます!
小規模改修必要(入居者負担)
売買契約をする場合、丸七住宅幸田店を仲介業者とする
| Terrain :土地面積 | 205 m² |
|---|---|
| Bâtiment :建物面積 | 185 m² |
| Échelle :建物規模 | 2 étages / -2階建 / - |
| Structure :構造 | En bois木造 |
| Bâtit en :建築年 | 1956 |

Situé dans la partie ouest de la péninsule de Nishiura, il est proche du marché aux poissons frais.
Sur la péninsule de Nishiura, vous pourrez profiter de Nishiura Onsen, nager dans la mer, pêcher et pêcher des palourdes.
Il y a également une marina où vous pourrez profiter de bateaux, yachts et jet skis.
Rénovation majeure à prévoir (responsabilité du locataire)
Il sera remis tel quel.
Lors de la conclusion d'un contrat de vente, Fujita Ltd. agira en tant qu'intermédiaire.西浦半島の西部に位置し、鮮魚マーケットまで直ぐ。
西浦半島には、西浦温泉や海水浴浴場、釣りや潮干狩りも楽しめます。
マリーナもあり、ボートやヨット、ジェットスキーを楽しむことができます。
大規模改修必要(入居者負担)
現況渡しとなります。
売買契約をする場合、有限会社フジタを仲介業者とする。
| Terrain :土地面積 | 791 m² |
|---|---|
| Bâtiment :建物面積 | 247 m² |
| Échelle :建物規模 | 2 étages / -2階建 / - |
| Structure :構造 | En bois木造 |
| Bâtit en :建築年 | 1933 |

La plage de palmiers de Nishiura se trouve à 3 minutes en voiture.
Le parc automobile Spa Nishiura se trouve à 2 minutes en voiture.
Rénovation majeure à prévoir (responsabilité du locataire)西浦パームビーチまで車で3分。
スパ西浦モーターパークまで車で2分。
大規模改修必要(入居者負担)
| Terrain :土地面積 | 211 m² |
|---|---|
| Bâtiment :建物面積 | 259 m² |
| Échelle :建物規模 | 2 étages / -2階建 / - |
| Structure :構造 | En bois木造 |
| Bâtit en :建築年 | 1915 |

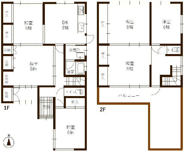
Banque de maison vacante [Vente] 5 millions de yens Préfecture d’Aichi Ville de Gamagori Katahara-cho Gare de Kawahara à distance de marche, pratique pour vivre et se rendre à l’école 8DK Vieille maison privée de 2 étages avec jardin, débarras, parking toilette à chasse d’eau空き家バンク【売買】500万円 愛知県蒲郡市形原町川原 駅徒歩圏内・生活通学便利 庭・物置・駐車場付き8DK2階建古民家 水洗トイレ
| Terrain :土地面積 | 205 m² |
|---|---|
| Bâtiment :建物面積 | 148 m² |
Toutes les akiya au même endroit
Trouvez la maison vacante parfaite au Japon!

Aichi Ken, située dans la région de Chūbu au Japon, est une préfecture dynamique, souvent négligée par les expatriés au profit de métropoles comme Tokyo ou Osaka. Cependant, elle offre un cadre de vie exceptionnel et rassurant pour les familles qui envisagent de s’y installer. Aichi est principalement connue pour sa capitale, Nagoya, qui est un centre industriel et technologique majeur, abritant le célèbre constructeur automobile Toyota. Cette préfecture allie l'urbanité au charme local, offrant des infrastructures urbaines modernes tout en conservant des quartiers tranquilles et des espaces verts propices à l’épanouissement familial.
Une des grandes atouts d'Aichi Ken est la possibilité d'acheter une maison à des prix généralement plus abordables que ceux trouvés à Tokyo ou Osaka. Les zones résidentielles autour de Nagoya, telles que Toyota City ou Inuyama, présentent des options de logement qui conviennent aux budgets variés. De plus, le réseau de transport est très développé, facilitant les déplacements vers Nagoya tout en vivant dans des régions plus calmes. En somme, Aichi Ken représente une alternative attractive pour ceux cherchant un équilibre entre vie urbaine, tranquillité et accessibilité au logement.
AllAkiyas.com met à votre disposition des milliers d'annonces de biens immobiliers japonais à vendre ou à louer. Notre vaste sélection comprend des maisons individuelles, des maisons de ville, des appartements, des locaux commerciaux et des terrains vagues. Nous accordons une attention particulière aux maisons vacantes traditionnelles, appelées akiya (ou kominka en zone rurale), et aux maisons de ville traditionnelles, ou machiya. Vous pouvez facilement rechercher des biens dans toutes les préfectures du Japon selon vos critères spécifiques.