





Ajouter aux listes:✕
C’est un endroit calme riche en nature, mais il est proche de l’IC Unami, ce qui facilite les sorties.海も山も近い自然豊かで閑静な立地ですが、宇波ICまで車で2分と、お出かけもしやすい立地!
内覧動画も公開中です!
Terrain :土地面積 | 291 m² |
---|---|
Bâtiment :建物面積 | 231 m² |
Structure :構造 | Bâtiment en bois de deux étages avec toit en tuiles木造瓦葺2階建 |
Bâtit en :建築年 | 1983 |
Il y a beaucoup de grandes et splendides maisons en bois dans la ville de Himi, mais il n’y a en fait pas beaucoup de « vieilles maisons folkloriques » de plus de 100 ans.
Si vous êtes à la recherche d’une propriété pour la migration ou les affaires, c’est un incontournable !
Une vidéo d’aperçu est également disponible.木造の大きく立派なお家が多い氷見市ですが、築100年を超える「古民家」は実は多くありません。
移住や事業で物件をお探しの方、必見です!
内覧動画も公開中です。
Terrain :土地面積 | 1381 m² |
---|---|
Bâtiment :建物面積 | 317 m² |
Structure :構造 | Bâtiment en bois de deux étages avec toit en tuiles木造瓦葺2階建 |
Bâtit en :建築年 | 1922 |
Une maison avec un atelier située le long de l'ancienne route nationale à Shimodako.
Cette propriété est recommandée pour ceux qui recherchent un grand espace à des fins commerciales.下田子の旧国道沿いに位置する作業所付きの住宅。
商いの関係等で広いスペースをお求めの方におすすめの物件です!
Terrain :土地面積 | 530 m² |
---|---|
Bâtiment :建物面積 | 263 m² |
Structure :構造 | Bâtiment en bois de deux étages avec toit en tuiles木造瓦葺2階建 |
Bâtit en :建築年 | 1990 |
Présentation d’une maison à Okume dans le quartier de Hayakawa, dans la partie ouest de la ville de Himi. Il a une belle structure et les installations sont un peu anciennes, mais c’est une maison avec un four. Vous ne voulez pas vivre une vie avec une fournaise ?氷見市の西部、速川地区の小久米にある住宅をご紹介します。立派な構えでちょっと設備は古いですが、なにしろかまどがある家なんです。かまどのある生活送ってみたくないですか?
Terrain :土地面積 | 258 m² |
---|---|
Bâtiment :建物面積 | 301 m² |
Structure :構造 | Statue en bois木像 |
Bâtit en :建築年 | 1961 |
Une maison de ville avec un plan d’étage simple qui entre par la route par la mer.
La gare et l’arrêt de bus sont à proximité, il est donc possible de se déplacer autrement qu’en voiture !
Une vidéo d’aperçu est également disponible.海沿いの道から一本入ったシンプルな間取りの町屋住宅。
駅やバス停が近いので車以外での移動も可能なのが魅力です!
内覧動画も公開中。
Terrain :土地面積 | 58 m² |
---|---|
Bâtiment :建物面積 | 98 m² |
Structure :構造 | Bâtiment en bois de deux étages avec toit en tuiles木造瓦葺2階建 |
Bâtit en :建築年 | 1988 |
Un manoir luxueux en face du port de pêche d'Ao.
Depuis le deuxième étage, vous pouvez voir la chaîne de montagnes Tateyama de l'autre côté de la baie de Toyama.阿尾漁港前の豪華な一邸。
2階からは富山湾越しの立山連峰が望めます。
Terrain :土地面積 | 176 m² |
---|---|
Bâtiment :建物面積 | 865 m² |
Structure :構造 | Toiture en tuiles bois sur 2 étages木造瓦葺き2階建 |
Bâtit en :建築年 | 1972 |
Propriété à proximité de l'hôtel de ville de Himi.
Bien que la maison soit située en ville, la verdure des montagnes à portée de vue est apaisante pour l'âme.氷見市役所近くの物件。
市街地に位置する一邸ですが、視界に入る山の緑が心を安らかにしてくれます。
Terrain :土地面積 | 388 m² |
---|---|
Bâtiment :建物面積 | 811 m² |
Structure :構造 | Bâtiment en bois à deux étages avec toit en tuiles木造瓦葺き2階建て |
Bâtit en :建築年 | 1959 |
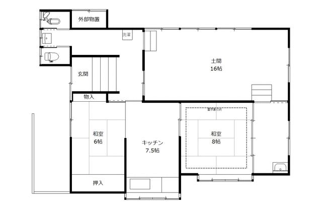
Banque de maison vacante [Vente] 2 850 000 yens Wakikata, ville de Himi, préfecture de Toyama Proche de la mer et de l’IC, un lieu riche en nature 11DK Bâtiment de style japonais de 2 étages avec rangement derrière la cabane et le parking Toilettes à chasse d’eau空き家バンク【売買】285万円 富山県氷見市脇方 海とICに程近い・自然豊かな場所 小屋裏収納・駐車場付き11DK和風2階建 水洗トイレ
Terrain :土地面積 | 291 m² |
---|---|
Bâtiment :建物面積 | 231 m² |
Structure :構造 | Bâtiment en bois à deux étages木造2階建 |
Toutes les akiya au même endroit
Trouvez la maison vacante parfaite au Japon!
La préfecture de Toyama, située sur la côte ouest du Japon, est une destination attrayante pour les familles souhaitant s'expatrier. Ce qui distingue Toyama des autres préfectures, c'est son cadre naturel exceptionnel, alliant montagnes majestueuses, comme les Alpes japonaises, et un littoral pittoresque donnant sur la mer du Japon. La région est renommée pour sa qualité de vie, son faible taux de criminalité et sa communauté accueillante, offrant un environnement serein parfait pour l'épanouissement des enfants. En matière de logement, Toyama Ken offre des options très compétitives. Les prix de l'immobilier y sont généralement plus abordables que dans les grandes métropoles, comme Tokyo ou Osaka, ce qui permet aux familles de trouver des maisons spacieuses à des prix raisonnables. De plus, la préfecture est bien connectée par les transports, avec des trains rapides qui relient Toyama aux grandes villes. Les familles peuvent également profiter d'une riche culture locale et d'une gastronomie savoureuse, célèbre pour ses fruits de mer frais et ses spécialités régionales. Grâce à son équilibre entre confort, accessibilité et nature, Toyama Ken représente une option viable pour ceux qui recherchent une vie paisible et enrichissante au Japon.
AllAkiyas.com met à votre disposition des milliers d'annonces de biens immobiliers japonais à vendre ou à louer. Notre vaste sélection comprend des maisons individuelles, des maisons de ville, des appartements, des locaux commerciaux et des terrains vagues. Nous accordons une attention particulière aux maisons vacantes traditionnelles, appelées akiya (ou kominka en zone rurale), et aux maisons de ville traditionnelles, ou machiya. Vous pouvez facilement rechercher des biens dans toutes les préfectures du Japon selon vos critères spécifiques.