





Ajouter aux listes:✕
Les réparations sont à la charge du locataire. Il ne reflète pas nécessairement la situation actuelle. Vous pouvez également nous contacter ou consulter le site Web de la promotion de la colonie de Nantan City. Ancien magasin修繕は入居者負担。必ずしも現況を反映していない場合があります。お問い合わせもしくは南丹市定住促進ホームページでもご確認いただけます。元店舗
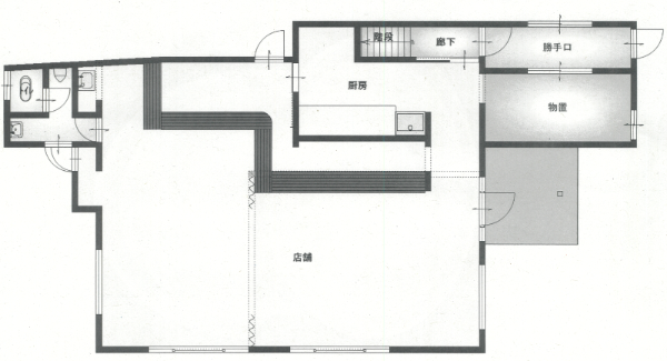
Terrain :土地面積 | 88 m² |
---|---|
Bâtiment :建物面積 | 43 m² |
Échelle :建物規模 | Deuxième étage2階 |
Structure :構造 | En bois木造 |
Bâtit en :建築年 | 1987 |
Toutes les akiya au même endroit
Trouvez la maison vacante parfaite au Japon!
La région japonaise du Kansai, qui comprend des villes comme Osaka, Kyoto et Kobe, est une destination séduisante pour les immigrants à la recherche d'un mélange unique de tradition et de modernité. La disponibilité de logements dans cette région est diversifiée, avec des options allant des appartements modernes dans des centres urbains animés aux charmantes machiya traditionnelles à Kyoto. Les prix des logements sont relativement compétitifs, ce qui les rend accessibles à différents budgets. Le coût de la vie est raisonnable, avec des transports en commun efficaces et des services de santé de qualité.
Les villes du Kansai offrent un style de vie dynamique, de nombreuses opportunités d'emploi et une richesse culturelle. L'environnement commercial dynamique d'Osaka, le charme historique de Kyoto et l'attrait international de Kobe répondent à un large éventail de préférences. Pendant ce temps, la campagne du Kansai offre des paysages sereins, des traditions profondément enracinées et un rythme de vie plus détendu. Les immigrants peuvent découvrir le meilleur des deux mondes dans la région du Kansai, ce qui en fait un endroit attrayant où vivre.
AllAkiyas.com met à votre disposition des milliers d'annonces de biens immobiliers japonais à vendre ou à louer. Notre vaste sélection comprend des maisons individuelles, des maisons de ville, des appartements, des locaux commerciaux et des terrains vagues. Nous accordons une attention particulière aux maisons vacantes traditionnelles, appelées akiya (ou kominka en zone rurale), et aux maisons de ville traditionnelles, ou machiya. Vous pouvez facilement rechercher des biens dans toutes les préfectures du Japon selon vos critères spécifiques.