
Vérifiez disponibilitéAjouter aux listes:✕

Le Heike est situé dans un endroit idéal pour vivre, avec une gare, une école et des commerces à moins de 15 minutes à pied. Il s’agira d’une maison de plain-pied construite sur un grand site avec une route à double sens et une superficie d’environ 173 tsubo (plus de 70 tsubo dans la partie jardin).徒歩15分圏内に駅、学校、お買物施設があり生活に便利な立地に位置する平家です。二方向道路、土地面積約173坪(お庭部分70坪以上)広い敷地に建つ平家になります。
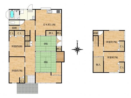
| Terrain :土地面積 | 573 m² |
|---|---|
| Bâtiment :建物面積 | 120 m² |
| Échelle :建物規模 | 1 histoire1階建 |
| Structure :構造 | Autre軽量鉄骨 |
| Bâtit en :建築年 | 1992 |

Maison légère en acier d’un étage ! Environ 1,4 km jusqu’à la station de Kansai !
Une maison d’un étage avec une ossature légère en acier ! Il se trouve à environ 1,4 km de la gare de Kansai et dans une section du lotissement ! Avec un plan d’étage compact, c’est ♪ un logement idéal pour deux personnes軽量鉄骨造平屋建て住宅!神埼駅まで約1.4km!
軽量鉄骨造の平屋住宅!神埼駅から約1.4km、分譲地内の一画に位置しています!コンパクトな間取りで、二人暮らしにぴったりの住まいです♪
| Terrain :土地面積 | 212 m² |
|---|---|
| Bâtiment :建物面積 | 67 m² |
| Échelle :建物規模 | 1er étage hors sol地上1階 |
| Structure :構造 | Autre軽量鉄骨造 |
| Bâtit en :建築年 | 1985 |
Toutes les akiya au même endroit
Trouvez la maison vacante parfaite au Japon!

La préfecture de Saga, située sur l'île de Kyushu, est un véritable joyau du Japon, souvent méconnue des expatriés. Ce territoire combine un riche patrimoine culturel, des paysages naturels époustouflants et une ambiance paisible, loin de l'effervescence des grandes villes comme Tokyo ou Osaka. Saga est célèbre pour ses festivals traditionnels, tels que le festival de Yoshinogari, qui célèbrent l'histoire et les coutumes locales. En matière de logement, la préfecture se distingue par des prix de l'immobilier particulièrement abordables. Les familles à la recherche d'une maison peuvent s'attendre à des options variées, allant des maisons traditionnelles aux constructions modernes, le tout à des prix bien inférieurs à ceux des zones urbaines très fréquentées. De plus, Saga bénéficie d'une belle qualité de vie, avec un accès facile aux plages, montagnes et parcs nationaux, ce qui permet de profiter d'activités de plein air. Les infrastructures de transport, bien que moins denses que dans les métropoles, sont efficaces et permettent de rejoindre Fukuoka, la capitale régionale, en moins d'une heure. Pour ceux qui recherchent un cadre de vie paisible, authentique et économique, Saga Ken représente une option attrayante à envisager.
AllAkiyas.com met à votre disposition des milliers d'annonces de biens immobiliers japonais à vendre ou à louer. Notre vaste sélection comprend des maisons individuelles, des maisons de ville, des appartements, des locaux commerciaux et des terrains vagues. Nous accordons une attention particulière aux maisons vacantes traditionnelles, appelées akiya (ou kominka en zone rurale), et aux maisons de ville traditionnelles, ou machiya. Vous pouvez facilement rechercher des biens dans toutes les préfectures du Japon selon vos critères spécifiques.