
Vérifiez disponibilitéAjouter aux listes:✕

Gunjibun : Une maison de plain-pied qui a subi des rénovations minutieuses. Situé le long de la route préfectorale, il est également recommandé pour un usage professionnel.
Située le long de la route préfectorale à Gunjibun, cette propriété est une maison de plain-pied à la fois pratique et apaisante.
Il offre la flexibilité d’être utilisé à des fins résidentielles et commerciales.
Le vendeur habite la propriété depuis de nombreuses années et a effectué de nombreuses rénovations, ce qui donne un extérieur et un intérieur qui ne donnent aucune indication sur l'âge de la propriété.
La structure et les sols sont robustes, vous pouvez donc vivre dans la maison en toute tranquillité.
■ Concernant les terrains résidentiels existants dans les zones de contrôle de l'urbanisation
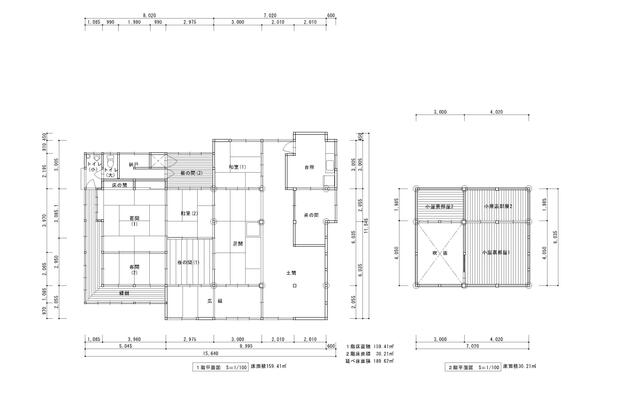
La superficie du site est de 167 tsubo, dont 148 tsubo sont les anciens terrains résidentiels existants.
Le système actuel de terres résidentielles a été aboli en 2001 et est désormais remplacé par un système de permis.
Cette propriété était déjà un terrain résidentiel le 27 novembre 1970, lorsqu'elle a été désignée zone de contrôle d'urbanisation, et comme elle est située dans une zone (établissement existant) av郡司分:リフォームを丁寧に重ねてきた平屋住宅。県道沿いの立地で事業用としてもおすすめ。
郡司分の県道沿いに立地する本物件は、使い勝手の良さと落ち着きを兼ね備えた平屋住宅です。
住居としてはもちろん、事業用にも活用可能な柔軟性があります。
売主様が長年住まわれながらリフォームを重ねてきたことで、築年数を感じさせない外観と内装を保っています。
構造や床もしっかりしており、安心してお住まいいただけます。
■市街化調整区域の既存宅地について
敷地面積は167坪で、その内148坪が旧既存宅地となっています。
既存宅地制度は平成13年に廃止されており、現在は許可制へと移行しています。
本物件は市街化調整区域と指定された昭和45年11月27日の時点で既に宅地であり、概ね50戸以上の建築物の敷地が連たんしている地域(既存集落)内にある為、地元以外の方でも再建築や購入の許可申請ができます。
他、いくつか諸条件がありますので、詳しくは弊社までお問い合わせください。
■和洋折衷の魅力と温もりを感じる空間
間取りは3DKで、水回りが北側に配置され、玄関を中心に洋室と和室を分けた住みやすい設計です。
玄関ホールやキッチン、洋室には無垢材が使用されており、断熱性が高く、足触りも心地よい仕上がりです。
特に南側の洋室は、壁も無垢材で仕上げられており、年月とともに味わい深い飴色に変化。
まるでログハウスのような雰囲気を楽しめる空間となっています。
キッチンは7.5帖の広さがあり、ダイニングテーブルを置くことができるスペースを確保。
洗面所から浴室へとつながる動線もスムーズで、毎日の家事が効率よく行えるよう配慮されています。
和室は6帖と8帖の続き間で構成されており、それぞれ異なる魅力を持っています。
6帖の和室には押入れと納戸があり、収納スペースが充実。
8帖の和室には東から南にかけて縁側が回り、全面が掃き出し窓になっているため、自然光がたっぷりと入り、明るく開放的な空間です。
これらの設計は、住まう方にとって心地よさと利便性を追求したものとなっています。
■快適で使いやすい住宅設備。浴室とトイレは新設
キッチンは耐久性の高いステンレス製天板を採用しており、水や熱に強いだけでなく、汚れが付きにくくお手入れが簡単です。
壁面にはキッチンパネルを使用しており、耐火性に優れるとともに、汚れが拭き取りやす
| Terrain :土地面積 | 552 m² |
|---|---|
| Bâtiment :建物面積 | 88 m² |
| Échelle :建物規模 | 1er étage hors sol地上1階 |
| Structure :構造 | En bois木造 |
| Bâtit en :建築年 | 1962 |

Jogasaki 4-chome : Beauté traditionnelle × douceur des matériaux naturels. Un espace de vie japonais moderne fait de terre solide et de diatomées
Jogasaki 4-chome a un paysage urbain calme et un cadre de vie verdoyant.
Dans un coin, une maison de deux étages avec un toit de tuiles se dresse tranquillement.
La route avant fait 6 m de large et permet aux voitures d’entrer et de sortir en douceur.
Le quartier est bordé de maisons calmes, et il y a un environnement où vous pouvez vivre paisiblement avec un sens modéré de la distance.
La commodité de la vie est également parfaite. Il y a des supermarchés, des pharmacies, des dépanneurs et des hôpitaux généraux à distance de marche, vous pouvez donc être assuré pour les achats quotidiens et les visites soudaines à l’hôpital.
De plus, il est proche de la gare de Minami-Miyazaki et d’Odobashi, ce qui facilite les déplacements au travail et à l’école, ainsi que l’accès au centre-ville.
Cette maison est à la fois facile à vivre et confortable, et est également recommandée pour les ménages familiaux et les couples qui souhaitent changer de vie.
■Une maison faite de bois massif et de terre de diatomées qui donne envie de respirer profondément城ケ崎4丁目:伝統美×自然素材のやさしさ。無垢と珪藻土で仕立てた和モダンの住空間
落ち着きのある街並みと、緑豊かな住環境が広がる城ケ崎四丁目。
その一角に、瓦屋根の風格漂う二階建て住宅が静かに佇んでいます。
前面道路はゆとりある6m幅員で、車の出入りもスムーズ。
近隣には落ち着いた住宅が並び、程よい距離感の中で、穏やかに暮らせる環境が整っています。
生活利便性も申し分ありません。徒歩圏内にはスーパー、ドラッグストア、コンビニ、総合病院がそろっており、日々の買い物や急な通院にも安心。
さらに、南宮崎駅や小戸橋にも近く、通勤・通学、市内中心部へのアクセスも快適です。
暮らしやすさと心地よさを兼ね備えたこの住まいは、ファミリー世帯やご夫婦の住み替えにもおすすめです。
■無垢材と珪藻土がつくる、深呼吸したくなる住まい
玄関を開けた瞬間、感じるのは自然素材ならではの柔らかな空気感。
居室には無垢材のフローリングと珪藻土の壁を採用しており、肌ざわり・見た目ともにやさしく、快適な室内環境を実現しています。
調湿・消臭効果にも優れ、体にやさしい住まいです。
1階には約12帖のリビングと、引き戸で仕切られた6帖のダイニングスペースがあり、開放すれば一体の広々空間に、閉じれば個室として使い分けも可能。
来客時や生活スタイルに応じて柔軟に対応できます。
南面には大きな掃き出し窓があり、日中は自然光がたっぷりと差し込みます。
手入れの行き届いた庭の緑が、室内に彩りとやすらぎを添え、四季のうつろいを感じられる空間です。
■離れのように落ち着ける、6帖の和室
玄関ホールを挟んだ位置に設けられた6帖の和室は、独立性が高く、まるで離れのような趣のある空間です。
畳のやわらかな踏み心地と、障子越しに入るやわらかな光が、日々の疲れをやさしく癒してくれます。
来客用の客間としてはもちろん、お子様のお昼寝や、趣味、読書、瞑想などプライベートな時間を過ごす場としてもぴったり。
家族構成やライフスタイルに合わせて、自由に使い方をアレンジできる一室です。
■家事動線と快適性を両立した機能的な水まわり
水回り設備は、どれも丁寧に使われており、そのまま快適にご使用いただけるコンディションです。
キッチンは白を基調に清潔感があり、人造大理石のワークトップも広く、3口ガスコンロ・食洗機・大型カップボード付きで、機能性も
| Terrain :土地面積 | 207 m² |
|---|---|
| Bâtiment :建物面積 | 112 m² |
| Échelle :建物規模 | 2 étages hors sol地上2階 |
| Structure :構造 | En bois木造 |
| Bâtit en :建築年 | 1980 |

Orientation sud
Revêtement de la route côté sud
Quartier résidentiel calme
Moins de trafic dans les environs
Situé sur une colline
Bon ensoleillement
Façonner le sol
Vous pouvez emménager immédiatement南向
南側道路面す
閑静な住宅街
周辺交通量少なめ
高台に立地
陽当り良好
整形地
即入居可
| Terrain :土地面積 | 255 m² |
|---|---|
| Bâtiment :建物面積 | 102 m² |
| Structure :構造 | Bâtiment en bois d'un étage木造 1階建 |
| Bâtit en :建築年 | 1974 |

Un espace de vie spacieux d’une surface totale de 125,61 mètres carrés, ainsi qu’un jardin qui vous procure une sensation de détente et d’endroit, sera possible.広々とした延床面積125.61㎡の居室空間、更に敷地はもちろん気持ちにもゆとりを与える庭がある暮らしが叶います。
| Terrain :土地面積 | 1504 m² |
|---|---|
| Bâtiment :建物面積 | 126 m² |
| Échelle :建物規模 | 1 étage hors sol地上1階平屋 |
| Structure :構造 | En bois木造 |
| Bâtit en :建築年 | 1880 |
Toutes les akiya au même endroit
Trouvez la maison vacante parfaite au Japon!

Miyazaki Ken, situé sur l'île de Kyushu, est une préfecture qui charme par son climat doux, ses paysages naturels époustouflants et sa riche culture. Avec ses plages pittoresques le long de la mer de génie, comme celles de Aoshima, et ses montagnes verdoyantes, c'est un véritable havre de paix pour les amateurs de plein air. Ce qui distingue Miyazaki des autres préfectures japonaises, c'est son ambiance détendue et sa qualité de vie élevée, loin du tumulte des grandes villes comme Tokyo ou Osaka. Pour les familles cherchant à acheter une maison abordable, Miyazaki Ken se révèle être un véritable trésor, offrant des prix de l'immobilier bien plus compétitifs que dans les zones urbaines surpeuplées. En moyenne, le coût des logements y est plus faible, et une variété de types de maisons, allant des résidences modernes aux logements traditionnels, est disponible. De plus, la préfecture met en avant une communauté accueillante et une ambiance familiale, avec de nombreuses écoles et services adaptés aux enfants. Pour ceux qui cherchent un cadre de vie paisible tout en restant connectés à la culture japonaise authentique, Miyazaki Ken apparaît comme une option attrayante.
AllAkiyas.com met à votre disposition des milliers d'annonces de biens immobiliers japonais à vendre ou à louer. Notre vaste sélection comprend des maisons individuelles, des maisons de ville, des appartements, des locaux commerciaux et des terrains vagues. Nous accordons une attention particulière aux maisons vacantes traditionnelles, appelées akiya (ou kominka en zone rurale), et aux maisons de ville traditionnelles, ou machiya. Vous pouvez facilement rechercher des biens dans toutes les préfectures du Japon selon vos critères spécifiques.