





Ajouter aux listes:✕
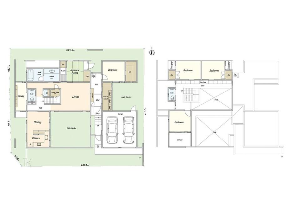
La superficie du site est de 45 tsubo, et deux voitures ordinaires peuvent être garées !
C’est une propriété 4LDK qui est idéale pour la génération qui élève des enfants !敷地面積45坪で普通車2台駐車可能!
4LDKで子育て世代にうれしい物件です!
Terrain :土地面積 | 149 m² |
---|---|
Bâtiment :建物面積 | 125 m² |
Structure :構造 | Bâtiment en bois de 2 étages (méthode de construction 2x4)木造2階建(2×4工法) |
Bâtit en :建築年 | 2024 |
[À environ 8 minutes à pied de l’école primaire Toyota]
Maison ♪ entièrement électrique avec un faible risque d’incendie【豊田小学校まで徒歩約8分】
火災リスク低いオール電化のお家♪
Terrain :土地面積 | 113 m² |
---|---|
Bâtiment :建物面積 | 99 m² |
Structure :構造 | Bâtiment en bois à deux étages木造2階建 |
Bâtit en :建築年 | 2008 |
Toutes les akiya au même endroit
Trouvez la maison vacante parfaite au Japon!
Aichi Ken, située dans la région de Chūbu au Japon, est une préfecture dynamique, souvent négligée par les expatriés au profit de métropoles comme Tokyo ou Osaka. Cependant, elle offre un cadre de vie exceptionnel et rassurant pour les familles qui envisagent de s’y installer. Aichi est principalement connue pour sa capitale, Nagoya, qui est un centre industriel et technologique majeur, abritant le célèbre constructeur automobile Toyota. Cette préfecture allie l'urbanité au charme local, offrant des infrastructures urbaines modernes tout en conservant des quartiers tranquilles et des espaces verts propices à l’épanouissement familial.
Une des grandes atouts d'Aichi Ken est la possibilité d'acheter une maison à des prix généralement plus abordables que ceux trouvés à Tokyo ou Osaka. Les zones résidentielles autour de Nagoya, telles que Toyota City ou Inuyama, présentent des options de logement qui conviennent aux budgets variés. De plus, le réseau de transport est très développé, facilitant les déplacements vers Nagoya tout en vivant dans des régions plus calmes. En somme, Aichi Ken représente une alternative attractive pour ceux cherchant un équilibre entre vie urbaine, tranquillité et accessibilité au logement.
AllAkiyas.com met à votre disposition des milliers d'annonces de biens immobiliers japonais à vendre ou à louer. Notre vaste sélection comprend des maisons individuelles, des maisons de ville, des appartements, des locaux commerciaux et des terrains vagues. Nous accordons une attention particulière aux maisons vacantes traditionnelles, appelées akiya (ou kominka en zone rurale), et aux maisons de ville traditionnelles, ou machiya. Vous pouvez facilement rechercher des biens dans toutes les préfectures du Japon selon vos critères spécifiques.