





Ajouter aux listes:✕
Banque de maisons vacantes [Vente] 3 millions de yens Préfecture d’Ehime Ozu Nagahama Pratique pour vivre et se rendre à l’école 5 chambres avec 4 garages Toilettes à chasse d’eau空き家バンク【売買】300万円 愛媛県大洲市長浜 生活・通学便利 店舗スペース・車庫4台付き5部屋2階建 水洗トイレ
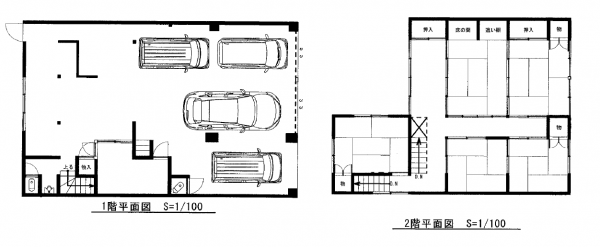
Terrain :土地面積 | 222 m² |
---|---|
Bâtiment :建物面積 | 105 m² |
Structure :構造 | 2 histoires2階建 |
Un bâtiment pouvant servir de petit magasin sur un tout petit terrain
Il y a des toilettes, mais pas de salle de bains ni de toilettes.
Une rénovation est nécessaire pour la rendre habitable.極狭小土地に建つ小店舗に利用できる建物
トイレはありますが、浴室、洗面所設備はありません。
居住するためには、改修が必要です。
Terrain :土地面積 | 14 m² |
---|---|
Bâtiment :建物面積 | Veuillez vous renseigner |
Échelle :建物規模 | 2 étages / -2階建 / - |
Structure :構造 | Châssis en acier鉄骨 |
Bâtit en :建築年 | 1997 |
Toutes les akiya au même endroit
Trouvez la maison vacante parfaite au Japon!
La préfecture d'Ehime, située dans la région de Shikoku au Japon, offre plusieurs avantages en termes de niveau de vie par rapport aux préfectures voisines. Ehime est connue pour ses paysages naturels époustouflants, notamment ses côtes pittoresques, sa verdure luxuriante et ses sources chaudes (onsen). Ehime bénéficie d'un climat relativement doux avec des températures confortables toute l'année, ce qui en fait un choix attrayant pour ceux qui préfèrent ne pas subir de chaleur ou de froid extrême.
Le coût de la vie à Ehime est généralement inférieur à celui des grandes zones urbaines comme Tokyo ou Osaka. Les coûts du logement, de la nourriture et du transport sont également plus abordables, contribuant ainsi à un niveau de vie raisonnable. Si vous êtes ouvert à la rénovation, acquérir des compétences de base en construction ou en rénovation ou embaucher des professionnels peut faciliter l'achat d'une propriété à faible coût ayant besoin de réparations. Bien que trouver un logement abordable puisse nécessiter certains efforts, les avantages de vivre dans une région aussi pittoresque et culturellement riche peuvent être substantiels.
AllAkiyas.com met à votre disposition des milliers d'annonces de biens immobiliers japonais à vendre ou à louer. Notre vaste sélection comprend des maisons individuelles, des maisons de ville, des appartements, des locaux commerciaux et des terrains vagues. Nous accordons une attention particulière aux maisons vacantes traditionnelles, appelées akiya (ou kominka en zone rurale), et aux maisons de ville traditionnelles, ou machiya. Vous pouvez facilement rechercher des biens dans toutes les préfectures du Japon selon vos critères spécifiques.