
Vérifiez disponibilitéAjouter aux listes:✕

À 5 minutes à pied de Super Matsubaya. Vous pouvez également voir le feu d’artifice des mille lanternes du jardin. Pourquoi ne pas le louer après son achat ?スーパーまつばや徒歩5分。千灯籠の花火もお庭から見ることができます。購入されてから賃貸などにしてみてはいかがでしょうか
| Terrain :土地面積 | 226 m² |
|---|---|
| Bâtiment :建物面積 | 97 m² |
| Échelle :建物規模 | Maison à un étage平屋 |
| Structure :構造 | En bois木造 |
| Bâtit en :建築年 | 1955 |

La propriété est située dans un quartier scolaire, à seulement 90 m de l'école primaire Ono, nous sommes donc en mesure de gérer ce terrain populaire qui peut répondre à un large éventail de besoins, y compris les familles avec des enfants entrant à l'école primaire et ceux qui envisagent d'acheter une maison !
Le prix peut être négocié avec le propriétaire, donc si vous êtes intéressé, contactez-nous !学校区の立地になりまして、大野小学校まで90mと目と鼻の先ですので、新たに小学校に上がるお子さんがいらっしゃるご家族や今から戸建て購入をご検討中の方など幅広いニーズにお応えできる人気の土地をお預かりさせていただきました!
オーナー様にも金額交渉可能になりますので、気になられる方は是非ご連絡下さい!
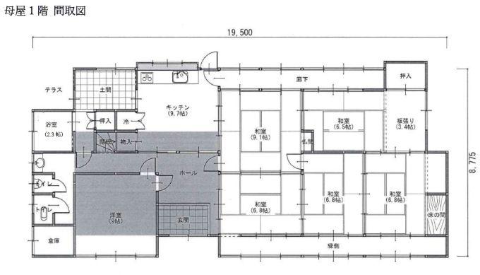
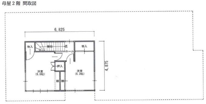
| Terrain :土地面積 | 182 m² |
|---|---|
| Bâtiment :建物面積 | 96 m² |
| Échelle :建物規模 | 2 étages hors sol地上2階建 |
| Structure :構造 | En bois木造 |
| Bâtit en :建築年 | 1955 |

C'est un incontournable pour les amateurs de vieilles maisons. S'il vous plaît, jetez un oeil. D'autres terres agricoles et forestières sont également disponibles (sur demande).古民家好きにはたまらないかも。是非一度ご覧ください。他畑山林等あり(応相談)。
| Terrain :土地面積 | 396 m² |
|---|---|
| Bâtiment :建物面積 | 290 m² |
| Échelle :建物規模 | 2 étages hors sol地上2階建 |
| Structure :構造 | En bois木造 |
| Bâtit en :建築年 | 1958 |
Toutes les akiya au même endroit
Trouvez la maison vacante parfaite au Japon!

Nagasaki Ken, située sur l'île de Kyushu, offre un cadre de vie apaisant, riche en histoire et en culture, tout en étant moins urbanisée que des préfectures comme Tokyo ou Osaka. Réputée pour ses paysages côtiers pittoresques, ses montagnes verdoyantes et son patrimoine historique, notamment en tant que port privilégié pour les échanges internationaux pendant la période Edo, Nagasaki séduit de nombreuses familles souhaitant s'expatrier. En comparaison avec d'autres préfectures japonaises, Nagasaki Ken présente un coût de la vie plus abordable, notamment en ce qui concerne le logement, où les prix sont souvent moins élevés que dans les grands centres urbains. Les familles peuvent trouver des maisons spacieuses et des appartements à des tarifs accessibles. L'accessibilité au logement est relativement bonne, avec un choix varié allant des logements prédominants dans les villes comme Nagasaki, à des maisons traditionnelles dans des zones rurales plus tranquilles. De plus, les transports en commun efficaces permettent de se déplacer facilement, tout en favorisant un style de vie équilibré, loin du tumulte des mégalopoles. Ces qualités font de Nagasaki une destination attrayante pour les expatriés cherchant à vivre au Japon tout en savourant une qualité de vie enrichissante.
AllAkiyas.com met à votre disposition des milliers d'annonces de biens immobiliers japonais à vendre ou à louer. Notre vaste sélection comprend des maisons individuelles, des maisons de ville, des appartements, des locaux commerciaux et des terrains vagues. Nous accordons une attention particulière aux maisons vacantes traditionnelles, appelées akiya (ou kominka en zone rurale), et aux maisons de ville traditionnelles, ou machiya. Vous pouvez facilement rechercher des biens dans toutes les préfectures du Japon selon vos critères spécifiques.