All Akiyas
S'inscrire
S'inscrire


detached 才羽
Image précédente
Image suivante
Voir en plein écran
Ajouter ou supprimer de ma liste
detached 才羽
detached 才羽
detached 才羽
detached 才羽
detached 才羽
detached 才羽
detached 才羽
detached 才羽
USD $96,168
(¥15,000,000)
1500 万円
5LDK
  • 5 chambres à coucher
  • Salon, salle à manger et cuisine intégrés
Superficie du terrain
Terrain土地面積
1917 m²
Superficie du bâtiment
Bâtiment建物面積
182 m²
  • Infos
  • Carte
Description

Il y a des terres résidentielles et des maisons, des rizières et des terres agricoles à usage privé. Il y a un manoir et un champ dans la zone résidentielle. Il y a de grandes maisons, des garages et d’autres bâtiments, de grands jardins et des espaces ouverts, donc il existe des poches pouvant servir à diverses fins, pas seulement à l’agriculture. La maison a 50 ans. Idéalement, le manoir et les terres agricoles devraient être vendus en vrac, mais il est aussi possible de les vendre en plusieurs fois (terrains résidentiels + petites terres agricoles adjacentes, ou grandes rizières). L’achat de terres agricoles est régi par la loi sur les terres agricoles et nécessite les qualifications des agriculteurs ainsi que l’autorisation de la Commission agricole.宅地と住宅、水田と自家用畑の農地があります。宅地の中に屋敷と畑があります。大きな住宅と車庫などの建物、広い庭と空地があるので農業に限らず様々な用途に使える懐があります。住宅は築50年。屋敷と農地を一括売却が理想だが、分割売却(宅地+隣接小規模農地、または大型水田)も可。農地の購入は農地法の規制があり、農家資格や農業委員会の許可が必要。

Échelle / PlanÉchelle / Plan構造・間取り

  • 2 histoires
  • Parking : Garage disponible (bâtiment annexe : garage, hangar à conte
  • 2階建
  • 駐車場:車庫あり(付属棟:車庫・コンテナハウス・物置、全て未登記)
Adresse
Préfecture de Saitama, district de Kita-Katsushika, ville de Sugito埼玉県北葛飾郡杉戸町
detached 埼玉県上尾市谷津2丁目2番1号ショーサンプラザ5F
Image précédente
Image suivante
Voir en plein écran
Ajouter ou supprimer de ma liste
detached 埼玉県上尾市谷津2丁目2番1号ショーサンプラザ5F
detached 埼玉県上尾市谷津2丁目2番1号ショーサンプラザ5F
detached 埼玉県上尾市谷津2丁目2番1号ショーサンプラザ5F
detached 埼玉県上尾市谷津2丁目2番1号ショーサンプラザ5F
detached 埼玉県上尾市谷津2丁目2番1号ショーサンプラザ5F
detached 埼玉県上尾市谷津2丁目2番1号ショーサンプラザ5F
detached 埼玉県上尾市谷津2丁目2番1号ショーサンプラザ5F
detached 埼玉県上尾市谷津2丁目2番1号ショーサンプラザ5F
detached 埼玉県上尾市谷津2丁目2番1号ショーサンプラザ5F
detached 埼玉県上尾市谷津2丁目2番1号ショーサンプラザ5F
detached 埼玉県上尾市谷津2丁目2番1号ショーサンプラザ5F
detached 埼玉県上尾市谷津2丁目2番1号ショーサンプラザ5F
detached 埼玉県上尾市谷津2丁目2番1号ショーサンプラザ5F
detached 埼玉県上尾市谷津2丁目2番1号ショーサンプラザ5F
detached 埼玉県上尾市谷津2丁目2番1号ショーサンプラザ5F
detached 埼玉県上尾市谷津2丁目2番1号ショーサンプラザ5F
detached 埼玉県上尾市谷津2丁目2番1号ショーサンプラザ5F
detached 埼玉県上尾市谷津2丁目2番1号ショーサンプラザ5F
detached 埼玉県上尾市谷津2丁目2番1号ショーサンプラザ5F
detached 埼玉県上尾市谷津2丁目2番1号ショーサンプラザ5F
detached 埼玉県上尾市谷津2丁目2番1号ショーサンプラザ5F
detached 埼玉県上尾市谷津2丁目2番1号ショーサンプラザ5F
detached 埼玉県上尾市谷津2丁目2番1号ショーサンプラザ5F
detached 埼玉県上尾市谷津2丁目2番1号ショーサンプラザ5F
detached 埼玉県上尾市谷津2丁目2番1号ショーサンプラザ5F
detached 埼玉県上尾市谷津2丁目2番1号ショーサンプラザ5F
detached 埼玉県上尾市谷津2丁目2番1号ショーサンプラザ5F
detached 埼玉県上尾市谷津2丁目2番1号ショーサンプラザ5F
detached 埼玉県上尾市谷津2丁目2番1号ショーサンプラザ5F
detached 埼玉県上尾市谷津2丁目2番1号ショーサンプラザ5F
USD $102,516
(¥15,990,000)
1599 万円
3LDK
  • 3 chambres à coucher
  • Salon, salle à manger et cuisine intégrés
Superficie du terrain
Terrain土地面積
107 m²
Superficie du bâtiment
Bâtiment建物面積
86 m²
Bâtit
Bâtit建築年
1989
  • Infos
  • Carte

Échelle / PlanÉchelle / Plan構造・間取り

  • 2 étages hors sol
  • Parking : 2 places disponibles
  • 地上2階建
  • 駐車場:2台空 有
Adresse
5F, Shosan Plaza, 2-2-1 Yatsu, Ageo City, préfecture de Saitama埼玉県上尾市谷津2丁目2番1号ショーサンプラザ5F
(Localisation approximative)
detached 埼玉県さいたま市見沼区東大宮5丁目31-9 NYビル
Image précédente
Image suivante
Voir en plein écran
Ajouter ou supprimer de ma liste
detached 埼玉県さいたま市見沼区東大宮5丁目31-9 NYビル
detached 埼玉県さいたま市見沼区東大宮5丁目31-9 NYビル
detached 埼玉県さいたま市見沼区東大宮5丁目31-9 NYビル
detached 埼玉県さいたま市見沼区東大宮5丁目31-9 NYビル
detached 埼玉県さいたま市見沼区東大宮5丁目31-9 NYビル
detached 埼玉県さいたま市見沼区東大宮5丁目31-9 NYビル
detached 埼玉県さいたま市見沼区東大宮5丁目31-9 NYビル
detached 埼玉県さいたま市見沼区東大宮5丁目31-9 NYビル
detached 埼玉県さいたま市見沼区東大宮5丁目31-9 NYビル
detached 埼玉県さいたま市見沼区東大宮5丁目31-9 NYビル
detached 埼玉県さいたま市見沼区東大宮5丁目31-9 NYビル
detached 埼玉県さいたま市見沼区東大宮5丁目31-9 NYビル
detached 埼玉県さいたま市見沼区東大宮5丁目31-9 NYビル
detached 埼玉県さいたま市見沼区東大宮5丁目31-9 NYビル
detached 埼玉県さいたま市見沼区東大宮5丁目31-9 NYビル
detached 埼玉県さいたま市見沼区東大宮5丁目31-9 NYビル
detached 埼玉県さいたま市見沼区東大宮5丁目31-9 NYビル
detached 埼玉県さいたま市見沼区東大宮5丁目31-9 NYビル
detached 埼玉県さいたま市見沼区東大宮5丁目31-9 NYビル
detached 埼玉県さいたま市見沼区東大宮5丁目31-9 NYビル
detached 埼玉県さいたま市見沼区東大宮5丁目31-9 NYビル
detached 埼玉県さいたま市見沼区東大宮5丁目31-9 NYビル
detached 埼玉県さいたま市見沼区東大宮5丁目31-9 NYビル
detached 埼玉県さいたま市見沼区東大宮5丁目31-9 NYビル
detached 埼玉県さいたま市見沼区東大宮5丁目31-9 NYビル
detached 埼玉県さいたま市見沼区東大宮5丁目31-9 NYビル
detached 埼玉県さいたま市見沼区東大宮5丁目31-9 NYビル
detached 埼玉県さいたま市見沼区東大宮5丁目31-9 NYビル
detached 埼玉県さいたま市見沼区東大宮5丁目31-9 NYビル
detached 埼玉県さいたま市見沼区東大宮5丁目31-9 NYビル
USD $178,232
(¥27,800,000)
2780 万円
1SLDK
  • 1 chambre à coucher
  • 1 pièce de service (rangement/salon)
  • Salon, salle à manger et cuisine intégrés
Superficie du terrain
Terrain土地面積
155 m²
Superficie du bâtiment
Bâtiment建物面積
56 m²
Bâtit
Bâtit建築年
1972
  • Infos
  • Carte

Échelle / PlanÉchelle / Plan構造・間取り

  • 1 étage hors sol
  • Parking : Oui
  • 地上1階建
  • 駐車場:有
Adresse
Bâtiment de New York, 5-31-9 Higashi Omiya, Minuma-ku, ville de Saitama, préfecture de Saitama埼玉県さいたま市見沼区東大宮5丁目31-9 NYビル
(Localisation approximative)
detached 埼玉県さいたま市浦和区神明2丁目12-10
Image précédente
Image suivante
Voir en plein écran
Ajouter ou supprimer de ma liste
detached 埼玉県さいたま市浦和区神明2丁目12-10
detached 埼玉県さいたま市浦和区神明2丁目12-10
detached 埼玉県さいたま市浦和区神明2丁目12-10
detached 埼玉県さいたま市浦和区神明2丁目12-10
detached 埼玉県さいたま市浦和区神明2丁目12-10
detached 埼玉県さいたま市浦和区神明2丁目12-10
detached 埼玉県さいたま市浦和区神明2丁目12-10
detached 埼玉県さいたま市浦和区神明2丁目12-10
detached 埼玉県さいたま市浦和区神明2丁目12-10
detached 埼玉県さいたま市浦和区神明2丁目12-10
detached 埼玉県さいたま市浦和区神明2丁目12-10
detached 埼玉県さいたま市浦和区神明2丁目12-10
detached 埼玉県さいたま市浦和区神明2丁目12-10
detached 埼玉県さいたま市浦和区神明2丁目12-10
detached 埼玉県さいたま市浦和区神明2丁目12-10
detached 埼玉県さいたま市浦和区神明2丁目12-10
detached 埼玉県さいたま市浦和区神明2丁目12-10
detached 埼玉県さいたま市浦和区神明2丁目12-10
detached 埼玉県さいたま市浦和区神明2丁目12-10
detached 埼玉県さいたま市浦和区神明2丁目12-10
detached 埼玉県さいたま市浦和区神明2丁目12-10
detached 埼玉県さいたま市浦和区神明2丁目12-10
detached 埼玉県さいたま市浦和区神明2丁目12-10
detached 埼玉県さいたま市浦和区神明2丁目12-10
detached 埼玉県さいたま市浦和区神明2丁目12-10
detached 埼玉県さいたま市浦和区神明2丁目12-10
detached 埼玉県さいたま市浦和区神明2丁目12-10
detached 埼玉県さいたま市浦和区神明2丁目12-10
detached 埼玉県さいたま市浦和区神明2丁目12-10
detached 埼玉県さいたま市浦和区神明2丁目12-10
USD $184,643
(¥28,800,000)
2880 万円
4LDK
  • 4 chambres à coucher
  • Salon, salle à manger et cuisine intégrés
Superficie du terrain
Terrain土地面積
335 m²
Superficie du bâtiment
Bâtiment建物面積
101 m²
Bâtit
Bâtit建築年
2014
  • Infos
  • Carte

Échelle / PlanÉchelle / Plan構造・間取り

  • 2 étages hors sol
  • Parking : 3 places disponibles (sur place)
  • 地上2階建
  • 駐車場:3台空 有(敷地内)
Adresse
2-12-10 Shinmei, Urawa-ku, ville de Saitama, préfecture de Saitama埼玉県さいたま市浦和区神明2丁目12-10
(Localisation approximative)
detached 埼玉県さいたま市見沼区東大宮5丁目31-9 NYビル
Image précédente
Image suivante
Voir en plein écran
Ajouter ou supprimer de ma liste
detached 埼玉県さいたま市見沼区東大宮5丁目31-9 NYビル
detached 埼玉県さいたま市見沼区東大宮5丁目31-9 NYビル
detached 埼玉県さいたま市見沼区東大宮5丁目31-9 NYビル
detached 埼玉県さいたま市見沼区東大宮5丁目31-9 NYビル
detached 埼玉県さいたま市見沼区東大宮5丁目31-9 NYビル
detached 埼玉県さいたま市見沼区東大宮5丁目31-9 NYビル
detached 埼玉県さいたま市見沼区東大宮5丁目31-9 NYビル
detached 埼玉県さいたま市見沼区東大宮5丁目31-9 NYビル
detached 埼玉県さいたま市見沼区東大宮5丁目31-9 NYビル
detached 埼玉県さいたま市見沼区東大宮5丁目31-9 NYビル
detached 埼玉県さいたま市見沼区東大宮5丁目31-9 NYビル
detached 埼玉県さいたま市見沼区東大宮5丁目31-9 NYビル
detached 埼玉県さいたま市見沼区東大宮5丁目31-9 NYビル
detached 埼玉県さいたま市見沼区東大宮5丁目31-9 NYビル
detached 埼玉県さいたま市見沼区東大宮5丁目31-9 NYビル
detached 埼玉県さいたま市見沼区東大宮5丁目31-9 NYビル
detached 埼玉県さいたま市見沼区東大宮5丁目31-9 NYビル
detached 埼玉県さいたま市見沼区東大宮5丁目31-9 NYビル
detached 埼玉県さいたま市見沼区東大宮5丁目31-9 NYビル
detached 埼玉県さいたま市見沼区東大宮5丁目31-9 NYビル
detached 埼玉県さいたま市見沼区東大宮5丁目31-9 NYビル
detached 埼玉県さいたま市見沼区東大宮5丁目31-9 NYビル
detached 埼玉県さいたま市見沼区東大宮5丁目31-9 NYビル
detached 埼玉県さいたま市見沼区東大宮5丁目31-9 NYビル
detached 埼玉県さいたま市見沼区東大宮5丁目31-9 NYビル
detached 埼玉県さいたま市見沼区東大宮5丁目31-9 NYビル
detached 埼玉県さいたま市見沼区東大宮5丁目31-9 NYビル
detached 埼玉県さいたま市見沼区東大宮5丁目31-9 NYビル
detached 埼玉県さいたま市見沼区東大宮5丁目31-9 NYビル
detached 埼玉県さいたま市見沼区東大宮5丁目31-9 NYビル
USD $102,516
(¥15,990,000)
1599 万円
3LDK
  • 3 chambres à coucher
  • Salon, salle à manger et cuisine intégrés
Superficie du terrain
Terrain土地面積
107 m²
Superficie du bâtiment
Bâtiment建物面積
86 m²
Bâtit
Bâtit建築年
1989
  • Infos
  • Carte

Échelle / PlanÉchelle / Plan構造・間取り

  • 2 étages hors sol
  • Parking : 2 places disponibles
  • 地上2階建
  • 駐車場:2台空 有
Adresse
Bâtiment de New York, 5-31-9 Higashi Omiya, Minuma-ku, ville de Saitama, préfecture de Saitama埼玉県さいたま市見沼区東大宮5丁目31-9 NYビル
(Localisation approximative)
detached 埼玉県上尾市谷津2丁目2番1号ショーサンプラザ5F
Image précédente
Image suivante
Voir en plein écran
Ajouter ou supprimer de ma liste
detached 埼玉県上尾市谷津2丁目2番1号ショーサンプラザ5F
detached 埼玉県上尾市谷津2丁目2番1号ショーサンプラザ5F
detached 埼玉県上尾市谷津2丁目2番1号ショーサンプラザ5F
detached 埼玉県上尾市谷津2丁目2番1号ショーサンプラザ5F
detached 埼玉県上尾市谷津2丁目2番1号ショーサンプラザ5F
detached 埼玉県上尾市谷津2丁目2番1号ショーサンプラザ5F
detached 埼玉県上尾市谷津2丁目2番1号ショーサンプラザ5F
detached 埼玉県上尾市谷津2丁目2番1号ショーサンプラザ5F
detached 埼玉県上尾市谷津2丁目2番1号ショーサンプラザ5F
detached 埼玉県上尾市谷津2丁目2番1号ショーサンプラザ5F
detached 埼玉県上尾市谷津2丁目2番1号ショーサンプラザ5F
detached 埼玉県上尾市谷津2丁目2番1号ショーサンプラザ5F
detached 埼玉県上尾市谷津2丁目2番1号ショーサンプラザ5F
detached 埼玉県上尾市谷津2丁目2番1号ショーサンプラザ5F
detached 埼玉県上尾市谷津2丁目2番1号ショーサンプラザ5F
detached 埼玉県上尾市谷津2丁目2番1号ショーサンプラザ5F
detached 埼玉県上尾市谷津2丁目2番1号ショーサンプラザ5F
detached 埼玉県上尾市谷津2丁目2番1号ショーサンプラザ5F
detached 埼玉県上尾市谷津2丁目2番1号ショーサンプラザ5F
detached 埼玉県上尾市谷津2丁目2番1号ショーサンプラザ5F
detached 埼玉県上尾市谷津2丁目2番1号ショーサンプラザ5F
detached 埼玉県上尾市谷津2丁目2番1号ショーサンプラザ5F
detached 埼玉県上尾市谷津2丁目2番1号ショーサンプラザ5F
detached 埼玉県上尾市谷津2丁目2番1号ショーサンプラザ5F
detached 埼玉県上尾市谷津2丁目2番1号ショーサンプラザ5F
detached 埼玉県上尾市谷津2丁目2番1号ショーサンプラザ5F
detached 埼玉県上尾市谷津2丁目2番1号ショーサンプラザ5F
detached 埼玉県上尾市谷津2丁目2番1号ショーサンプラザ5F
detached 埼玉県上尾市谷津2丁目2番1号ショーサンプラザ5F
detached 埼玉県上尾市谷津2丁目2番1号ショーサンプラザ5F
USD $210,288
(¥32,800,000)
3280 万円
1SLDK
  • 1 chambre à coucher
  • 1 pièce de service (rangement/salon)
  • Salon, salle à manger et cuisine intégrés
Superficie du terrain
Terrain土地面積
155 m²
Superficie du bâtiment
Bâtiment建物面積
68 m²
Bâtit
Bâtit建築年
1972
  • Infos
  • Carte

Échelle / PlanÉchelle / Plan構造・間取り

  • 1 étage hors sol
  • Parking : 1 voiture disponible
  • 地上1階建
  • 駐車場:1台空 有
Adresse
5F, Shosan Plaza, 2-2-1 Yatsu, Ageo City, préfecture de Saitama埼玉県上尾市谷津2丁目2番1号ショーサンプラザ5F
(Localisation approximative)
detached 埼玉県北葛飾郡杉戸町清地6丁目
地図を見る
Image précédente
Image suivante
Voir en plein écran
Ajouter ou supprimer de ma liste
detached 埼玉県北葛飾郡杉戸町清地6丁目
地図を見る
detached 埼玉県北葛飾郡杉戸町清地6丁目
地図を見る
detached 埼玉県北葛飾郡杉戸町清地6丁目
地図を見る
detached 埼玉県北葛飾郡杉戸町清地6丁目
地図を見る
detached 埼玉県北葛飾郡杉戸町清地6丁目
地図を見る
detached 埼玉県北葛飾郡杉戸町清地6丁目
地図を見る
detached 埼玉県北葛飾郡杉戸町清地6丁目
地図を見る
detached 埼玉県北葛飾郡杉戸町清地6丁目
地図を見る
detached 埼玉県北葛飾郡杉戸町清地6丁目
地図を見る
detached 埼玉県北葛飾郡杉戸町清地6丁目
地図を見る
detached 埼玉県北葛飾郡杉戸町清地6丁目
地図を見る
detached 埼玉県北葛飾郡杉戸町清地6丁目
地図を見る
USD $102,516
(¥15,990,000)
1599 万円
3LDK
  • 3 chambres à coucher
  • Salon, salle à manger et cuisine intégrés
Superficie du terrain
Terrain土地面積
107 m²
Superficie du bâtiment
Bâtiment建物面積
86 m²
Bâtit
Bâtit建築年
1989
  • Infos
  • Carte

Échelle / PlanÉchelle / Plan構造・間取り

  • 2 étages hors sol
  • Parking : 2 places disponibles
  • 地上2階建
  • 駐車場:2台空 有
Adresse
Préfecture de Saitama Kita-Katsushika-gun Sugito-cho Kiyochi 6-chome Voir la carte埼玉県北葛飾郡杉戸町清地6丁目 地図を見る
(Localisation approximative)
Ajouter ou supprimer de ma liste
USD $102,516
(¥15,990,000)
1599 万円
Superficie du terrain
Terrain土地面積
107 m²
Superficie du bâtiment
Bâtiment建物面積
86 m²
Bâtit
Bâtit建築年
1989
  • Infos
  • Carte
Description

★ ☆ Nous pouvons vous guider à tout moment les samedis, dimanches et jours de semaine ☆ Que diriez-vous d’acheter une nouvelle maison ou votre première maison ? S’il vous plaît jetez-y un coup d☆ ★☆★土日・平日いつでも案内可能です☆買換えまたははじめてのマイホームに如何ですか?是非一度ご覧ください☆★

Échelle / PlanÉchelle / Plan構造・間取り

  • 2 étages hors sol
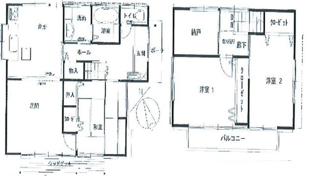
  • Plan d'étage : 3LDK Chambre à la japonaise 6 tatamis / Chambre à l’occidentale 5 tatamis / Chambre à l’occidentale 5 tatamis / Tatami à l’occidentale / LDK16.5
    6 ans 5・5 LDK 16.5
  • 地上2階
  • 間取り:3LDK 和室6帖/洋室5帖/洋室5帖/LDK16.5帖
    和 6 洋 5・5 LDK 16.5
Adresse
Préfecture de Saitama Kita-Katsushika-gun Sugito-cho Kiyochi 6-chome埼玉県北葛飾郡杉戸町清地6丁目
(Localisation approximative)
detached 埼玉県上尾市谷津2丁目2番1号ショーサンプラザ5F
Image précédente
Image suivante
Voir en plein écran
Ajouter ou supprimer de ma liste
detached 埼玉県上尾市谷津2丁目2番1号ショーサンプラザ5F
detached 埼玉県上尾市谷津2丁目2番1号ショーサンプラザ5F
detached 埼玉県上尾市谷津2丁目2番1号ショーサンプラザ5F
detached 埼玉県上尾市谷津2丁目2番1号ショーサンプラザ5F
detached 埼玉県上尾市谷津2丁目2番1号ショーサンプラザ5F
detached 埼玉県上尾市谷津2丁目2番1号ショーサンプラザ5F
detached 埼玉県上尾市谷津2丁目2番1号ショーサンプラザ5F
detached 埼玉県上尾市谷津2丁目2番1号ショーサンプラザ5F
detached 埼玉県上尾市谷津2丁目2番1号ショーサンプラザ5F
detached 埼玉県上尾市谷津2丁目2番1号ショーサンプラザ5F
detached 埼玉県上尾市谷津2丁目2番1号ショーサンプラザ5F
detached 埼玉県上尾市谷津2丁目2番1号ショーサンプラザ5F
detached 埼玉県上尾市谷津2丁目2番1号ショーサンプラザ5F
detached 埼玉県上尾市谷津2丁目2番1号ショーサンプラザ5F
detached 埼玉県上尾市谷津2丁目2番1号ショーサンプラザ5F
detached 埼玉県上尾市谷津2丁目2番1号ショーサンプラザ5F
detached 埼玉県上尾市谷津2丁目2番1号ショーサンプラザ5F
detached 埼玉県上尾市谷津2丁目2番1号ショーサンプラザ5F
detached 埼玉県上尾市谷津2丁目2番1号ショーサンプラザ5F
detached 埼玉県上尾市谷津2丁目2番1号ショーサンプラザ5F
detached 埼玉県上尾市谷津2丁目2番1号ショーサンプラザ5F
detached 埼玉県上尾市谷津2丁目2番1号ショーサンプラザ5F
detached 埼玉県上尾市谷津2丁目2番1号ショーサンプラザ5F
detached 埼玉県上尾市谷津2丁目2番1号ショーサンプラザ5F
detached 埼玉県上尾市谷津2丁目2番1号ショーサンプラザ5F
detached 埼玉県上尾市谷津2丁目2番1号ショーサンプラザ5F
detached 埼玉県上尾市谷津2丁目2番1号ショーサンプラザ5F
detached 埼玉県上尾市谷津2丁目2番1号ショーサンプラザ5F
detached 埼玉県上尾市谷津2丁目2番1号ショーサンプラザ5F
detached 埼玉県上尾市谷津2丁目2番1号ショーサンプラザ5F
USD $99,374
(¥15,500,000)
1550 万円
3SLDK
  • 3 chambres à coucher
  • 1 pièce de service (rangement/salon)
  • Salon, salle à manger et cuisine intégrés
Superficie du terrain
Terrain土地面積
120 m²
Superficie du bâtiment
Bâtiment建物面積
94 m²
Bâtit
Bâtit建築年
1979
  • Infos
  • Carte

Échelle / PlanÉchelle / Plan構造・間取り

  • Bâtiment de 2 étages (hors sol)
  • Plan d'étage : 3SLDK (3 chambres, séjour/cuisine/salle à manger, plus une pièce de service)
  • Parking : Stationnement : 2 places disponibles
  • 地上2階建
  • 間取り:3SLDK
  • 駐車場:2台空 有
Adresse
5ᵉ étage, Shōsa Sun Plaza, 2-2-1 Yatsu, ville d'Ageo, préfecture de Saitama, Japon埼玉県上尾市谷津2丁目2番1号ショーサンプラザ5F
(Localisation approximative)

Toutes les akiya au même endroit

Trouvez la maison vacante parfaite au Japon!

  • Toutes les préfectures du Japon sur un seul site
  • Annonces détaillées avec coordonnées
  • Traduites en français pour faciliter vos recherches
  • Recherchez des propriétés selon vos propres critères
  • Recevez nos alertes personnalisées par email

Se connecter  S'inscrire
Saitama Ken

S'établir à Saitama

Saitama Ken, situé au nord de Tokyo, offre un style de vie attrayant, particulièrement pour les familles. Sa proximité avec la capitale permet de bénéficier des commodités urbaines tout en jouissant d'un environnement plus calme et résidentiel. Les infrastructures, notamment les écoles, les parcs et les centres commerciaux, sont bien développées, facilitant ainsi le quotidien.

Trouver un logement abordable peut être plus facile à Saitama que dans Tokyo, où les prix sont élevés. Les loyers y sont généralement inférieurs, et vous pouvez trouver des appartements spacieux ou des maisons individuelles. Cela en fait une option prisée par ceux qui cherchent à combiner vie urbaine et tranquillité.

En termes de qualité de vie, Saitama se distingue par un cadre de vie agréable, une bonne sécurité et des activités culturelles. Le coût de la vie est également plus bas comparé à Tokyo, même si certains produits alimentaires peuvent être équivalents. Dans l'ensemble, Saitama Ken représente un excellent choix pour ceux qui souhaitent s'installer au Japon, offrant un équilibre entre accessibilité et vie de famille, tout en restant connecté à la dynamique de Tokyo.


Trouvez un bien immobilier avec AllAkiyas.com

AllAkiyas.com met à votre disposition des milliers d'annonces de biens immobiliers japonais à vendre ou à louer. Notre vaste sélection comprend des maisons individuelles, des maisons de ville, des appartements, des locaux commerciaux et des terrains vagues. Nous accordons une attention particulière aux maisons vacantes traditionnelles, appelées akiya (ou kominka en zone rurale), et aux maisons de ville traditionnelles, ou machiya. Vous pouvez facilement rechercher des biens dans toutes les préfectures du Japon selon vos critères spécifiques.


Image précédente
Image suivante
Fermer les images