
Verify availabilityAdd to lists:✕

The temple is the landlord of this property, and the biggest advantage of renting is that you can live in an expensive location that is difficult to buy, as long as you pay the monthly rent!本物件はお寺さんが地主の借地権となっております。借地権は毎月地代をお支払いすれば、値段が高くて購入が難しい立地にお住まいになれるのが最大のメリットになります!
| Land:土地面積 | 166 m² |
|---|---|
| Building:建物面積 | 148 m² |
| Scale:建物規模 | 2 stories2階建 |
| Structure:構造 | Wooden木造 |
| Built in:建築年 | 1982 |

池上新町2丁目売家は川崎市川崎区池上新町2丁目11番11にある3DK売中古戸建(オーナーチェンジ物件)です。月額賃料10万円、年間収入120万円、利回り6.85%。2017年リノベーション済み。専用トイレ・下駄箱・温水洗浄便座、バス、トイレ別・追い焚き・脱衣所、給湯(ガス)エアコン、フローリング、室内洗濯機置き場・収納・独立洗面台。コストコ迄徒歩6分です。池上新町2丁目売家は川崎市川崎区池上新町2丁目11番11にある3DK売中古戸建(オーナーチェンジ物件)です。月額賃料10万円、年間収入120万円、利回り6.85%。2017年リノベーション済み。専用トイレ・下駄箱・温水洗浄便座、バス、トイレ別・追い焚き・脱衣所、給湯(ガス)エアコン、フローリング、室内洗濯機置き場・収納・独立洗面台。コストコ迄徒歩6分です。
| Land:土地面積 | 60 m² |
|---|---|
| Building:建物面積 | 55 m² |
| Scale:建物規模 | 2階建て2階建て |
| Structure:構造 | 木造木造 |
| Built in:建築年 | 1980 |

This is not to be missed in terms of enjoyment!! A designer detached house with a lot of care. It is a top-rated house in the construction industry, which has been listed in new construction and modern living. Big size with a building area of 140 square meters. The terrace is connected to the dining kitchen. In the living room, there is a wood stove and a bold atrium. At the end of the stairs and corridors that go up the atrium, there is a glass-walled study. The bedroom and bath also have a view of the sea. There are two cars in the garage and one outdoors. The garden surrounded by greenery that is growing rapidly is also luxurious. It is a one-of-a-kind designer house in such a world. The location is near the Mt. Kaiyama Garden and right next to Zushi Marina. It has a high ground, an alk above sea level, a view of the sea, and no problem with the width of the road. If you are on a budget, don't miss this! !これはエンジョイ的に見逃せない!!!こだわりにこだわりぬいたデザイナーズ戸建。新建築やモダンリビングにも掲載された、建築業界内でもトップ評価されたお宅です。建物面積140㎡のビッグサイズ。ダイニングキッチンから一体につながるテラス。リビングには薪ストーブにドンと大胆な吹抜け。吹抜けを昇る階段と渡り廊下の先に、ガラス張りの書斎。寝室とお風呂からは海も望めます。ガレージには車2台、屋外にもう1台は停められます。すくすく育っている緑に囲まれたお庭も贅沢。そんな世界に一つ、唯一無二のデザイナーズハウスです。披露山庭園近く、逗子マリーナへもすぐ、のロケーション。高台で海抜もあり、海も望める、道幅も問題なし、っていうなかなか得難い条件揃ってます。ご予算の合う方、これは見逃すなかれ!!
| Land:土地面積 | 299 m² |
|---|---|
| Building:建物面積 | 140 m² |
| Scale:建物規模 | 2 stories2階建て |
| Structure:構造 | Wooden木造 |
| Built in:建築年 | 2004 |

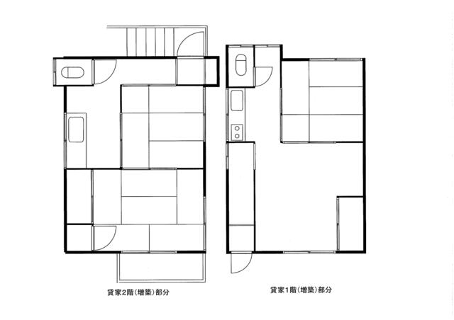
The interior and exterior were fully renovated in March 2022. This 4LDK apartment is currently being rented for 110,000 yen. The building was built in August 1979. However, due to COVID-19, only single people were allowed to rent out the property outside the base, so we gave up on renting out the property to the base. Currently, after the tenants move out, we can significantly increase our profit margin with renting out the property to the base. It is located in a quiet residential area. The garage can accommodate parking up to 5.1m. It will be sold as is. No new surveys will be conducted. Please excuse any non-compliance with the contract. The current exterior walls and roof are gray after painting.令和4年3月に内外装をフルリノベーション工事しました。4LDK、11万円にて、賃貸中です。建物は昭和54年8月築です。但し、コロナの為単身者のみ、ベース外を認めていたため、ベース賃貸を断念しました。現在、入居者の退室後はベース賃貸にて、収益率は大幅アップが可能です。閑静な住宅地にあります。車庫は、5.1mまで駐車可です。現状のまま販売します。新たに測量などは行いません。契約不適合免責でお願いします。塗装後の現状外壁、屋根はグレーです。
| Land:土地面積 | 162 m² |
|---|---|
| Building:建物面積 | 106 m² |
| Scale:建物規模 | 2 stories2階建 |
| Structure:構造 | Lightweight steel frame with plated copper roof軽量鉄骨造メッキ銅板葺 |
| Built in:建築年 | 1979 |

A heart-pounding one-story house has appeared in Hayama! Sunny. The interior is also quite clean ◎ It is large enough for one or two children! There is plenty of space in the parking lot. The bath is like your own public bath, with the best use of tiles and colors.葉山に心ときめく平屋が出ましたー!日当たり良し。室内もなかなか綺麗に仕上がっている◎1人でも2人でもお子様もOKな広さも十分!駐車場もばっちりスペースあり。お風呂はこだわりのタイル・色使いが最高な、自分だけの銭湯って感じです。
| Security deposit:敷金 | 2 months2ヶ月 |
|---|---|
| Key money:礼金 | 1 month1ヶ月 |
| Land:土地面積 | 51 m² |
| Building:建物面積 | 51 m² |
| Scale:建物規模 | 1 story1階建 |
| Structure:構造 | Wooden木造 |
| Built in:建築年 | 1969 |

It is a one-story house in a green, quiet and atmospheric environment at the back of Omachi 4-chome, with a moist and adult atmosphere. It is a one-story detached house with a compact size of 52.88 square meters, and the 3LDK floor plan seems to be easy to use. The kitchen and bath have also been renovated before, and there is no old plumbing that is common in old detached houses! The ceiling of the kitchen has a skylight, which is bright enough during the day without turning on the light. A new wooden deck has been built on the west side of the living room, so it's nice to cool off in the evening with a beer in hand in the summer. The house is at the end of the stairs, but there is a parking lot for one car in front of the stairs, and it is covered! It's a little 23 minutes walk from the station, but isn't it a good place to enjoy the calm nature typical of Kamakura? Fixed-term rental for 3 years Non-smoking indoors Pets allowed (small dogs only)大町4丁目の奥の奥、緑深く静かで風情のある環境にある平屋、しっとりと大人の雰囲気漂う物件です。平屋の戸建で52.88㎡というキュッとしたサイズ、3LDKの間取りは使いやすそう。キッチンやお風呂も以前リフォームされていて、古い戸建にありがちな水回りの古さはありません!キッチンの天井には天窓があり、昼間は灯りをつけなくても十分明るいです。リビングの西側にはウッドデッキを新設しましたので、夏にはビール片手に夕涼みもいいですね〜。お家は階段を登った先にあるのですが、駐車場もその階段手前にしっかり1台分ありますよ、しかも屋根付き!駅から歩いて23分とちょっと離れていますが、鎌倉らしい落ち着いた自然を楽しむにはよいのでは?定期賃貸借3年間室内禁煙ペット可(小型犬のみ)
| Security deposit:敷金 | 1 month (plus 1 month for small dog breeding)1ヶ月(小型犬飼育の場合はプラス1カ月) |
|---|---|
| Key money:礼金 | 1 month1カ月 |
| Building:建物面積 | 53 m² |
| Scale:建物規模 | 1st floor1階 |
| Structure:構造 | One-story wooden building木造平屋建 |
| Built in:建築年 | 1967 |

The Japanese-style room has a view of the garden through the veranda, and is connected to the dining room on the first floor, so you can spend time in a spacious space. The bathroom and dressing room have also been redesigned to make them easier to use. Pets and musical instruments are allowed, so it is recommended for families and those with small children.和室からは広縁を通じて庭を眺めることができる他、1階のダイニングと続きになっており、広々とした空間で過ごしていただけます。浴室や脱衣室も使いやすく間取りを変更しております。ペット・楽器相談可でファミリーや小さなお子様のいらっしゃる方にもおすすめです。
| Security deposit:敷金 | Deposit 1 month敷金1ヶ月 |
|---|---|
| Key money:礼金 | No key money礼金なし |
| Building:建物面積 | 75 m² |
| Scale:建物規模 | 2 stories2階建 |
| Structure:構造 | Wooden galvanized steel roof木造亜鉛メッキ鋼板葺 |
| Built in:建築年 | 1968 |

Get off at Kita-Kamakura Station, and head from Engaku-ji Temple to Meigetsu-in Temple. This is a quiet and charming road that truly captures the essence of Kamakura. There are many tourists coming and going, but it's calm. It's lively, but quiet. The property we're introducing this time is located on such a road. It's a two-story wooden building with a tiled roof, and the building area is 115.09 m2 (34.81 tsubo). Because it is located in a "Type 1 low-rise residential area," the property cannot be used 100% as a store. It is a "store and residence" property. Negotiable for restaurants. (Chinese food, yakiniku, etc. are not allowed.) The kitchen equipment is treated as residual property with no performance guarantee, but since the equipment from the previous store remains, you can start up immediately with low initial costs.北鎌倉駅を降り、円覚寺から明月院へと向かう道。静けさと趣きがあり、鎌倉らしさを心から感じられる道です。観光客は多く行き交っているけど、落ち着いている。賑わっているけど、静か。そんな道にあるのが、今回ご紹介する物件です。木造瓦葺の2階建て、建物面積115.09㎡(34.81坪)。「第一種低層住居専用地域」に存している為、物件を100%店舗として利用することはできません。「店舗兼住居」の物件となります。飲食店相談可。(中華・焼肉などはNG)厨房設備は性能保証のない残置物扱いとなりますが、以前の店舗の物が残っているので、イニシャルコストを抑えてすぐに開業できます。
| Security deposit:敷金 | 66 |
|---|---|
| Key money:礼金 | 22 |
| Building:建物面積 | 115 m² |
| Scale:建物規模 | 2 stories2階建 |
| Structure:構造 | Wooden tile roof木造瓦葺 |
| Built in:建築年 | 1979 |

DIY available Pet consultation: Small dogs allowed, Large dogs allowed, Cats allowed, B/T separate, washbasin, gas stove allowed, indoor washing machine storage, city gasDIY可 ペット相談:⼩型⽝可 ⼤型⽝可 猫可 B・T別 洗⾯台 ガスコンロ可 室内洗濯機置場 都市ガス
| Security deposit:敷金 | 2 months2ヶ月 |
|---|---|
| Key money:礼金 | 1 month1ヶ月 |
| Building:建物面積 | 41 m² |
| Scale:建物規模 | 1st floor1階 |
| Structure:構造 | One-story wooden building木造1階建 |
| Built in:建築年 | 1966 |

This is a modern 4LDK property that was renovated in Reiwa 7. There are supermarkets, convenience stores, and "Imaizumi Hotaru Park" within walking distance, making it a popular area for child-rearing households [management number 0191].令和7年にリフォームしたモダンな造りの4LDKの物件です。徒歩圏内にスーパー、コンビニや「いまいずみほたる公園」があり、子育て世帯に人気のエリアとなっております【管理番号0191】。
| Land:土地面積 | 174 m² |
|---|---|
| Building:建物面積 | 109 m² |
| Structure:構造 | Wooden木造 |
| Built in:建築年 | 2006 |

Kanagawa Prefecture, located just south of Tokyo, is a vibrant prefecture that seamlessly blends urban convenience with natural beauty, making it an exceptional choice for those considering relocation. One of its standout features is its proximity to Tokyo, offering a suburban lifestyle with easy access to the bustling capital—an appealing factor for professionals seeking a balance between work and leisure. Kanagawa is home to popular cities such as Yokohama, with its picturesque waterfront and lively international atmosphere, and Kamakura, famed for its cultural heritage and coastal charm. For nature lovers, the stunning landscapes of the Hakone region, known for its hot springs and views of Mt. Fuji, provide tranquil retreats just a stone’s throw away. Affordability is a crucial aspect for prospective buyers, and Kanagawa offers competitive property prices compared to the heart of Tokyo, particularly in areas like Kawasaki and Atsugi. Here, you can find spacious homes and apartments that fit various budgets, making it suitable for first-time buyers or families. Additionally, the local government has been actively promoting residential developments that cater to newcomers, ensuring a diverse community with ample amenities. Schools, parks, and transport systems are well-developed, adding to the region's appeal. Overall, Kanagawa Ken offers a dynamic lifestyle with a variety of housing options, making it a compelling choice for anyone looking to invest in property while enjoying both urban and natural facets of Japan.
AllAkiyas.com puts at your disposition thousands of Japanese real estate listings of properties available for sale or rent. Our extensive listings include detached houses, townhouses, apartments, commercial spaces, and vacant lots. We place a special focus on traditional vacant houses, known as akiya (or kominka in rural areas), and traditional townhouses, or machiya. You can easily search for properties across all of Japan's prefectures using your specific criteria.