
Verify availabilityAdd to lists:✕

How about looking at Sagami Bay from the balcony on the second floor and living a relaxing slow life in Yugawara? You can watch the sea while cooking! 500,000 yen worth of furniture as a gift!2階バルコニーより相模湾を見ながら、ゆったりとスローライフを湯河原でいかがですか? 料理をしながらお海を眺められます!家具50万円分もプレゼント!
| Land:土地面積 | 232 m² |
|---|---|
| Building:建物面積 | 109 m² |
| Scale:建物規模 | 2 floors above ground地上2階 |
| Structure:構造 | Wooden木造 |
| Built in:建築年 | 2025 |

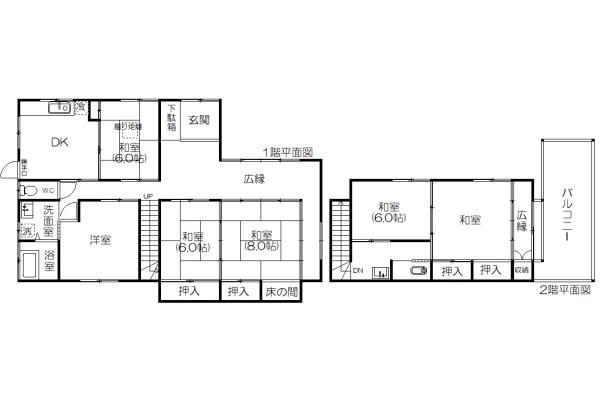
4LDK+S detached house equipped with "OM solar system". It is recommended for families with a wide range of rooms and storage. The bathroom has a hot spring. From the balcony or indoors, you can enjoy a luxurious location with the sea, mountains, and townscape.「OMソーラーシステム」搭載の4LDK+S戸建。部屋数や収納豊富でファミリーそうにもオススメです。浴室は温泉付き。バルコニーや室内から海と山、町並みの贅沢なロケーションがお楽しみいただけます。
| Land:土地面積 | 215 m² |
|---|---|
| Building:建物面積 | 114 m² |
| Scale:建物規模 | 2 floors above ground地上2階 |
| Structure:構造 | Wooden木造 |
| Built in:建築年 | 1995 |

Kanagawa Prefecture, located just south of Tokyo, is a vibrant prefecture that seamlessly blends urban convenience with natural beauty, making it an exceptional choice for those considering relocation. One of its standout features is its proximity to Tokyo, offering a suburban lifestyle with easy access to the bustling capital—an appealing factor for professionals seeking a balance between work and leisure. Kanagawa is home to popular cities such as Yokohama, with its picturesque waterfront and lively international atmosphere, and Kamakura, famed for its cultural heritage and coastal charm. For nature lovers, the stunning landscapes of the Hakone region, known for its hot springs and views of Mt. Fuji, provide tranquil retreats just a stone’s throw away. Affordability is a crucial aspect for prospective buyers, and Kanagawa offers competitive property prices compared to the heart of Tokyo, particularly in areas like Kawasaki and Atsugi. Here, you can find spacious homes and apartments that fit various budgets, making it suitable for first-time buyers or families. Additionally, the local government has been actively promoting residential developments that cater to newcomers, ensuring a diverse community with ample amenities. Schools, parks, and transport systems are well-developed, adding to the region's appeal. Overall, Kanagawa Ken offers a dynamic lifestyle with a variety of housing options, making it a compelling choice for anyone looking to invest in property while enjoying both urban and natural facets of Japan.
AllAkiyas.com puts at your disposition thousands of Japanese real estate listings of properties available for sale or rent. Our extensive listings include detached houses, townhouses, apartments, commercial spaces, and vacant lots. We place a special focus on traditional vacant houses, known as akiya (or kominka in rural areas), and traditional townhouses, or machiya. You can easily search for properties across all of Japan's prefectures using your specific criteria.