All Akiyas
S'inscrire
S'inscrire


detached 鎌数
Image précédente
Image suivante
Voir en plein écran
Ajouter ou supprimer de ma liste
detached 鎌数
detached 鎌数
USD $156,858
(¥24,800,000)
2480 万円
Superficie du terrain
Terrain土地面積
230 m²
Superficie du bâtiment
Bâtiment建物面積
84 m²
Bâtit
Bâtit建築年
2017
  • Infos
  • Carte
Description

Commentaire sur la propriété : Construit le 29 août ! C’est une maison d’un étage avec 2LDK + espace de stockage ! Elle est proche de stations à marée plate, d’écoles primaires à tidal flat, de supérettes, de supermarchés, etc., et offre un environnement de vie pratique. La route publique du côté est fait face à une large route d’environ 14,9 mètres de large ! Il s’agit d’une propriété d’angle faisant face aux routes publiques sud et est. Au total, environ 4 places de parking sont disponibles, y compris la zone du carport ! Il convient aussi comme magasin et maison ! Si vous avez un animal, vous pouvez utiliser l’espace du magasin comme espace pour animaux. *Veuillez réserver à l’avance si vous souhaitez visiter pendant votre résidence. Même si vous connaissez l’emplacement, veuillez vous abstenir d’entrer ou de vous appeler sans autorisation.物件ひとことメモ:平成29年8月築!2LDK+店舗スペース付きの平屋住宅です!干潟駅や干潟小学校・コンビニ・スーパー等へも近く生活便利な住環境です。東側公道は約14.9m幅の広い道路に面しています!南側公道と東側公道に面した角地物件です。駐車スペースもカーポート部含め合計4台程度利用可能!店舗兼居宅としても好適です!ペットが居る方でしたら店舗スペースをペットスペースとしても活用出来そうです。※現在居住中につき見学希望の際は事前にご予約ください。場所が分かっても無断出入りや声掛けはご遠慮ください。

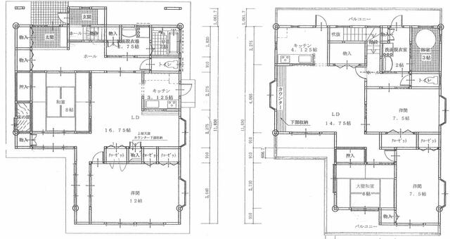
Échelle / PlanÉchelle / Plan構造・間取り

  • Maison à un étage
  • Plan d'étage : 2LDK + espace de stockage
  • Parking : Oui (environ 4 voitures possibles) *Ça dépend du modèle de
  • 平屋建て
  • 間取り:2LDK+店舗スペース
  • 駐車場:有り(4台程度可能)※車種による
detached 井戸野
Image précédente
Image suivante
Voir en plein écran
Ajouter ou supprimer de ma liste
detached 井戸野
detached 井戸野
USD $24,667
(¥3,900,000)
390 万円
4SLDK
  • 4 chambres à coucher
  • 1 pièce de service (rangement/salon)
  • Salon, salle à manger et cuisine intégrés
Superficie du terrain
Terrain土地面積
358 m²
Superficie du bâtiment
Bâtiment建物面積
143 m²
Bâtit
Bâtit建築年
1969
  • Infos
  • Carte
Description

Environ 400 m jusqu’à la côte. Il est équipé d’un espace de stockage 4SLDK+, adapté à une villa ou à un magasin et une résidence. Le site total est de 357,86㎡ (108,25 pyeong, divisé en 304,11㎡ et 53,75㎡). La superficie construite est de 143,38 mètres carrés (actuellement environ 144,93 mètres carrés). L’espace du magasin est d’environ 20 tatamis. LDK totalise environ 14 tapis. *Le bâtiment a eu une fuite à cause d’un typhon la première année de Reiwa, et subit actuellement de simples réparations. Une rénovation de la toiture, etc., est nécessaire.海岸まで約400m。別荘利用や店舗兼居宅等での利用に好適な4SLDK+店舗スペース付き。敷地合計357.86㎡(108.25坪、304.11㎡と53.75㎡に分かれる)。建物面積143.38㎡(現況約144.93㎡)。広々約20帖の店舗スペース。LDK合計約14帖。※建物は令和元年台風により雨漏りあり、現在簡易補修。屋根周り等のリフォーム必要。

Échelle / PlanÉchelle / Plan構造・間取り

  • Plan d'étage : Magasins 4SLDK+
  • Parking : Oui (2~3 unités possibles)
  • 間取り:4SLDK+店舗
  • 駐車場:有り(2~3台可能)
Adresse
Asahi City Idono 4475-1旭市井戸野4475-1
detached 三川
Image précédente
Image suivante
Voir en plein écran
Ajouter ou supprimer de ma liste
detached 三川
detached 三川
detached 三川
5DK
  • 5 chambres à coucher
  • Salle à manger et cuisine
Superficie du terrain
Terrain土地面積
440 m²
Superficie du bâtiment
Bâtiment建物面積
108 m²
Bâtit
Bâtit建築年
1986
  • Infos
  • Carte
Description

Maison d’un étage de 5 ans à Reiwa, 5 ans, a été rénovée à l’intérieur comme à l’extérieur. La cuisine et la salle de bain ont été rénovées, la pièce de style occidental et le sol DK ont été remplacés, et les tatamis, fusuma, moustiquaires shoji, etc. ont été remplacés. La plage d’Iioka se trouve à environ 1,4 km. Le site fait environ 133 tsubo, avec 3~4 places de parking, et une bonne lumière solaire orientée vers le sud.令和5年内外装をリフォーム済みの5DK中古平屋住宅。キッチンや洗面化粧台新調、洋室やDK床貼替、畳・襖・障子等貼替済み。飯岡海水浴場約1.4km。敷地約133坪、駐車3~4台、南向きで日当り良好。

Échelle / PlanÉchelle / Plan構造・間取り

  • Maison à un étage
  • Plan d'étage : 5DK
  • Parking : Oui (3~4 unités sont possibles)
  • 平屋建て
  • 間取り:5DK
  • 駐車場:有り(3~4台可能)
Adresse
Asahi Mikawa旭市三川
(Localisation approximative)
detached 千葉県旭市清和乙 - 周辺情報を調べる
Image précédente
Image suivante
Voir en plein écran
Ajouter ou supprimer de ma liste
detached 千葉県旭市清和乙 - 周辺情報を調べる
detached 千葉県旭市清和乙 - 周辺情報を調べる
detached 千葉県旭市清和乙 - 周辺情報を調べる
detached 千葉県旭市清和乙 - 周辺情報を調べる
detached 千葉県旭市清和乙 - 周辺情報を調べる
detached 千葉県旭市清和乙 - 周辺情報を調べる
detached 千葉県旭市清和乙 - 周辺情報を調べる
detached 千葉県旭市清和乙 - 周辺情報を調べる
detached 千葉県旭市清和乙 - 周辺情報を調べる
detached 千葉県旭市清和乙 - 周辺情報を調べる
detached 千葉県旭市清和乙 - 周辺情報を調べる
USD $107,524
(¥17,000,000)
1700 万円
Superficie du terrain
Terrain土地面積
1682 m²
Superficie du bâtiment
Bâtiment建物面積
168 m²
Bâtit
Bâtit建築年
1989
  • Infos
  • Carte
Description

建物・敷地とも広く、大家族向けです。建物・敷地とも広く、大家族向けです。

Échelle / PlanÉchelle / Plan構造・間取り

  • 2階建 / -
  • Plan d'étage : 7DK
    7DK
  • Parking : 空有
  • 2階建 / -
  • 間取り:7DK
    7DK
  • 駐車場:空有
Adresse
千葉県旭市清和乙 - 周辺情報を調べる千葉県旭市清和乙 - 周辺情報を調べる
(Localisation approximative)
detached ニ字西遊正
Image précédente
Image suivante
Voir en plein écran
Ajouter ou supprimer de ma liste
detached ニ字西遊正
detached ニ字西遊正
USD $33,206
(¥5,250,000)
525 万円
4LDK
  • 4 chambres à coucher
  • Salon, salle à manger et cuisine intégrés
Superficie du terrain
Terrain土地面積
162 m²
Superficie du bâtiment
Bâtiment建物面積
79 m²
Bâtit
Bâtit建築年
2006
  • Infos
  • Carte
Description

Vente aux enchères. Maison individuelle (habitation), surface totale 79,48 m2, surface de terrain 162 m2 (total), plan 4 LDK, construite en juillet 2006 (19 ans). Prix de vente : 5 250 000 yens. Période d’enchères du 19 au 26 novembre 2025. Publié le 29 octobre 2025.競売物件。戸建て(居宅)、延床面積79.48m2、土地面積162m2(合計)、間取り4LDK、築2006年7月(築19年)。売却価額5,250,000円。入札期間 2025年11月19日〜11月26日。公開日 2025年10月29日。

Échelle / PlanÉchelle / Plan構造・間取り

  • 2 histoires
  • 2階建
Adresse
Chiba Asahi City Niji Saiyusho 6103-44千葉県旭市ニ字西遊正6103番地44
detached 飯岡
Image précédente
Image suivante
Voir en plein écran
Ajouter ou supprimer de ma liste
detached 飯岡
detached 飯岡
detached 飯岡
EndroitMaisons à Asahi Shi : Chiba Ken
Ouvrir dans un nouvel onglet
4DK
  • 4 chambres à coucher
  • Salle à manger et cuisine
Superficie du terrain
Terrain土地面積
184 m²
Superficie du bâtiment
Bâtiment建物面積
97 m²
Bâtit
Bâtit建築年
1975
  • Infos
  • Carte
Description

Shimonagai Coast 400m ! Une maison d’occasion 4DK qui convient également à une villa près de la mer. Reiwa 4 septembre Rénovation intérieure terminée. Il y a un entrepôt sur place.下永井海岸400m!海近く別荘利用にも好適な4DK中古住宅。令和4年9月内装リフォーム済。敷地内に倉庫有。

Échelle / PlanÉchelle / Plan構造・間取り

  • 2 histoires
  • Plan d'étage : 4DK
  • Parking : Oui
  • 2階建て
  • 間取り:4DK
  • 駐車場:有
detached 二(あさひし二)
Voir en plein écran
Ajouter ou supprimer de ma liste
detached 二(あさひし二)
EndroitMaisons à Asahi Shi : Chiba Ken
Ouvrir dans un nouvel onglet
5LDK
  • 5 chambres à coucher
  • Salon, salle à manger et cuisine intégrés
Superficie du terrain
Terrain土地面積
269 m²
Superficie du bâtiment
Bâtiment建物面積
130 m²
Bâtit
Bâtit建築年
2013
  • Infos
  • Carte
Description

Note sur la propriété : rénovation intérieure du 7 mars à Reiwa ! Le mur extérieur a été peint vers le 5 novembre de l’année de Reiwa ! L’intérieur a été remplacé et nettoyé ! Le collège Asahi 2nd Junior High, l’école élémentaire Chuo, une supérette, un supermarché, etc. sont également à proximité, et c’est une maison entièrement électrique 5LDK construite au 25 Heisei et réalisée par Tama Home ! Il y a aussi une place de parking spacieuse pour 2 voitures ! Le bâtiment est orienté au sud, donc la lumière du soleil et la ventilation sont très bonnes. Le spacieux LDK compte environ 21 tatami au total ! Toutes les pièces sont composées de plus de 6 tatamis, et c’est une maison lumineuse avec un éclairage sur deux côtés !物件ひとことメモ:令和7年3月内装リフォーム済み!令和5年11月頃外壁塗装済み!室内はクロス貼替やクリーニングも施工済み!旭第二中学校や中央小・コンビニ・スーパー等も近く生活便利な住環境の平成25年築・タマホーム施工の5LDKオール電化住宅です!駐車スペースも広々2台分可能!建物は南向きですので日当り・風通しも大変良好です。広々LDKは合計約21帖!全居室6帖以上・2面採光で明るいお宅です!

Échelle / PlanÉchelle / Plan構造・間取り

  • 2 histoires
  • Plan d'étage : 5LDK
  • Parking : Oui (2 voitures possibles)
  • 2階建て
  • 間取り:5LDK
  • 駐車場:有り(2台可能)
detached 鏑木
Voir en plein écran
Ajouter ou supprimer de ma liste
detached 鏑木
EndroitMaisons à Asahi Shi : Chiba Ken
Ouvrir dans un nouvel onglet
Superficie du terrain
Terrain土地面積
1440 m²
Superficie du bâtiment
Bâtiment建物面積
444 m²
Bâtit
Bâtit建築年
1985
  • Infos
  • Carte
Description

Le site est spacieux, mesuré à 435,73 tsubo (mesurés à 1440,45 mètres carrés). 7LDK+ maison d’occasion avec atelier et entrepôt. Bon soleil. Il convient aussi bien aux affaires qu’à la vie rurale. Reiwa 6 juin Mesure réelle, Reiwa 6 juillet immatriculation du bâtiment.敷地広々実測435.73坪(実測1440.45㎡)。7LDK+作業場・倉庫付きの中古住宅。日当り良好。事業用としても田舎暮らし等の利用にも好適。令和6年6月実測済み・令和6年7月建物登記済み。

Échelle / PlanÉchelle / Plan構造・間取り

  • 2 histoires
  • Plan d'étage : 7LDK+ Atelier & Entrepôt
  • Parking : Oui (plusieurs unités sont possibles)
  • 2階建て
  • 間取り:7LDK+作業場・倉庫
  • 駐車場:有り(複数台可能)
detached 川口
Image précédente
Image suivante
Voir en plein écran
Ajouter ou supprimer de ma liste
detached 川口
detached 川口
detached 川口
USD $58,822
(¥9,300,000)
930 万円
Superficie du terrain
Terrain土地面積
1976 m²
Superficie du bâtiment
Bâtiment建物面積
61 m²
Bâtit
Bâtit建築年
2007
  • Infos
  • Carte
Description

Il se trouve à 1,4 km de la station à marée plate, et il est pratique pour faire du shopping avec des essais et des supérettes à proximité. La route principale est une maison d’un étage de 3DK construite sur Heisei 19, faisant face à une route publique d’environ 6,8 mètres. Le site est spacieux de 597,74 tsubo (1976 mètres carrés) et peut être utilisé à de multiples fins telles que des loisirs, des potagers et des enclos pour chiens. L’eau publique ne peut pas être raccordée (pas de conduite principale sur la route principale). Respecte les normes de qualité de l’eau dans 11 tests de qualité de puits. *Il semble que certaines rénovations soient nécessaires pour garder les chiens à l’intérieur.干潟駅へ1.4km、トライアルやコンビニ等も近くお買い物等に便利。前面道路は約6.8m公道に面した平成19年築の3DK平屋住宅。敷地は597.74坪(1976㎡)の広々敷地で趣味や菜園・ドッグラン等、多用途に利用可能。公営水道引込不可(前面道路に本管無し)。井戸水水質検査11項目で水質基準適合。※室内で犬飼育のため一定のリフォームが必要と思われます。

Échelle / PlanÉchelle / Plan構造・間取り

  • Immeuble d’un étage (1er étage)
  • Plan d'étage : Maison d’un étage 3DK
  • Parking : Oui (plusieurs unités sont possibles)
  • 平屋建て(1階)
  • 間取り:3DK平屋住宅
  • 駐車場:有り(複数台可能)
detached
Image précédente
Image suivante
Voir en plein écran
Ajouter ou supprimer de ma liste
detached
detached
Superficie du terrain
Terrain土地面積
2992 m²
Superficie du bâtiment
Bâtiment建物面積
219 m²
  • Infos
  • Carte
Description

Commentaires sur la propriété : Ressentez l’histoire Il s’agit d’une vieille maison privée construite depuis plus de 200 ans. En plus de la maison principale 6DK, il y a un atelier et un entrepôt qui était à l’origine une ferme de sériciculture. Le site fait environ 905 tsubo, et c’est un environnement de vie privé difficile à ressentir depuis les terres ou routes voisines.物件ひとことメモ:歴史を感じる築後約200年以上経過した古民家です。6DK母屋のほか元々養蚕場の作業場スペース、蔵があります。敷地は広大約905坪で、隣地や道路からは目線を感じにくくプライベート感のある住環境です。

Échelle / PlanÉchelle / Plan構造・間取り

  • Maison de style Heike
  • Plan d'étage : Maison principale : 6DK + sol en terre + terrasse En plus de la maison principale, il y a un atelier et un entrepôt.
  • 平家建て
  • 間取り:母屋:6DK+土間+テラス 母屋のほか作業場と蔵があります。

Toutes les akiya au même endroit

Trouvez la maison vacante parfaite au Japon!

  • Toutes les préfectures du Japon sur un seul site
  • Annonces détaillées avec coordonnées
  • Traduites en français pour faciliter vos recherches
  • Recherchez des propriétés selon vos propres critères
  • Recevez nos alertes personnalisées par email

Se connecter  S'inscrire
Chiba Ken

S'établir à Chiba

Chiba Ken, située juste à l'est de Tokyo, est une préfecture fascinante qui offre un cadre de vie attrayant pour les familles souhaitant s'installer au Japon. Elle combine un accès facile à la capitale tout en offrant un environnement plus calme et une atmosphère résidentielle. Un des atouts majeurs de Chiba est son vaste réseau de transports, y compris des lignes de train directes vers Tokyo, ce qui la rend idéale pour les expatriés travaillant dans la métropole. En outre, la préfecture est réputée pour sa beauté naturelle, avec de nombreuses plages, parcs et montagnes à explorer, ainsi que des attractions comme le parc à thème Tokyo Disneyland et le célèbre parc Naritasan. Pour ceux qui cherchent à acheter une maison, Chiba offre des options de logements généralement plus abordables que dans Tokyo même. Les quartiers comme Chiba City ou Funabashi permettent de trouver des résidences spacieuses, adaptées aux familles, à des prix qui restent compétitifs. De plus, la ville combine une ambiance familiale avec une bonne infrastructure, incluant des écoles internationales, des centres de santé et des espaces communautaires, ce qui en fait un choix idéal pour une vie de famille sereine et épanouissante au Japon.


Trouvez un bien immobilier avec AllAkiyas.com

AllAkiyas.com met à votre disposition des milliers d'annonces de biens immobiliers japonais à vendre ou à louer. Notre vaste sélection comprend des maisons individuelles, des maisons de ville, des appartements, des locaux commerciaux et des terrains vagues. Nous accordons une attention particulière aux maisons vacantes traditionnelles, appelées akiya (ou kominka en zone rurale), et aux maisons de ville traditionnelles, ou machiya. Vous pouvez facilement rechercher des biens dans toutes les préfectures du Japon selon vos critères spécifiques.


Image précédente
Image suivante
Fermer les images