
Vérifiez disponibilitéAjouter aux listes:✕

Résidence Shuwa Tsukiji, 1R 5e étage, rendement de 6,3 %. Lieu : 2-1-2 Tsukiji, Chuo-ku, Tokyo. Gare la plus proche : gare de Shintomicho à 2 minutes à pied.秀和築地レジデンス 1R 5階、利回り6.3%。所在地:東京都中央区築地2丁目1-2。最寄り駅:新富町駅 徒歩2分。
| Bâtiment :建物面積 | 33 m² |
|---|---|
| Échelle :建物規模 | 12e étage (5e étage)地上12階(5階) |
| Structure :構造 | SRCSRC |
| Bâtit en :建築年 | 1971 |

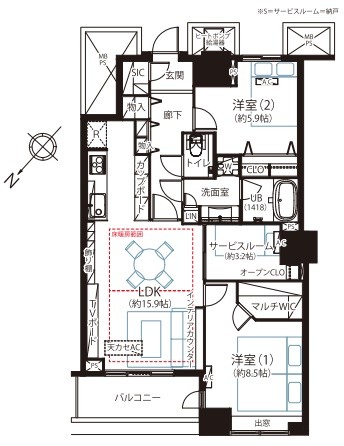
Consultez les dernières informations avant d’acheter ou de vendre le BÂTIMENT HARUMI FLAG SUN VILLAGE C. Vous pouvez consulter les biens à vendre, l’historique des ventes d’occasion, le prix estimé par l’IA, les avis, etc. La base de données des condominiums est un contenu d’information commerciale exploité par le site de relocalisation de Tokyo Tatemono. Veuillez laisser l’achat et la vente de condominiums à Tokyo Tatemono Real Estate Sales.HARUMI FLAG SUN VILLAGE C棟の購入・売却前に最新情報をチェック。売出し物件、中古販売履歴、AIによる推定相場価格、口コミ等をお調べ頂くことができます。マンションデータベースは東京建物の住みかえサイトが運営している売買情報コンテンツです。マンションのご購入・ご売却は東京建物不動産販売にお任せください。
| Bâtiment :建物面積 | 79 m² |
|---|---|
| Échelle :建物規模 | 16 étages au-dessus du sol, 1 sous-sol地上16階建 地下1階 |
| Structure :構造 | RC partie S (partie en béton armé, cadre en acier)RC一部S(鉄筋コンクリート一部鉄骨) |
| Bâtit en :建築年 | 2023 |
Toutes les akiya au même endroit
Trouvez la maison vacante parfaite au Japon!

S'installer à Tokyo To, la métropole animée du Japon, offre un style de vie dynamique et riche en culture. La ville est connue pour ses quartiers variés, allant des zones traditionnelles comme Asakusa aux centres modernes comme Shibuya et Shinjuku. Les familles peuvent bénéficier d'une excellente infrastructure éducative, avec de nombreuses écoles internationales et des installations récréatives.
Cependant, trouver un logement abordable à Tokyo peut s'avérer un défi. Les loyers sont parmi les plus élevés du pays, notamment dans les zones centrales. Pour ceux qui cherchent des options plus accessibles, des quartiers périphériques ou des banlieues bien desservies par le train peuvent offrir un bon compromis.
Comparée à d'autres régions du Japon, Tokyo offre une qualité de vie élevée, avec un accès facile aux services et aux loisirs. Cependant, le coût de la vie est également supérieur, particulièrement pour le logement et la vie quotidienne. En dehors de Tokyo, des villes comme Kyoto ou Sapporo peuvent offrir une qualité de vie similaire avec un coût de la vie plus raisonnable. Ainsi, le choix dépendra de vos priorités et de votre style de vie souhaité.
AllAkiyas.com met à votre disposition des milliers d'annonces de biens immobiliers japonais à vendre ou à louer. Notre vaste sélection comprend des maisons individuelles, des maisons de ville, des appartements, des locaux commerciaux et des terrains vagues. Nous accordons une attention particulière aux maisons vacantes traditionnelles, appelées akiya (ou kominka en zone rurale), et aux maisons de ville traditionnelles, ou machiya. Vous pouvez facilement rechercher des biens dans toutes les préfectures du Japon selon vos critères spécifiques.