
Plus disponible
☆ Il y avait un tel bâtiment, c’est une construction mini gassho de Naguri
Il y a une terrasse en bois massif aux premier et deuxième étages
☆ Le plafond est une combinaison de poutres épaisses solides
☆ Il y a le lac Naguri et Torii Kannon dans le quartier, où vous pouvez faire du canoë et jouer dans la rivière pour la pêche comme Yamame
☆ En face de la propriété se trouve le point d’entrée de la rivière Naguri
★bâtiment★
4 octobre Nouvelle construction
Superficie du bâtiment : 76.17㎡ (23.04 tsubo)☆こんな建物がありました・名栗のミニ合掌造りです
1階・2階ともに無垢の木のデッキがあります
☆天井は無垢の太い梁の組み合わせ
☆近隣には名栗湖や鳥居観音があり、カヌー体験・ヤマメ等の魚釣りの川遊びができます
☆物件の前が名栗川の入渓ポイントです
★建物★
平成4年10月 新築
建物面積 76.17㎡(23.04坪)
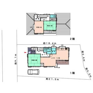
| Terrain :土地面積 | 182 m² |
|---|---|
| Bâtiment :建物面積 | 76 m² |
| Échelle :建物規模 | Toiture en tuiles bois sur 2 étages木造瓦葺2階建 |
| Structure :構造 | En bois木造 |
| Bâtit en :建築年 | 1992 |

Il s’agit d’une introduction à une ancienne maison folklorique à Ashikariba, dans la ville de Hanno, dans la préfecture de Saitama. Sur 426 tsubo de terrain, il y a une ancienne maison folklorique et un entrepôt construits à l’époque Meiji. Une vieille maison folklorique devenue rare dans la préfecture de Saitama, nous avons hâte de demander des matériaux et des visites.埼玉県飯能市芦苅場の古民家のご紹介です。土地426坪に明治時代に建築された古民家と蔵が建っております。埼玉県内では希少となりました古民家、ぜひ資料請求・ご見学等お待ちしております。
| Terrain :土地面積 | 1411 m² |
|---|---|
| Bâtiment :建物面積 | 156 m² |
| Échelle :建物規模 | 2 histoires2階建て |
| Structure :構造 | Toit en tuiles en bois木造 瓦葺 |

Il s’agit d’un immeuble résidentiel situé dans le quartier de Karatake sur le chemin de la ville de Hanno au district de Naguri. Il est situé dans un cadre naturel entouré d’arbres. C’est une résidence de charme avec des bâtiments de bon goût. Nous nous réjouissons de vos demandes de matériaux et de visites.飯能市街地から名栗地区に向かう途中の唐竹地区にございます、住宅です。木々に囲まれた自然の中にあります。風情ある建物等、魅力あふれるお住まいです。ぜひ資料請求・ご見学等お待ちしております。
| Terrain :土地面積 | 873 m² |
|---|---|
| Bâtiment :建物面積 | 165 m² |
| Échelle :建物規模 | 2 histoires2階建て |
| Structure :構造 | Toit en tuiles en bois木造 瓦葺 |
| Bâtit en :建築年 | 1964 |

Maison vacante Bank [À vendre] 3,5 millions de yens, Hanno City, préfecture de Saitama, Nakafuji Shimogo, Superbe vue, Construit en 1989, Nombreux arbres fruitiers, Jardin et balcon, 4DK, 2 étages, 2 toilettes à chasse d'eau, Horigotatsu (table de style japonais avec un plancher encastré)空き家バンク【売買】350万円 埼玉県飯能市大字中藤下郷 眺望良好・平成元年築・果樹多数有 庭・ベランダ付き4DK2階建 水洗トイレ2箇所 掘りごたつ有
| Terrain :土地面積 | 156 m² |
|---|---|
| Bâtiment :建物面積 | 82 m² |
| Structure :構造 | Bâtiment en bois à deux étages木造2階建 |

Il est équipé d'une baignoire automatique qui peut être remplie d'eau chaude sur simple pression d'un interrupteur, et l'ensemble du bâtiment a été rénové à l'intérieur et à l'extérieur, vous ne remarquerez donc pas son âge.スイッチひとつでお湯が張れるオートバス付、更に建物まるっと内外装リフォーム済で築年数を感じさせません。
| Terrain :土地面積 | 188 m² |
|---|---|
| Bâtiment :建物面積 | 86 m² |
| Échelle :建物規模 | 2 étages hors sol地上2階 |
| Structure :構造 | En bois木造 |
| Bâtit en :建築年 | 2000 |

Cette propriété dispose d'un jardin avec une jolie vue. 8,2 km de l'hôtel de ville de Hanno, 1,9 km du centre administratif du district, 3,9 km de l'hôpital, 4,0 km du commissariat de police, 1,9 km de l'école maternelle, 7,2 km de la caserne des pompiers眺望の良い庭付きの物件です。
飯能市役所まで8.2 km、地区行政センターまで1.9 km、病院まで 3.9 km、駐在所まで4.0 km、保育所まで1.9 km、消防署まで7.2 km
| Terrain :土地面積 | 281 m² |
|---|---|
| Bâtiment :建物面積 | 82 m² |
| Échelle :建物規模 | 2 étages / -2階建 / - |
| Structure :構造 | En bois木造 |
| Bâtit en :建築年 | 1989 |
Toutes les akiya au même endroit
Trouvez la maison vacante parfaite au Japon!

Saitama Ken, situé au nord de Tokyo, offre un style de vie attrayant, particulièrement pour les familles. Sa proximité avec la capitale permet de bénéficier des commodités urbaines tout en jouissant d'un environnement plus calme et résidentiel. Les infrastructures, notamment les écoles, les parcs et les centres commerciaux, sont bien développées, facilitant ainsi le quotidien.
Trouver un logement abordable peut être plus facile à Saitama que dans Tokyo, où les prix sont élevés. Les loyers y sont généralement inférieurs, et vous pouvez trouver des appartements spacieux ou des maisons individuelles. Cela en fait une option prisée par ceux qui cherchent à combiner vie urbaine et tranquillité.
En termes de qualité de vie, Saitama se distingue par un cadre de vie agréable, une bonne sécurité et des activités culturelles. Le coût de la vie est également plus bas comparé à Tokyo, même si certains produits alimentaires peuvent être équivalents. Dans l'ensemble, Saitama Ken représente un excellent choix pour ceux qui souhaitent s'installer au Japon, offrant un équilibre entre accessibilité et vie de famille, tout en restant connecté à la dynamique de Tokyo.
AllAkiyas.com met à votre disposition des milliers d'annonces de biens immobiliers japonais à vendre ou à louer. Notre vaste sélection comprend des maisons individuelles, des maisons de ville, des appartements, des locaux commerciaux et des terrains vagues. Nous accordons une attention particulière aux maisons vacantes traditionnelles, appelées akiya (ou kominka en zone rurale), et aux maisons de ville traditionnelles, ou machiya. Vous pouvez facilement rechercher des biens dans toutes les préfectures du Japon selon vos critères spécifiques.