
Verify availabilityAdd to lists:✕

It is also recommended for families with children. Here is a used detached house property where you can live with a stretch. This time, we will introduce the building area of 167.2 square meters. If you are looking for a detached house around Iwata on the Sanyo Main Line, please let us know your desired conditions from T-Rex. We look forward to hearing from you at 0820-22-5020 or info@t-rexfs.co.jp.お子様のいるご家庭にもお勧め。伸び伸びと生活できる中古戸建て物件がコチラです。今回紹介するのは、建物面積が167.2平米。山陽本線岩田周辺の一戸建てをお探しの方は、ティーレックスにご希望の条件をお聞かせ下さい。0820-22-5020やinfo@t-rexfs.co.jpからご連絡をお待ちしております。
| Land:土地面積 | 537 m² |
|---|---|
| Building:建物面積 | 167 m² |
| Scale:建物規模 | 2 stories2階建 |
| Structure:構造 | Wooden木造 |
| Built in:建築年 | 1980 |

Kumage-gun Tabuse Town Shimodafuse Used house + workshop included. The land area is 1,032.62㎡ (312.36 tsubo), and the building area is 268.52㎡ (81.22 pyeong). Electrified housing. The site is multi-pixel (3395-1, 3395-6, 10937-5, 10955-1, 10937-4). *Collapse warning area on steep slopes (partial). Viewing is available. Status quo takes precedence.熊毛郡田布施町 下田布施 中古住宅+作業場付き。土地面積1,032.62㎡(312.36坪)、建物面積268.52㎡(81.22坪)。電化住宅。敷地は複数筆(3395番1、3395番6、10937番5、10955番1、10937番4)。※急傾斜地の崩壊警戒区域(一部)。内覧可能。現況優先。
| Land:土地面積 | 1033 m² |
|---|---|
| Building:建物面積 | 269 m² |
| Scale:建物規模 | 2 stories2階建て |
| Structure:構造 | Wooden木造 |
| Built in:建築年 | 1957 |

A used detached house a 17-minute walk from Tabuse Station. 6DK, building 135.85㎡, land 1149.06㎡, vacant house, 2 parking spaces available.田布施駅徒歩17分の中古一戸建。6DK、建物135.85㎡、土地1149.06㎡、空家、駐車2台可。
| Land:土地面積 | 1149 m² |
|---|---|
| Building:建物面積 | 136 m² |
| Scale:建物規模 | 1 story1階建 |
| Structure:構造 | Wooden木造 |
| Built in:建築年 | 1948 |

Comfortable life ♪ with renovated plumbing [Repayment example] 3 million yen loan (no bonus payment) If the repayment period is 35 years and the interest rate is 1.0%, it is 8,468 yen per month.水回りリフォーム済みで快適な暮らし♪ 【返済例】300万円お借入(ボーナス支払分なし)返済期間35年、金利1.0%の場合、月々8,468円です。
| Land:土地面積 | 619 m² |
|---|---|
| Building:建物面積 | 99 m² |
| Scale:建物規模 | 2 floors above ground地上2階 |
| Structure:構造 | Wooden木造 |
| Built in:建築年 | 1935 |

Taking advantage of the location, we have classes for calligraphy, flowers, sweets... and even a small shop specializing in takeout!立地を生かした、〇〇教室。習字、お花、お菓子・・・小さな店舗はテイクアウト専門にも!
| Security deposit:敷金 | 240,000 JPY24万円 |
|---|---|
| Key money:礼金 | 0 months0ヶ月 |
| Building:建物面積 | 49 m² |
| Scale:建物規模 | 2 floors above ground地上2階 |
| Structure:構造 | Other軽量鉄骨 |
| Built in:建築年 | 1984 |

Vacant house bank [sale] 500,000 yen Yamaguchi Prefecture Kumage-gun Tabuse-cho Oji-jukui Large site, Heisei 12 built 6DK Japanese-style 2-story building with garage Well, flush toilet Dirt floor, wide edge空き家バンク【売買】50万円 山口県熊毛郡田布施町大字宿井 広い敷地・平成12年築 車庫付き6DK和風2階建 井戸・水洗トイレ 土間・広縁有
| Land:土地面積 | 716 m² |
|---|---|
| Building:建物面積 | 137 m² |
| Structure:構造 | Two-story wooden structure木造2階建 |

Within the range ♪ where elementary school can be commuted to schoolTabuse Town Jonan Elementary School is a 6-minute walk There ♪ is a window in the bathroom, so you can change the air at any time, which is convenient. ♪ T-Rex staff will do their best to support ♪you in finding a detached house0820-22-5020 or info@t-rexfs.co.jp, please (^^) let us know your desired conditions.小学校が十分通学できる範囲にあります♪田布施町立城南小学校が徒歩6分です♪浴室に窓があっていつでも空気の入れ替えできて便利です♪ティーレックスのスタッフが、一戸建て探しを全力でサポートいたします♪0820-22-5020またはinfo@t-rexfs.co.jpから、ご希望の条件をお申し付けください(^^)
| Land:土地面積 | 250 m² |
|---|---|
| Building:建物面積 | 99 m² |
| Scale:建物規模 | 2 stories2階建 |
| Structure:構造 | Wooden木造 |
| Built in:建築年 | 2013 |

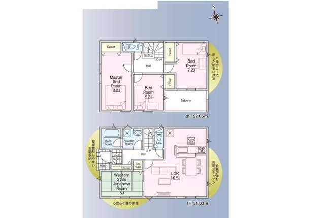
Cradle Garden Tabuse: A newly built detached house in the Tabuse-cho area of Kumage-gun. 4 minutes walk to Seven-Eleven Tabuse Hano store. Fully equipped with all-electric, IH kitchen, bathroom dryer, intercom with TV monitor, etc. The property has been completed and delivery is negotiable.クレイドルガーデン田布施:熊毛郡田布施町エリアの新築一戸建。セブンイレブン田布施波野店まで徒歩4分。オール電化・IHキッチン・浴室乾燥機・TVモニタ付インターホン等設備充実。物件は完成済みで引渡しは相談。
| Land:土地面積 | 156 m² |
|---|---|
| Building:建物面積 | 94 m² |
| Scale:建物規模 | 2 stories2階建 |
| Structure:構造 | Wooden木造 |
| Built in:建築年 | 2025 |

All rooms have wooden flooring, 2 parking spaces available, separate washrooms, one-story houses, and immediate delivery. Commuting area: Tabuse Town Higashi-Tabuse Elementary School 11 minutes walk. Remarks: 2 parking spaces are possible, purchase price 4.8 million yen, one-story house.全居室フローリング、駐車2台可、洗面所独立、平屋、即引渡し可。通学区域:田布施町立東田布施小学校 徒歩11分。備考:駐車が2台可能、購入価格480万円、平屋。
| Land:土地面積 | 170 m² |
|---|---|
| Building:建物面積 | 53 m² |
| Scale:建物規模 | 1 story1階建 |
| Structure:構造 | Other軽量鉄骨 |
| Built in:建築年 | 1998 |

Yamaguchi Prefecture, located on the western tip of Honshu, is a hidden gem for those considering relocating to Japan. This picturesque prefecture is known for its stunning natural landscapes, including the iconic Seto Inland Sea, lush mountains, and serene coastlines, providing a haven for outdoor enthusiasts. Unlike more populous areas like Tokyo or Osaka, Yamaguchi offers a more relaxed lifestyle with a close-knit community vibe, making it ideal for individuals or families seeking a slower, more fulfilling pace of life. The cost of living here is notably lower than in major metropolitan areas, which translates to more affordable property options. Buyers can find charming traditional homes, modern houses, and even quaint properties with rich historical backgrounds at prices that often fall within their budget. Furthermore, Yamaguchi boasts excellent transport links, including the Shinkansen (bullet train), allowing for easy access to larger cities for work or leisure, enhancing your ability to balance rural tranquility with urban convenience. Rich in cultural heritage, the region is also celebrated for its delicious local cuisine, particularly its seafood and sake. With a mix of natural beauty, historical significance, and economic viability, Yamaguchi Ken is an attractive option for those looking to invest in affordable property while enjoying a uniquely Japanese lifestyle that other prefectures may not offer.
AllAkiyas.com puts at your disposition thousands of Japanese real estate listings of properties available for sale or rent. Our extensive listings include detached houses, townhouses, apartments, commercial spaces, and vacant lots. We place a special focus on traditional vacant houses, known as akiya (or kominka in rural areas), and traditional townhouses, or machiya. You can easily search for properties across all of Japan's prefectures using your specific criteria.