





Add to lists:✕
(Under negotiation) Vacant House Bank [Sale] 4.7 million yen Omachi, Omachi City, Nagano Prefecture Quiet residential area 4SDK 2-story building with garden, balcony, and 2 parking lots(交渉中)空き家バンク【売買】470万円 長野県大町市大町 閑静住宅地 庭・バルコニー・駐車場2台付き4SDK2階建
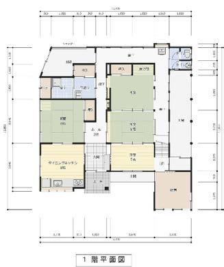
Building:建物面積 | 114 m² |
---|---|
Structure:構造 | Two-story wooden structure木造2階建 |
Nagano Prefecture, known for its stunning mountain ranges, lush greenery, and hot springs, offers an idyllic lifestyle for those relocating to Japan. Outdoor enthusiasts will thrive here, with abundant opportunities for skiing, hiking, and enjoying fresh air. The region is also rich in cultural experiences, featuring picturesque temples and traditional festivals. Finding affordable housing in Nagano Ken can be more feasible when compared to larger urban centers like Tokyo or Osaka. While the prices can vary significantly based on specific locations, generally, properties in smaller towns and rural areas of Nagano are quite reasonable. Popular areas like Matsumoto or Nagano City may have higher prices, but they are still more accessible than major metropolitan areas. Quality of life in Nagano Ken is often regarded as high, thanks to its low pollution levels, slower pace of life, and strong community ties. The region's rich agricultural land means access to fresh, locally grown food, contributing to a healthier lifestyle. In terms of cost of living, Nagano Ken is relatively lower compared to urbanized areas. Utilities and transportation costs are also generally more affordable, making it an attractive option for those looking for a balance between nature and convenience. In summary, Nagano Ken offers a peaceful lifestyle with affordable housing options, excellent quality of life, and a lower cost of living compared to Japan's major cities.
AllAkiyas.com puts at your disposition thousands of Japanese real estate listings of properties available for sale or rent. Our extensive listings include detached houses, townhouses, apartments, commercial spaces, and vacant lots. We place a special focus on traditional vacant houses, known as akiya (or kominka in rural areas), and traditional townhouses, or machiya. You can easily search for properties across all of Japan's prefectures using your specific criteria.