
Verify availabilityAdd to lists:✕

The site is located in the village of Tsuji in the southwestern part of Ishioka City, close to the Asahi Tunnel. It is built on the south side of a small hill with a mountain forest in the background, and the main house is located in the center of the site, the storehouse is located in the southeast corner, and the detached house is located on the north side. Although it is relatively new, about 40 years old, the typical floor plan of a farmhouse found at the foot of Mt. Tsukuba and the large hip roof of the Tsukuba Mountain exude the style of a majestic Japan house. We started with a plan to renovate and take over the family house where the owner and his wife and their three children live. The kitchen, tea room, and veranda on the north side, which were previously separated by thermal environment and lifestyle reasons, have been made into a large LDK one-room space so that children can easily move around and see the children from the kitchen. The pillars and the main door are the same, but the ceiling materials are preserved, and the guest room in the back has been minimally renovated, retaining the footprints of the past life and the goodness of traditional wooden construction. 敷地は、朝日トンネルに程近い石岡市南西部の辻集落に位置します。山林を背後にした小高い丘の南面に建ち,敷地の中央に主屋,南東の隅に蔵,北側に離れ住宅が配置されています。築40年程度と比較的新しいが、つくば山麓に見られる農家住宅の典型的な間取りと、せがい造りの大きな寄棟屋根が堂々とした日本民家としての風格を醸し出しています。生まれ育ったご実家を、施主ご夫妻と三人のお子様の五人家族が住む家へと改修し引き継ぐ計画でスタートしました。これまでは温熱環境や生活習慣の理由で仕切られていた、北側の台所、茶の間、縁側を、子供たちが動きやすく、またキッチンから子供たちの様子を見える様、広いLDKのワンルーム空間としました。主要構造の柱や差し鴨居はそのままに天井材は既存を生かし、奥の客間は最小限の改修として、かつての生活の足跡や伝統的木造の良さを残しています。一方で水廻りスペースはデザイン性と集約化をはかり、個室や収納などプライバシーも確保した。併せて複合断熱サッシュや、床・壁・天井に充分な断熱材を敷き込み、耐力壁も増設する等、構造補強や温熱環境の性能アップも行い、伝統美の中に機能性と快適性を兼ね備えた安全・安心の暮らしの実現化を図りました。外観は、柱の見える真壁工法の伝統的意匠とし、エアコン等の設備配管の露出を抑え、周囲の里山に馴染む景観に配慮しました。地方の暮らしが子育て世代の人たちへ、過密する都市生活では得られない、新たなマインドとして見直され、そのネットワーク広がって行けばと思います。
| Land:土地面積 | 1483 m² |
|---|---|
| Building:建物面積 | 177 m² |
| Structure:構造 | Wooden one-story building (traditional construction method)木造平屋建て(伝統工法) |
| Built in:建築年 | 1984 |

It was built in Meiji 8 (1875) and has been inhabited for 145 years, including Meiji, Taisho, Showa, Heisei, and Reiwa. About 55 years ago, it was renovated from the original thatched roof to a tiled roof, and an entrance with a purlin roof was also set up to this day. The main structures of Keyaki, pine, and cedar are made of large wood, and are characterized by a robust and imposing posture with advanced technology in the joints and joints. In this regeneration, the part that was expanded on the north side was dismantled and returned to its original appearance, and while retaining the main structural materials and large room divisions, the concept of earthquake resistance, functionality, barrier-free, and storage planning was adopted, and the use of the room and the location of the water circulation were greatly changed. I also removed all the old fittings, Buddhist altars, and shrine shelves and had them repaired and reused by a joinery shop. Since there are many opportunities for various people to gather in addition to family, the previous earthen floor was set up like a hotel lounge (with large beams on the ceiling) that connected to the living room, and when the partition fi明治8年(1875年)に建てられ、明治・大正・昭和・平成・令和と、145年間にわたり住まわれてきました。今から55年ほど前に当初の茅葺屋根から瓦屋根に改修され、あわせて入母屋屋根の玄関が設けられ今日に至っています。主要構造の欅や松、杉は大きな木材が使用され、仕口や継ぎ手に高度な技術が施された堅牢かつ威風堂々とした構えが特徴的です。今回の再生では、北側に増築された部分を解体して創建時の姿へ戻し、また主要な構造材と大きな部屋割りは残しつつ、耐震性、機能性、バリアフリー、収納計画の考え方を取り入れ、部屋の用途や水廻りの位置を大きく替えました。古い建具や仏壇・神棚も、すべて一度取り外して建具屋さんに修理して頂き再利用しました。家族以外にも、様々な人の集まる機会が多い事から、それまでの土間を、居間へと繋がるホテルのラウンジ(天井には大きな梁がかかる)のような設えとし、仕切りの建具を開けると20畳を超える広い部屋になり、併せて空間の雰囲気も大きく変化します。暗く風通しのわるかった室内は、新たに設けた中廊下のトップライトから光が入り、通風も計画的に取り入れました。室内の色調は古材・白壁・大谷石というシンプルな素材でまとめ、落ち着きと明るさ、古いものと新しいものとのバランスをはかりました。今回の工事では、気候変動によるゲリラ豪雨や地震等の災害対策として、治水工事や土留め工事等の建物周辺にも及びました。揚屋工事からはじまり一年に及ぶ難度の高い仕事でしたが、施主の理解のもと、大工さんはじめ多くの伝統建築技術の職人さん、またそれをまとめてくれた現場監督さんに支えられて完成にいたりました。これから50年さらに100年と住み繋いで欲しいと思います。
| Land:土地面積 | 1764 m² |
|---|---|
| Building:建物面積 | 228 m² |
| Structure:構造 | Wooden one-story building (traditional construction method)木造平屋建て(伝統工法) |
| Built in:建築年 | 1875 |

It is an old private house with farmland.
Supermarkets are also nearby, making it a comfortable environment to live in.
*VR viewing is available from the vacant house bank property information on the Ishioka City official website.農地付きの古民家です。
スーパーマーケットも近く、暮らしやすい環境です。
※石岡市公式ホームページの空き家バンク物件情報からVR内覧が可能です。
| Land:土地面積 | 1071 m² |
|---|---|
| Building:建物面積 | 120 m² |
| Scale:建物規模 | 1 story1階建 |
| Structure:構造 | Wooden木造 |
| Built in:建築年 | 1980 |

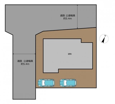
There is a Joyo Bank Kakioka branch 22 meters from the house. The road in front is more than 6m, flat, and the width of the road is more than 15m. Floor plan 3LDK+1S, building area 127.00㎡, land area 606.01㎡. The price is 8 million yen. He was immediately extradited.家から22mのところに常陽銀行柿岡支店があります。前面道路6m以上、平坦地、接道幅15m以上。間取り3LDK+1S、建物面積127.00㎡、土地面積606.01㎡。価格800万円。即引渡し可。
| Land:土地面積 | 606 m² |
|---|---|
| Building:建物面積 | 127 m² |
| Scale:建物規模 | 2 stories2階建 |
| Structure:構造 | Wooden木造 |
| Built in:建築年 | 1989 |

Vacant house bank [Sale] 600,000 yen Ibaraki Prefecture Ishioka City Kanbayashi Large site 6 rooms 2 floors old private house with garden, terrace, veranda, garage, and 2 parking lots Water supply and sewerage空き家バンク【売買】60万円 茨城県石岡市上林 広い敷地 庭・テラス・ベランダ・車庫・駐車場2台付き6部屋2階建古民家 上下水道
| Land:土地面積 | 727 m² |
|---|---|
| Building:建物面積 | 74 m² |
| Structure:構造 | Two-story wooden structure木造2階建 |

Ibaraki Prefecture, located just northeast of Tokyo, offers a blend of rural charm and urban convenience, making it an attractive option for those seeking an affordable yet quality lifestyle in Japan. The prefecture is blessed with scenic landscapes, including mountains, lakes, and coastal areas along the Pacific Ocean, providing plenty of outdoor activities and a peaceful environment. Cultural sites, such as temples and shrines, reflect a rich history, while modern amenities ensure daily conveniences. Affordable housing is relatively accessible in Ibaraki Ken compared to major metropolitan areas like Tokyo and Osaka. You can find a variety of properties, including traditional wooden houses and more modern apartments, often at prices significantly lower than in urban hotspots. This affordability extends to weekly utilities and transportation, making commuting to Tokyo feasible at about an hour by train, thus maintaining accessibility while enjoying a quieter life. In terms of quality of life, Ibaraki Ken boasts excellent public services, vibrant local markets, and a sense of community that can be harder to find in larger cities. The cost of living is generally lower than in the Kansai or Kanto regions, allowing for a more comfortable standard of living. You can enjoy a balanced lifestyle with a good mix of urban excitement and natural beauty, making Ibaraki Ken a compelling choice for those looking to relocate and thrive in Japan.
AllAkiyas.com puts at your disposition thousands of Japanese real estate listings of properties available for sale or rent. Our extensive listings include detached houses, townhouses, apartments, commercial spaces, and vacant lots. We place a special focus on traditional vacant houses, known as akiya (or kominka in rural areas), and traditional townhouses, or machiya. You can easily search for properties across all of Japan's prefectures using your specific criteria.