





Añadir a listas:✕
Para obtener más información, consulte el Banco de información de casas vacantes/lotes vacantes de la ciudad de Takaoka* Ver detalles矢掛商店街沿いにある賃貸物件
以前は主に物置・倉庫等として使用されていた物件で、店舗等としての活用も可能
また、建物南側には約2台分の駐車スペースあり
矢掛宿伝統的建造物群保存地区(以下保存地区)内にある物件の改修・補修等行う場合、保存地区の伝統的建造物に倣い、復元や歴史的風致に調和させた改修等を行う必要あり
必ず、事前に矢掛町教育委員会へ要相談
Depósito de seguridad:敷金 | - / -不明 |
---|---|
Key money:礼金 | -不明 |
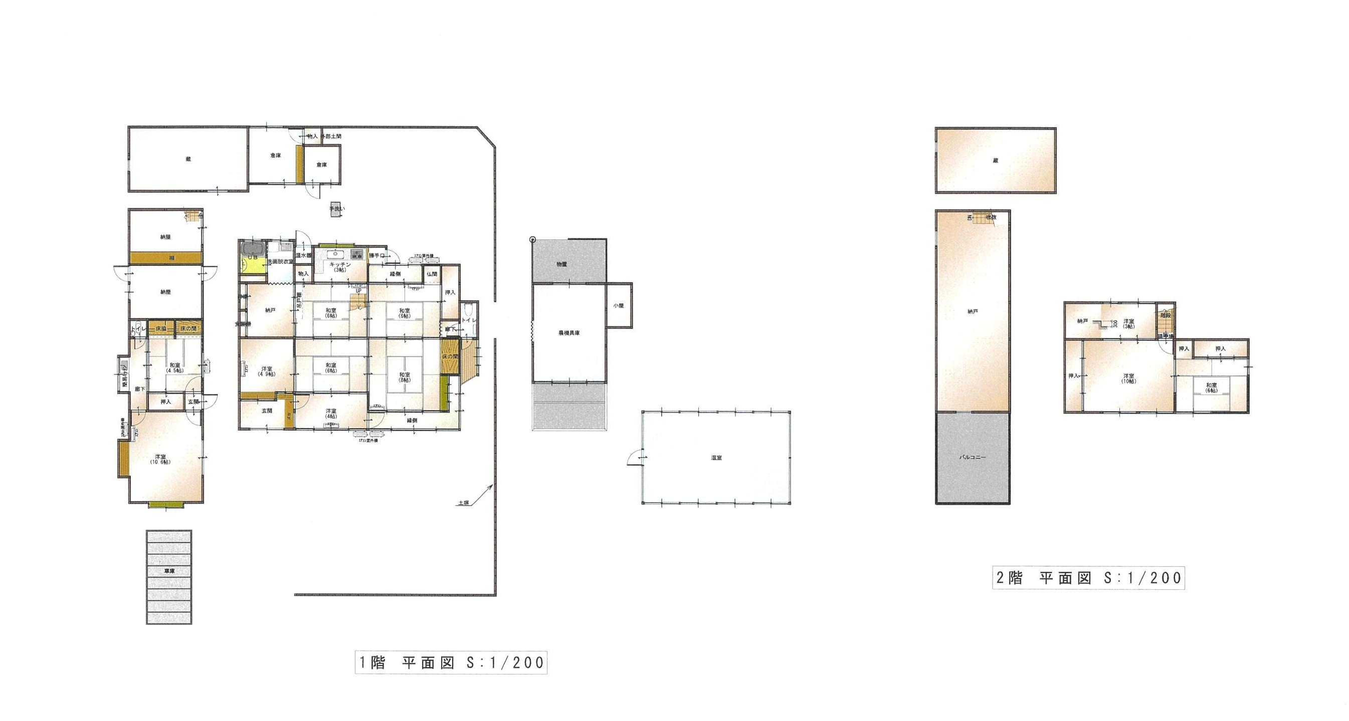
Terreno:土地面積 | 549 m² |
Edificio:建物面積 | 105 m² |
Area exclusiva:専有面積 | 105 m² |
Escala:建物規模 | 2 pisos / -2階建 / - |
Estructura:構造 | De madera木造 |
Construido en:建築年 | 1976 |
Esta es una propiedad de un solo piso a la venta ubicada en el área central de Yakage.
Como anteriormente hemos brindado servicios de atención de enfermería (guardería de día), recomendaríamos esta empresa a cualquiera que quiera abrir un negocio.矢掛中心エリアにある平屋の売却物件です。
介護サービス(デイサービス)を提供していたこともあり、事業所を開設したい方におすすめです。
Terreno:土地面積 | 650 m² |
---|---|
Edificio:建物面積 | 130 m² |
Estructura:構造 | De madera木造 |
Construido en:建築年 | 2007 |
Se trata de una antigua casa popular construida hace más de 100 años y todavía hay un taller en el segundo piso.
Esta propiedad ha sido renovada para ser completamente eléctrica.
A 10 minutos a pie de una residencia especial para ancianos, un servicio diurno y una residencia de ancianos
Campo (aproximadamente 400 metros cuadrados) Se admiten mascotas (solo al aire libre)築100年以上の古民家で、2階にはアトリエが残されています。
オール電化に改修済の物件です。
特別養護老人ホーム、デイサービス、ケアハウスまで徒歩10分
畑(約400平米) ペット可(室外のみ)
Depósito de seguridad:敷金 | No es claro不明 |
---|---|
Key money:礼金 | No es claro不明 |
Edificio:建物面積 | 235 m² |
Area exclusiva:専有面積 | 235 m² |
Estructura:構造 | De madera木造 |
Todas las akiya en un solo lugar
¡Encuentre la casa vacante perfecta en Japón!
Comprar una casa barata en Okayama ofrece la oportunidad de vivir en una región culturalmente rica, conocida por sus monumentos históricos, paisajes pintorescos y vibrantes comunidades locales.
Las casas más pequeñas de Okayama reflejan estilos arquitectónicos tradicionales japoneses que priorizan el uso eficiente del espacio. Esto puede ser atractivo para quienes buscan un ambiente de vida acogedor e íntimo. Los interesados deben considerar cuidadosamente sus preferencias de vida y sus necesidades de transporte, ya que las opciones más asequibles suelen estar ubicadas más lejos de los centros urbanos o de las zonas turísticas populares.
Con una investigación diligente y expectativas realistas, es posible encontrar una casa económica que se ajuste a sus necesidades y aspiraciones en esta pintoresca prefectura de Japón.
AllAkiyas.com pone a su disposición miles de anuncios inmobiliarios japoneses de propiedades en venta o en alquiler. Nuestra vasto catálogo incluye casas unifamiliares, casas adosadas, apartamentos, locales comerciales y terrenos baldíos. Nos centramos especialmente en las casas tradicionales vacías, conocidas como akiya (o kominka en zonas rurales), y las casas adosadas tradicionales, o machiya. Puede buscar fácilmente propiedades en todas las prefecturas de Japón utilizando sus criterios específicos.