
Verify availabilityAdd to lists:✕

Name: "Akiba Hill"
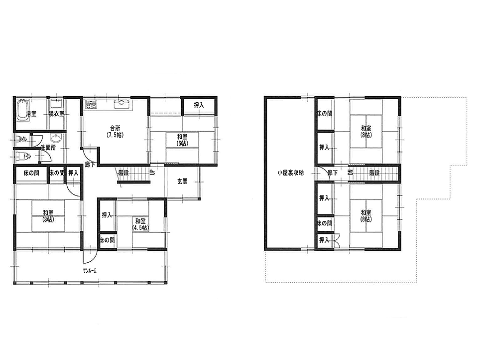
Rental housing for people over 60 years old who are independent and require nursing care 1. A living environment surrounded by the nature of the satoyama. We offer hot meals made with local ingredients.
All rooms have cable TV (terrestrial digital/BS) and Internet access. Room C can be moved in by a couple. Physical assistance/life support requires a separate contract for long-term care insurance services, etc.名称「秋葉の丘」
60歳以上の自立〜要介護1の方向け賃貸住宅。里山の自然に囲まれた住環境。地域の食材を使った温かい食事を提供。
全室ケーブルTV(地デジ・BS)・インターネット利用可能。居室Cはご夫婦での入居可能。身体介助/生活支援等は介護保険サービス等の別途契約が必要。
| Building:建物面積 | Please inquire |
|---|---|
| Scale:建物規模 | Second floor2階 |
| Structure:構造 | Wooden木造 |
| Built in:建築年 | 2017 |

A large old house with good sunlight and a spectacular view of the Northern Alps. Farmland, mountains and forests are attached. Currently, it is necessary to inspect and repair and renovate the roof, fittings, and plumbing. Sediment disaster warning area.日当たり良好、北アルプスの絶景が楽しめる大きな古民家。農地山林が付属。現状売買のため屋根や建具、水回りを含む点検補修やリフォームが必要。土砂災害警戒区域。
| Land:土地面積 | 1336 m² |
|---|---|
| Building:建物面積 | 275 m² |
| Scale:建物規模 | Second floor2階 |
| Structure:構造 | Wooden tile roof木造瓦葺き |
| Built in:建築年 | 1933 |

An old house of reasonable size. Good sunlight. With vegetable garden. Bus stop nearby. It is necessary to inspect and maintain water pipes, install septic tanks, and renovate water areas. Recommended for DIY lovers. Sediment disaster warning area.手頃な大きさの古民家。日当たり良好。菜園付き。バス停至近。水道管の点検整備、浄化槽の設置や水周り等リフォームが必要。DIY好きの方にもお勧め。土砂災害警戒区域。
| Land:土地面積 | 167 m² |
|---|---|
| Building:建物面積 | 127 m² |
| Scale:建物規模 | Second floor2階 |
| Structure:構造 | Wooden木造 |
| Built in:建築年 | 1928 |

An old folk house built 135 years ago. Good sunlight. A storehouse and a large vegetable garden are included. Cabin for work included. All plumbing and other areas need to be renovated.築135年の古民家。日当たり良好。蔵や広い菜園が付属。作業用の小屋付属。水回り等全てリフォームが必要。
| Land:土地面積 | 1002 m² |
|---|---|
| Building:建物面積 | 223 m² |
| Scale:建物規模 | 1st floor1階 |
| Structure:構造 | Wooden tile roof木造瓦葺き |
| Built in:建築年 | 1887 |

A Japan house attached to the store. Good sunlight and ventilation. A vegetable garden is also allowed in the garden. The southeast side is open and has an excellent sense of openness. Renovation of the water area is necessary. I have a lot of luggage, but I want you to clean it up.店舗付属の日本家屋。日当たり・風通し良好。庭で家庭菜園も可。東南側が開けており開放感抜群。水周りなどのリフォームは必要。荷物はたくさんあるが片付けて欲しい。
| Land:土地面積 | 237 m² |
|---|---|
| Building:建物面積 | 207 m² |
| Scale:建物規模 | Second floor2階 |
| Structure:構造 | Wooden tile roof木造 瓦屋根 |
| Built in:建築年 | 1960 |

An old folk house in a quiet environment full of nature. A detachment and a storehouse are also included. A quaint and spacious building that used to operate as a soba restaurant. No kitchen sink. The items in the warehouse are disposed of by the buyer. There is a field.自然あふれる静かな環境に立つ古民家。離れや蔵も付属。以前は蕎麦屋として営業していた趣のある広々した建物。キッチン流し無し。蔵の中の物などは購入者側で処分。畑あり。
| Land:土地面積 | 198 m² |
|---|---|
| Building:建物面積 | 271 m² |
| Scale:建物規模 | Second floor2階 |
| Structure:構造 | Wooden tile roof木造瓦葺き |
| Built in:建築年 | 1913 |

The storehouse with magnificent Namako walls and store space are attached to the wide frontage. The new house store space can also be used as a garage. The quaint courtyard also serves as an affordable vegetable garden. Luggage included.立派ななまこ壁の蔵や店舗スペース付属で間口の広さが魅力。新宅店舗スペースはガレージとしても利用可能。趣のある中庭は手頃なサイズの家庭菜園としても。荷物あり。
| Land:土地面積 | 410 m² |
|---|---|
| Building:建物面積 | 414 m² |
| Scale:建物規模 | Second floor2階 |
| Structure:構造 | Wooden tile roof木造 瓦屋根 |
| Built in:建築年 | 1956 |

A cheap old house with a good view on a hill. Farmland, mountains and forests are attached. There is a leak and floor fall due to partial roof damage. Currently, large-scale repairs are required including inspection and repair of the water area and reduction of construction due to the current sale. Special Warning Area for Sediment Disasters.高台に建つ見晴らし良好、格安な古民家。農地山林が付属。部分的な屋根の傷みによる雨漏り、床落ち有り。現状売買のため水回りの点検補修や減築を含む大規模修繕が必要。土砂災害特別警戒区域。
| Land:土地面積 | 781 m² |
|---|---|
| Building:建物面積 | 155 m² |
| Scale:建物規模 | Second floor2階 |
| Structure:構造 | Wooden tile roofing (some roofs have fallen off and need to木造瓦葺(一部屋根落ち有り・要補修) |
| Built in:建築年 | 1909 |

An old house in good condition that has been expanded and renovated. Good sunlight. There is a well. Attached to the warehouse and farm shed. Kitchen wall damage. Plumbing and other necessary inspections and repairs. The back of the house is a steep slope and is in the landslide disaster warning area.増改築を重ねた状態の良い古民家。日当たり良好。井戸あり。蔵・農作業小屋付属。キッチン壁損傷。水回り等要点検補修。家の裏側は急傾斜地で土砂災害警戒区域にかかる。
| Land:土地面積 | 1327 m² |
|---|---|
| Building:建物面積 | 178 m² |
| Scale:建物規模 | 1st floor1階 |
| Structure:構造 | Wooden tile roof木造瓦葺き |
| Built in:建築年 | 1972 |

Good sunlight and ventilation. An old house on a hill. A storehouse and garage are also included. A quaint Japanese-style garden. A natural family-friendly property with mountains and fields.日当たり風通し良好。高台の古民家。蔵やガレージも付属。趣のある和風の庭。山や畑もある自然派ファミリー向け物件。
| Land:土地面積 | 433 m² |
|---|---|
| Building:建物面積 | 190 m² |
| Scale:建物規模 | Second floor2階 |
| Structure:構造 | Wooden tile roof木造 瓦屋根 |
| Built in:建築年 | 1962 |

Japan is an enticing destination for those looking to immigrate and start a new life. It is a country that seamlessly blends rich tradition with cutting-edge modernity. One of the key factors that make Japan so attractive to prospective immigrants is the housing availability. While Japan's bustling metropolises like Tokyo, Osaka, and Kyoto offer a wide range of housing options, from modern apartments to traditional machiya, the country also faces a unique issue: a surplus of vacant houses, especially in rural areas. This provides an intriguing opportunity for immigrants to potentially acquire properties at reasonable prices, often at a fraction of what one might pay in major cities.
Japan's real estate market is diverse and can cater to various budgets. While cities like Tokyo tend to be on the higher end of the spectrum, there are still affordable options to be found in the suburbs and smaller towns. This inclusivity in housing costs allows immigrants to select a location that suits their financial circumstances.
AllAkiyas.com puts at your disposition thousands of Japanese real estate listings of properties available for sale or rent. Our extensive listings include detached houses, townhouses, apartments, commercial spaces, and vacant lots. We place a special focus on traditional vacant houses, known as akiya (or kominka in rural areas), and traditional townhouses, or machiya. You can easily search for properties across all of Japan's prefectures using your specific criteria.