Verify availabilityAdd to lists:✕

It is a residence where you can feel the scent of the sea where you can see the Sea of Japan from nearby Kurauchi Bay. It is sunny and there are many rooms, so it is okay for a large number of people. Please make good use of the continuation of the Japanese-style room. It is a calm house with a Japanese-style Japan house. It is perfect for those who want to live a relaxing life in a quiet environment.近くの倉内湾から日本海が望める海の香り感じるお住まいです。陽当たりよくお部屋数も多く、大人数でも大丈夫です。和室の続き間を上手にご使用ください。和風の日本家屋の造りで落ち着きある住宅です。静かな環境でのんびり暮らしたい方にピッタリです。
| Land:土地面積 | 247 m² |
|---|---|
| Building:建物面積 | 131 m² |
| Structure:構造 | Wooden two-story building木造 2階建 |
| Built in:建築年 | 1964 |

It is close to an elementary school and other places, and has a Japanese-style house. If you use the garden as a parking lot, you can secure space for three cars. There are several rooms, so you can have your own room.小学校等に近く、和風の住宅。庭を駐車場にすれば3台のスペースを確保できそうです。部屋数がありますので、各自の部屋を持てそうです。
| Land:土地面積 | 377 m² |
|---|---|
| Building:建物面積 | 114 m² |
| Structure:構造 | Wooden two-story building木造 2階建 |
| Built in:建築年 | 1964 |

A peaceful residential area near supermarkets and hospitals. Perfect for those who want to enjoy the countryside and ocean and mountains. Easy access as it is on a corner lot. There is also a day spa nearby.スーパーマーケット、病院近くの長閑な住宅街。海や山を楽しむ田舎暮らしをしたい方は最適です。角地なので出入りがしやすいです。近くに日帰り温泉施設もあります。
| Land:土地面積 | 232 m² |
|---|---|
| Building:建物面積 | 107 m² |
| Structure:構造 | Wooden two-story building木造 2階建 |
| Built in:建築年 | 1974 |

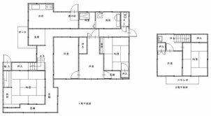
The location is close to National Route 9, with easy access to both Matsue and Izumo.
With 8 bedrooms and 8 kitchens, it is recommended for families with many children.
The spacious earthen floor space is useful for storing bicycles and other items, or for working on hobbies.国道9号線まで近く、松江方面・出雲方面にもアクセスが便利な立地です。
8LDKと部屋数も豊富ですので、ご家族の多いご家庭にもおすすめです。
広い土間スペースがあり、自転車などの収納場所や趣味の作業をする場所としても重宝します。
| Land:土地面積 | 385 m² |
|---|---|
| Building:建物面積 | 291 m² |
| Structure:構造 | Wooden two-story building木造 2階建 |

Japan is an enticing destination for those looking to immigrate and start a new life. It is a country that seamlessly blends rich tradition with cutting-edge modernity. One of the key factors that make Japan so attractive to prospective immigrants is the housing availability. While Japan's bustling metropolises like Tokyo, Osaka, and Kyoto offer a wide range of housing options, from modern apartments to traditional machiya, the country also faces a unique issue: a surplus of vacant houses, especially in rural areas. This provides an intriguing opportunity for immigrants to potentially acquire properties at reasonable prices, often at a fraction of what one might pay in major cities.
Japan's real estate market is diverse and can cater to various budgets. While cities like Tokyo tend to be on the higher end of the spectrum, there are still affordable options to be found in the suburbs and smaller towns. This inclusivity in housing costs allows immigrants to select a location that suits their financial circumstances.
AllAkiyas.com puts at your disposition thousands of Japanese real estate listings of properties available for sale or rent. Our extensive listings include detached houses, townhouses, apartments, commercial spaces, and vacant lots. We place a special focus on traditional vacant houses, known as akiya (or kominka in rural areas), and traditional townhouses, or machiya. You can easily search for properties across all of Japan's prefectures using your specific criteria.