All Akiyas
S'inscrire
S'inscrire


commercial 南郷
Voir en plein écran
Ajouter ou supprimer de ma liste
commercial 南郷
commercial 南郷
commercial 南郷
commercial 南郷
commercial 南郷
commercial 南郷
commercial 南郷
commercial 南郷
commercial 南郷
commercial 南郷
commercial 南郷
commercial 南郷
commercial 南郷
commercial 南郷
commercial 南郷
commercial 南郷
commercial 南郷
commercial 南郷
commercial 南郷
commercial 南郷
commercial 南郷
commercial 南郷
commercial 南郷
commercial 南郷
commercial 南郷
commercial 南郷
commercial 南郷
commercial 南郷
Commercial à vendre à Misato Cho : Miyazaki Ken

EndroitMisato Cho, Miyazaki Ken宮崎県美郷町

Ouvrir dans un nouvel onglet
USD $31,719
(¥5,000,000)
500 万円
USD $317 / mois
(¥50,000 / mois)
5 万円 / 月
  • Infos
  • Carte

RemarquesRemarques備考

À 2 minutes en voiture de Misato Minami Gakuen
2 minutes en voiture de la succursale de Nango
1 minute en voiture de la clinique Nango
1 minute en voiture du magasin A Corp Mikado
Historique des maisons vacantes : à partir de 2021
Zones de réparation : Aucune
・ Propriété de bricolage (les frais de réparation sont à la charge de l'utilisateur)
・Définir la propriété avec le n° 115-2
・Chaque chambre est équipée de la climatisation et du chauffage
・Nombre de pièces (4 pièces au 1er étage, 17 pièces au 2ème étage)
・ Propriété inoccupée
・Le propriétaire prévoit de nettoyer les articles ménagers du premier étage et du sous-sol.
・Taxe sur les immobilisations R5 ans 288 000 yens (y compris le n° 115-2)
美郷南学園まで車2分
南郷支所まで車2分
南郷診療所まで車1分
Aコープみかど店まで車1分
空き家歴:2021年から
修繕箇所:なし
・DIY物件(修繕費は利用者負担)
・№115-2とセット物件
・各部屋は冷暖房完備
・部屋数(1階4部屋、2階17部屋)
・居抜き物件
・1階と地下の家財道具は家主片付け予定
・R5年度固定資産税288,000円(№115-2含)

Adresse
Nango南郷
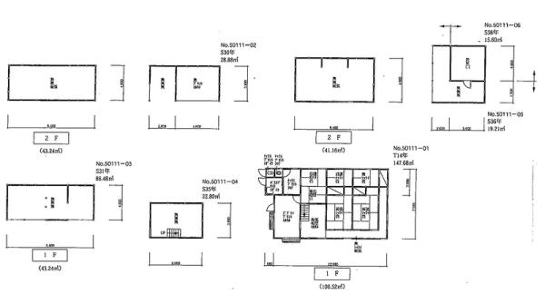
Terrain :土地面積526 m²
Bâtiment :建物面積700 m²
Structure :構造Bâtiment en béton armé d'acier à deux étages鉄骨鉄筋コンクリート造2階建
Bâtit en :建築年1984
detached 北郷
Voir en plein écran
Ajouter ou supprimer de ma liste
detached 北郷
detached 北郷
detached 北郷
detached 北郷
detached 北郷
detached 北郷
detached 北郷
detached 北郷
detached 北郷
detached 北郷
detached 北郷
detached 北郷
detached 北郷
detached 北郷
detached 北郷
detached 北郷
detached 北郷
detached 北郷
detached 北郷
detached 北郷
detached 北郷
detached 北郷
detached 北郷
detached 北郷
detached 北郷
detached 北郷
detached 北郷
detached 北郷
detached 北郷
Maisons traditionnelles à vendre à Misato Cho : Miyazaki Ken

EndroitMisato Cho, Miyazaki Ken宮崎県美郷町

Ouvrir dans un nouvel onglet
USD $6,344
(¥1,000,000)
100 万円
USD $63 / mois
(¥10,000 / mois)
1 万円 / 月
  • Infos
  • Carte

RemarquesRemarques備考

École : à 7 minutes en voiture de l'école d'enseignement obligatoire Misato Kita
Bureau : à 8 minutes en voiture de la succursale de Kitago de la mairie de Misato
Hôpital : à 8 minutes en voiture de la clinique Kitago
Supermarché : à 9 minutes en voiture du magasin A Coop Unama
Historique des maisons vacantes : à partir de 2023
Zones de réparation : sol de véranda faible, plusieurs vitres cassées, avant-toits pourris.
・ Propriété de bricolage (les réparations sont à la charge de l'utilisateur)
・Les articles ménagers peuvent être retirés (autorisation du propriétaire requise)
・Parking payant disponible à proximité
・Taxe sur les immobilisations pour l'exercice 2020 8 400 yens
・ Propriété Irishita Chikusen (entretien avec la population locale inclus)
学校:美郷北義務教育学校まで車7分
役場:美郷町役場北郷支所まで車8分
病院:北郷診療所まで車8分
スーパー:Aコープうなま店まで車9分
空き家歴:2023年から
修繕箇所:縁側床弱い、窓ガラス数枚割れ、軒の腐朽
・DIY物件(修繕は利用者負担)
・家財道具撤去可(要家主許可)
・近所に有料駐車場あり
・令和6年度固定資産税8,400円
・入下ちくせん物件(地域の方との面談あり)

Adresse
Kitago北郷
Terrain :土地面積469 m²
Bâtiment :建物面積151 m²
Structure :構造Bâtiment en bois à deux étages木造2階建
Bâtit en :建築年1932
detached 北郷
Voir en plein écran
Ajouter ou supprimer de ma liste
detached 北郷
detached 北郷
detached 北郷
detached 北郷
detached 北郷
detached 北郷
detached 北郷
detached 北郷
detached 北郷
detached 北郷
detached 北郷
detached 北郷
detached 北郷
detached 北郷
detached 北郷
detached 北郷
detached 北郷
detached 北郷
detached 北郷
detached 北郷
detached 北郷
detached 北郷
detached 北郷
detached 北郷
detached 北郷
detached 北郷
detached 北郷
detached 北郷
Maisons traditionnelles à vendre à Misato Cho : Miyazaki Ken

EndroitMisato Cho, Miyazaki Ken宮崎県美郷町

Ouvrir dans un nouvel onglet
USD $39,965
(¥6,300,000)
630 万円
  • Infos
  • Carte

RemarquesRemarques備考

École : 6 minutes en voiture de l'école d'enseignement obligatoire de Misatokita
Hôtel de ville : à 4 minutes en voiture de la succursale de Kitago
Hôpital : à 4 minutes en voiture de la clinique Kitago
Supermarché : A-Coop Unamamade à 6 minutes en voiture
Historique de la maison vacante :
Réparations : Aucune
・Eau de puits disponible (robinet de salle de bain, cuisine, alimentation en eau extérieure), la chaudière est l'alimentation en eau
・Il y a une entrée vers la maison voisine sur les lieux
・Des frais supplémentaires sont exigés pour passer par une agence immobilière
・Le mobilier sera discuté avec le propriétaire après la conclusion du contrat.
Il y a des terres agricoles disponibles
・Livraison possible après R8.5
・Propriété Nagano Chikusen (entretiens avec les résidents locaux inclus)
学校:美郷北義務教育学校まで車6分
役場:北郷支所まで車4分
病院:北郷診療所まで車4分
スーパー:Aコープうなままで車6分
空き家歴:
修繕箇所:なし
・井戸水あり(お風呂蛇口、台所、外水道)、ボイラーは水道
・敷地内に隣の家の侵入口あり
・不動産会社を通すため別途手数料が必要
・家財道具は成約後に家主と協議
・利用できる農地あり
・R8.5以降に受渡可
・長野ちくせん物件(地域の方との面談あり)

Adresse
Kitago北郷
Terrain :土地面積427 m²
Bâtiment :建物面積87 m²
Structure :構造Maison en bois à un étage木造平屋
Bâtit en :建築年1949
detached 北郷
Voir en plein écran
Ajouter ou supprimer de ma liste
detached 北郷
detached 北郷
detached 北郷
detached 北郷
detached 北郷
detached 北郷
detached 北郷
detached 北郷
detached 北郷
detached 北郷
detached 北郷
detached 北郷
detached 北郷
detached 北郷
detached 北郷
detached 北郷
detached 北郷
detached 北郷
detached 北郷
detached 北郷
Maisons traditionnelles à vendre à Misato Cho : Miyazaki Ken

EndroitMisato Cho, Miyazaki Ken宮崎県美郷町

Ouvrir dans un nouvel onglet
USD $12,053
(¥1,900,000)
190 万円
  • Infos
  • Carte

RemarquesRemarques備考

École : L'école d'éducation obligatoire de Misatokita est à 7 minutes en voiture
Hôtel de ville : 9 minutes en voiture de l'hôtel de ville de Misato et de la succursale de Kitago
Hôpital : 8 minutes en voiture de la clinique Kitago
Supermarché : magasin A-Coop Unama, à 10 minutes en voiture
Historique de la maison vacante : Depuis 2016
Réparations : Sol du placard, remplacement du tatami, sol du dressing, porte extérieure de la salle de bain manquante, partie du toit du cellier manquante, porte d'entrée manquante
・État actuel
・La statue de Jizo sur les lieux devrait être retirée par le propriétaire
・Propriété à Irishita Chikusen (entretiens avec des résidents locaux)
学校:美郷北義務教育学校まで車7分
役場:美郷町役場北郷支所まで車9分
病院:北郷診療所まで車8分
スーパー:Aコープうなま店まで車10分
空き家歴:2016年から
修繕箇所:押入れ床、畳替え、脱衣所床、風呂の外扉鍵なし、倉庫屋根一部なし、玄関鍵なし
・現状渡し
・敷地内にある地蔵さんは家主が撤去予定
・入下ちくせん物件(地域の方との面談あり)
・令和6年度固定資産税13400円

Adresse
Kitago北郷
Terrain :土地面積782 m²
Bâtiment :建物面積148 m²
Structure :構造Bâtiment en bois à deux étages木造2階建て
Bâtit en :建築年1925
detached 北郷
Voir en plein écran
Ajouter ou supprimer de ma liste
detached 北郷
detached 北郷
detached 北郷
detached 北郷
detached 北郷
detached 北郷
detached 北郷
detached 北郷
detached 北郷
detached 北郷
detached 北郷
detached 北郷
detached 北郷
detached 北郷
detached 北郷
detached 北郷
detached 北郷
detached 北郷
detached 北郷
detached 北郷
detached 北郷
detached 北郷
detached 北郷
detached 北郷
detached 北郷
detached 北郷
detached 北郷
Maisons traditionnelles à vendre à Misato Cho : Miyazaki Ken

EndroitMisato Cho, Miyazaki Ken宮崎県美郷町

Ouvrir dans un nouvel onglet
USD $12,687
(¥2,000,000)
200 万円
  • Infos
  • Carte

RemarquesRemarques備考

École : à 3 minutes en voiture de l’école d’enseignement obligatoire de Misato Kita
・ Bureau municipal : à 2 minutes en voiture de la succursale de Kitago
・Hôpital : à 2 minutes en voiture de la clinique Kitago
・ Supermarché : 3 minutes en voiture avec A Corp Una
・ Historique des maisons vacantes : depuis 2016 environ
・ Lieu de réparation : Pas de clé d’entrée, une partie de la maison est inclinée, il y a une pièce sans sol
・ Ceux qui peuvent gérer l’herbe autour de la maison
・ Les effets personnels seront nettoyés par le propriétaire
・Propriétés non enregistrées
・ Propriété Nakahara Chikusen (il y aura une interview avec la population locale)
学校:美郷北義務教育学校まで車3分
・役場:北郷支所まで車2分
・病院:北郷診療所まで車2分
・スーパー:Aコープうなままで車3分
・空き家歴:2016年頃から
・修繕箇所:玄関鍵なし、家の一部傾きあり、床のない部屋あり
・家まわりの草等の管理が出来る方
・家財道具は家主が片付ける予定
・未登記物件
・中原ちくせん物件(地域の方との面談があります)

Adresse
Kitago北郷
(Localisation approximative)
Terrain :土地面積569 m²
Bâtiment :建物面積127 m²
Structure :構造Maison en bois à un étage木造平屋
Bâtit en :建築年1959
detached 南郷
Voir en plein écran
Ajouter ou supprimer de ma liste
detached 南郷
detached 南郷
detached 南郷
detached 南郷
detached 南郷
detached 南郷
detached 南郷
detached 南郷
detached 南郷
detached 南郷
detached 南郷
detached 南郷
detached 南郷
detached 南郷
detached 南郷
detached 南郷
detached 南郷
detached 南郷
detached 南郷
detached 南郷
detached 南郷
detached 南郷
detached 南郷
detached 南郷
detached 南郷
detached 南郷
detached 南郷
detached 南郷
detached 南郷
Maisons traditionnelles à vendre à Misato Cho : Miyazaki Ken

EndroitMisato Cho, Miyazaki Ken宮崎県美郷町

Ouvrir dans un nouvel onglet
USD $22,203
(¥3,500,000)
350 万円
USD $159 / mois
(¥25,000 / mois)
2 万 5000 円 / 月
  • Infos
  • Carte

RemarquesRemarques備考

École : à 13 minutes en voiture de Misato Minami Gakuen
Bureau du gouvernement : à 15 minutes en voiture de l'agence Nango
Hôpital : 15 minutes en voiture de la Clinique Nango
Supermarché : à 15 minutes en voiture du magasin A Corp Mikado
・Historique des maisons vacantes : à partir de 2022
・Points de réparation : aucun
・Les articles ménagers peuvent être nettoyés par l'utilisateur
・En cas de location, les deux pièces de l'entrepôt extérieur sont utilisées par le propriétaire et ne peuvent pas être utilisées.
・Reiwa 4ème taxe sur les immobilisations 34 300 yens
・Propriété Mizushidani Chikusen (entretien avec la population locale inclus)
学校:美郷南学園まで車13分
役場:南郷支所まで車15分
病院:南郷診療所まで車15分
スーパー:Aコープみかど店まで車15分
・空き家歴:2022年から
・修繕箇所:なし
・家財道具は利用者で片づけ可
・賃貸の場合、外倉庫内の2部屋は家主が利用するため利用不可
・令和4年度固定資産税34,300円
・水清谷ちくせん物件(地域の方との面談あり)

Adresse
Nango南郷
Terrain :土地面積693 m²
Bâtiment :建物面積119 m²
Structure :構造Bâtiment en bois à deux étages木造2階建て
Bâtit en :建築年1959
detached 西郷
Voir en plein écran
Ajouter ou supprimer de ma liste
detached 西郷
detached 西郷
detached 西郷
detached 西郷
detached 西郷
detached 西郷
detached 西郷
detached 西郷
detached 西郷
detached 西郷
detached 西郷
detached 西郷
detached 西郷
detached 西郷
detached 西郷
detached 西郷
detached 西郷
detached 西郷
detached 西郷
detached 西郷
detached 西郷
detached 西郷
detached 西郷
detached 西郷
detached 西郷
detached 西郷
detached 西郷
detached 西郷
Maisons traditionnelles à louer à Misato Cho : Miyazaki Ken

EndroitMisato Cho, Miyazaki Ken宮崎県美郷町

Ouvrir dans un nouvel onglet
USD $127 / mois
(¥20,000 / mois)
2 万円 / 月
  • Infos
  • Carte

RemarquesRemarques備考

École : à 7 minutes en voiture de l'école d'enseignement obligatoire Misato Saigo
Bureau : à 5 minutes en voiture de la mairie de Misato
Hôpital : à 5 minutes en voiture de l'hôpital Saigo
Supermarché : à 7 minutes en voiture du magasin A Coop Saigo
Ceux qui savent gérer les terres agricoles
学校:美郷西郷義務教育学校まで車7分
役場:美郷町役場まで車5分
病院:西郷病院まで車5分
スーパー:Aコープさいごう店まで車7分
・空き家歴:2025年から
・町内活動へ参加する意思のある方
・町外に居住している方で、美郷町に転入し居住しようとしている世帯
・暴力団員による不当な行為の防止等に関する法律に規定する方ではないこと
・市町村税金等の滞納がない方
・生活保護法による保護を受けていないこと
・農地の管理ができる方

Adresse
Saigo西郷
Terrain :土地面積867 m²
Bâtiment :建物面積103 m²
Structure :構造Maison en bois à un étage木造平屋
Bâtit en :建築年1955
detached 北郷
Voir en plein écran
Ajouter ou supprimer de ma liste
detached 北郷
detached 北郷
detached 北郷
detached 北郷
detached 北郷
detached 北郷
detached 北郷
detached 北郷
detached 北郷
detached 北郷
detached 北郷
detached 北郷
detached 北郷
detached 北郷
detached 北郷
detached 北郷
detached 北郷
detached 北郷
detached 北郷
detached 北郷
detached 北郷
detached 北郷
detached 北郷
detached 北郷
detached 北郷
detached 北郷
detached 北郷
detached 北郷
detached 北郷
Maisons traditionnelles à vendre à Misato Cho : Miyazaki Ken

EndroitMisato Cho, Miyazaki Ken宮崎県美郷町

Ouvrir dans un nouvel onglet
USD $8,881
(¥1,400,000)
140 万円
  • Infos
  • Carte

RemarquesRemarques備考

École : à 12 minutes en voiture de l'école d'enseignement obligatoire Misato Kita
Bureau : succursale de Kitago
Hôpital : Clinique Kitago
Super : Une coopérative Unama
Historique des maisons vacantes : Depuis 2017
Aires de réparation : Réparations majeures à prévoir dans l'ensemble, pas d'évier de cuisine, traces de termites au sol et sur les murs
・Les utilisateurs doivent être âgés de moins de 59 ans et capables de gérer l'herbe, etc. autour de la maison.
・Des frais supplémentaires s'appliqueront car les lampadaires ont déjà été installés.
・Certains articles ménagers seront enlevés par le propriétaire après la signature du contrat.
・Reiwa 5ème taxe sur les immobilisations 39 200 yens
・Irishita Chikusen (rencontres avec la population locale)
学校:美郷北義務教育学校まで車12分
役場:北郷支所
病院:北郷診療所
スーパー:Aコープうなま
空き家歴:2017年から
修繕箇所:全体的に大規模修理必要、台所シンクなし、床壁にシロアリ跡有
・利用者は59歳以下の方で家周りの草等の管理が出来る方
・街灯設置済のため別料金が発生
・家財道具の一部は成約後に家主側が撤去
・令和5年度固定資産税39.200円
・入下ちくせん(地域の方との面談あり)

Adresse
Kitago北郷
Terrain :土地面積686 m²
Bâtiment :建物面積109 m²
Structure :構造Maison en bois à un étage木造平屋
Bâtit en :建築年1968
detached 北郷
Voir en plein écran
Ajouter ou supprimer de ma liste
detached 北郷
detached 北郷
detached 北郷
detached 北郷
detached 北郷
detached 北郷
detached 北郷
detached 北郷
detached 北郷
detached 北郷
detached 北郷
detached 北郷
detached 北郷
detached 北郷
detached 北郷
detached 北郷
detached 北郷
detached 北郷
detached 北郷
detached 北郷
detached 北郷
detached 北郷
detached 北郷
Maisons traditionnelles à vendre à Misato Cho : Miyazaki Ken

EndroitMisato Cho, Miyazaki Ken宮崎県美郷町

Ouvrir dans un nouvel onglet
USD $6,344
(¥1,000,000)
100 万円
  • Infos
  • Carte

RemarquesRemarques備考

École : à 6 minutes en voiture de l'école d'enseignement obligatoire Misato Kita
Bureau : à 8 minutes en voiture de la succursale de Kitago de la mairie de Misato
Hôpital : à 8 minutes en voiture de la clinique Kitago
Supermarché : à 9 minutes en voiture du magasin A Coop Unama
Historique des maisons vacantes : à partir de 2024
Réparations : Pas de clé de la maison, on ne sait pas si le bain à bois peut être utilisé, vitre brisée, fuites de pluie.
・Les articles ménagers seront livrés tels quels.
・ Reiwa 6ème taxe sur les immobilisations 7 500 yens
学校:美郷北義務教育学校まで車6分
役場:美郷町役場北郷支所まで車8分
病院:北郷診療所まで車8分
スーパー:Aコープうなま店まで車9分
空き家歴:2024年から
修繕箇所:家鍵なし、薪風呂が利用できるか不明、窓ガラス割れ、雨漏り箇所あり
・家財道具は現状渡し
・令和6年度固定資産税7,500円

Adresse
Kitago北郷
Terrain :土地面積527 m²
Bâtiment :建物面積107 m²
Structure :構造Maison en bois à un étage木造平屋
Bâtit en :建築年1956
detached 北郷
Voir en plein écran
Ajouter ou supprimer de ma liste
detached 北郷
detached 北郷
detached 北郷
detached 北郷
detached 北郷
detached 北郷
detached 北郷
detached 北郷
detached 北郷
detached 北郷
detached 北郷
detached 北郷
detached 北郷
detached 北郷
detached 北郷
detached 北郷
detached 北郷
detached 北郷
detached 北郷
detached 北郷
detached 北郷
detached 北郷
detached 北郷
detached 北郷
detached 北郷
detached 北郷
detached 北郷
detached 北郷
detached 北郷
Maisons traditionnelles à vendre à Misato Cho : Miyazaki Ken

EndroitMisato Cho, Miyazaki Ken宮崎県美郷町

Ouvrir dans un nouvel onglet
USD $47,578
(¥7,500,000)
750 万円
  • Infos
  • Carte

RemarquesRemarques備考

École : à 5 minutes en voiture de l'école obligatoire
Bureau : à 3 minutes en voiture de la succursale de Kitago de la mairie de Misato
Hôpital : à 3 minutes en voiture de la clinique Kitago
Supermarché : à 3 minutes en voiture du magasin A Coop Unama
Historique des maisons vacantes : à partir de 2024
Points de réparation : porte moustiquaire déchirée, l'eau dans les toilettes extérieures est difficile à arrêter
・Il y a des toilettes extérieures
・Livraison en l'état
・ Reiwa 6ème taxe sur les immobilisations 56 600 yens
・Propriété Nagano Chikusen (entretiens avec la population locale inclus)
学校:義務教育学校まで車で5分
役場:美郷町役場北郷支所まで車で3分
病院:北郷診療所まで車で3分
スーパー:Aコープうなま店まで車で3分
空き家歴:2024年から
修繕箇所:網戸の破れ、外トイレの水が止まりにくい
・乾燥室が不要の場合、成約後に家主が撤去予定
・現状渡し
・令和6年度固定資産税56,600円
・長野ちくせん物件(地域の方との面談あり)

Adresse
Kitago北郷
Terrain :土地面積746 m²
Bâtiment :建物面積176 m²
Structure :構造En bois au 2e étage木造2階
Bâtit en :建築年1992

Toutes les akiya au même endroit

Trouvez la maison vacante parfaite au Japon!

  • Toutes les préfectures du Japon sur un seul site
  • Annonces détaillées avec coordonnées
  • Traduites en français pour faciliter vos recherches
  • Recherchez des propriétés selon vos propres critères
  • Recevez nos alertes personnalisées par email

Se connecter  S'inscrire
Japan

S'installer au Japon

Le Japon est une destination attrayante pour ceux qui cherchent à immigrer et à commencer une nouvelle vie. C’est un pays qui allie harmonieusement une riche tradition à une modernité avant-gardiste. L'un des facteurs clés qui rendent le Japon si attrayant est la disponibilité de logements. Alors que les métropoles japonaises animées comme Tokyo, Osaka et Kyoto offrent un large éventail d'options de logement, des appartements modernes aux machiya traditionnelles, le pays est également confronté à un problème unique : un excédent de logements vacants, en particulier dans les zones rurales. Cela offre aux immigrants une opportunité intéressante d'acquérir des propriétés à des prix raisonnables, souvent à une fraction de ce que l'on pourrait payer dans les grandes villes.

Le marché immobilier japonais est diversifié et peut répondre à différents budgets. Même si des villes comme Tokyo ont tendance à se situer à l'extrémité supérieure du spectre, il existe encore des options abordables dans les banlieues et les petites villes. Cette inclusivité dans les coûts du logement permet aux immigrants de choisir un emplacement qui convient à leur situation financière.


Trouvez un bien immobilier avec AllAkiyas.com

AllAkiyas.com met à votre disposition des milliers d'annonces de biens immobiliers japonais à vendre ou à louer. Notre vaste sélection comprend des maisons individuelles, des maisons de ville, des appartements, des locaux commerciaux et des terrains vagues. Nous accordons une attention particulière aux maisons vacantes traditionnelles, appelées akiya (ou kominka en zone rurale), et aux maisons de ville traditionnelles, ou machiya. Vous pouvez facilement rechercher des biens dans toutes les préfectures du Japon selon vos critères spécifiques.