
Verify availabilityAdd to lists:✕

The property includes a field, warehouse, and agricultural tools. The Mountain Life where you can enjoy the luxurious view from the wide veranda while gardening! It will be a property. The property is in relatively good condition, although some repairs are needed, such as around the bathroom.畑と倉庫、農具まで付いた物件です。
家庭菜園をしながら広い縁側からの贅沢な景色も楽しめるザ・山ライフ!物件になります。お風呂まわり等、多少の修繕が必要にはなってきますが、比較的状態のいい物件です。
| Building:建物面積 | 99 m² |
|---|---|
| Scale:建物規模 | One-story house平屋 |
| Structure:構造 | Wooden木造 |

This is a valuable property that still has the Goemon bath! It may be difficult to boil a bath with firewood every day, but I think this is a good property for those who want to enjoy rural life to the fullest.こちらの物件ですが、まだ五右衛門風呂が残っている貴重な物件となります!
毎日薪でお風呂を沸かすのは大変かもしれませんが、田舎暮らしを満喫したい方には良い物件ではないかと思います。
| Building:建物面積 | 124 m² |
|---|---|
| Scale:建物規模 | One-story house平屋 |
| Structure:構造 | Wooden木造 |
| Built in:建築年 | 1956 |

The Kawabe River, which boasts the best water quality in Japan, flows nearby, so you can enjoy nature to the fullest, but there is also a gas station, post office, and shops nearby, making it a great location for daily life! This property comes with a built-in system kitchen, so it is highly recommended!日本一の水質を誇る川辺川が近くに流れており自然を満喫しつつも、近くにガソリンスタンドや郵便局、商店などあり生活を営むにも好立地となっております! システムキッチンが備え付けで非常におススメの物件です!
| Building:建物面積 | 110 m² |
|---|---|
| Scale:建物規模 | One-story house平屋 |
| Structure:構造 | Wooden木造 |
| Built in:建築年 | 1984 |

This property was originally used as an office for a construction company.
As a result, the first floor is very spacious and the possibilities are endless, such as using it as a large living room or opening a shop!
The property can be used to suit the lifestyle of the resident.
Also, since it was originally a construction company, the toilets and bathrooms are already installed with the latest technology!
This is a recommended house where you can enjoy country living without feeling inconvenienced.元々工務店の事務所と使用されていた物件になります。
そのため1階部分は非常に広く、大きなリビングとして使用したり、何かお店をされるなど可能性は無限大!
入居される方のライフスタイルに合わせて使用できる物件となっております。
また、元々工務店だったこともあり、トイレやお風呂は最新式が設置済み!
田舎暮らしを満喫しながら生活していて不便を感じさせないおすすめの一軒となっております。
| Building:建物面積 | 177 m² |
|---|---|
| Scale:建物規模 | 2 stories2階建て |
| Structure:構造 | Wooden木造 |
| Built in:建築年 | 2001 |

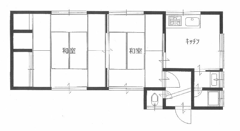
Newly registered cheap property! It is a property with favorable conditions, priced at 10,000 yen for rental and 500,000 yen for sale. There are 3 Japanese-style rooms of 4 to 6 tatami mats, which is recommended for small groups such as couples. There are gas stations, post offices, and shops nearby, making it a great place to live! Please note that the furniture and other items must remain as they are, and the tenant/buyer must clean them.格安物件が新規登録です!
賃貸なら1万円、売買なら50万円という好条件の物件になります。
4~6畳の和室が3部屋あり、ご夫婦など少人数の方にはおススメとなっております。
近くにガソリンスタンドや郵便局、商店などもあり生活を営むにも好立地かと思われます!
注意点としては、家具などがそのまま残っている状態であり、借主・買主が清掃等を実施することが条件となります。
| Building:建物面積 | 80 m² |
|---|---|
| Scale:建物規模 | One-story house平屋 |
| Structure:構造 | Lightweight steel frame軽量鉄骨 |
| Built in:建築年 | 1968 |

The building was originally used as a guesthouse, and is highly recommended not only for residential use, but also for accommodation, restaurants, and other facilities! It is a very convenient area with shops and gas stations, and the property is in a good location with the clear Kawabe River flowing nearby.元々民宿として使われていた建物で、居住での利用だけでなく、宿泊施設や飲食店等の施設利用にも大変おすすめの物件です!
商店やガソリンスタンドもあり、大変利便性のいいエリアで、近くには清流川辺川も流れる好立地の物件です。
| Building:建物面積 | 99 m² |
|---|---|
| Scale:建物規模 | One-story house平屋 |
| Structure:構造 | Wooden木造 |
| Built in:建築年 | 1962 |

Japan is an enticing destination for those looking to immigrate and start a new life. It is a country that seamlessly blends rich tradition with cutting-edge modernity. One of the key factors that make Japan so attractive to prospective immigrants is the housing availability. While Japan's bustling metropolises like Tokyo, Osaka, and Kyoto offer a wide range of housing options, from modern apartments to traditional machiya, the country also faces a unique issue: a surplus of vacant houses, especially in rural areas. This provides an intriguing opportunity for immigrants to potentially acquire properties at reasonable prices, often at a fraction of what one might pay in major cities.
Japan's real estate market is diverse and can cater to various budgets. While cities like Tokyo tend to be on the higher end of the spectrum, there are still affordable options to be found in the suburbs and smaller towns. This inclusivity in housing costs allows immigrants to select a location that suits their financial circumstances.
AllAkiyas.com puts at your disposition thousands of Japanese real estate listings of properties available for sale or rent. Our extensive listings include detached houses, townhouses, apartments, commercial spaces, and vacant lots. We place a special focus on traditional vacant houses, known as akiya (or kominka in rural areas), and traditional townhouses, or machiya. You can easily search for properties across all of Japan's prefectures using your specific criteria.