
Verify availabilityAdd to lists:✕

There are unregistered warehouses and sheds, and there are leftovers inside and outside the building.
It will be delivered as is, and the boundary will not be specified.
For details, please contact the following vacant house bank members directly. Please inform the person in charge of "Look at the vacant house bank".
Company Name: Maple Housing Co., Ltd.
Address 郡山市大槻町字太田北5-1
Tel: 024-973-7605
Regular holidays Irregular holidays緑の原風景に囲まれた田舎暮らしに適した物件です。市街地へのアクセスも良く人も暖かく、程よい里山でホタル里としても知られ、野菜等の自給を楽しみたい方、暑さを避けたい方に最適です。随時ご案内いたします。
詳細は、下記の空家バンク会員に直接お尋ねください。「空家バンクを見て」と担当者にお知らせください。
商号 メイプルハウジング株式会社
住所 郡山市大槻町字太田北5-1
電話 024-973-7605
定休日 不定休
| Land:土地面積 | 5381 m² |
|---|---|
| Building:建物面積 | 200 m² |
| Structure:構造 | Wooden two-story building木造2階建 |
| Built in:建築年 | 1998 |

■There is also a field on the premises, and you can also enjoy a home garden! ■It's also a great place to go on a ramen tour in Kitakata!■敷地内に畑もあり、家庭菜園も楽しめます!■喜多方ラーメンめぐりをするのにも最適な場所です!
| Land:土地面積 | 533 m² |
|---|---|
| Building:建物面積 | 111 m² |
| Scale:建物規模 | Two-story wooden building木造2階建 |
| Structure:構造 | Wooden木造 |
| Built in:建築年 | 1955 |

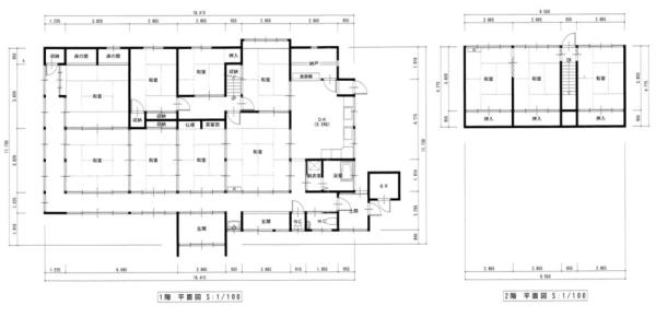
■The site is more than 1,000 tsubo! All buildings face south and have a sense of openness. It is well maintained and in good condition! In addition to the water supply, well water is available. It can also be considered for a two-family house. ■The office and barn building will be made of gallibarium (stainless steel) and the roof will be replaced in 2021, and it will be covered with a manufacturer's warranty until 2046 (25 years).■敷地1000坪以上!建屋は全て南向きで開放感があります。管理が行き届いており状態良好!上水道の他に井戸水が完備されております。2世帯住宅でも検討可能です。■事務所兼納屋の建物は、2021年にガリバリウム(ステンレス)製で屋根を葺き替えし、2046年(25年)までメーカー保証書が付いております。
| Land:土地面積 | 4007 m² |
|---|---|
| Building:建物面積 | 183 m² |
| Scale:建物規模 | Two-story wooden building木造2階建 |
| Structure:構造 | 183.99m² (Registered)183.99m²(登記) |
| Built in:建築年 | 1958 |

Asking price: 9,950,000 yen (negotiable). Date of construction: Newly built in 1953, extended in 1975, storage shed in 2011. Land area 1628.06 m2 (493.35 tsubo). Note: No earthquake resistance inspection has been conducted on the house.希望価格:995万円(要相談)。建築年月日:1953年新築、1975年増築、物置2011年。宅地1628.06㎡(493.35坪)。備考:住宅の耐震化耐震診断未実施。
| Land:土地面積 | 1628 m² |
|---|---|
| Building:建物面積 | 142 m² |
| Scale:建物規模 | 1st floor1階 |
| Structure:構造 | Wooden木造 |
| Built in:建築年 | 1975 |

This vacant house is a heartwarming space where you can feel the taste of the Showa era. There is a field behind the house, where you can enjoy a vegetable garden and gardening. There is a parking lot for 5 cars, so you can rest assured when you visit. Surrounded by a quiet natural environment, it is close to supermarkets, convenience stores, and elementary schools, making it ideal for family living and weekend retreats. It is also possible to renovate this place and reuse it as a healing space.この空き家は、昭和の趣を感じる心温まる空間です。家の裏には畑が広がり、家庭菜園やガーデニングを楽しめます。駐車場は5台分完備され、来客時にも安心。静かな自然環境に包まれながらも、スーパーやコンビニ、小学校も近く、家族での暮らしや週末のリトリートにも最適です。この場所をリノベーションして、癒しの空間としての再活用も可能です。
| Land:土地面積 | 999 m² |
|---|---|
| Building:建物面積 | 155 m² |
| Scale:建物規模 | Two-story wooden building木造2階建 |
| Structure:構造 | Wooden木造 |
| Built in:建築年 | 1962 |

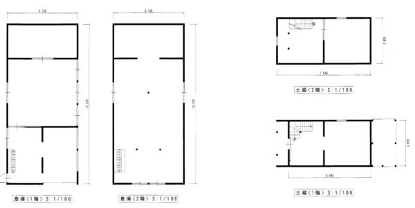
From Nishiaizu-cho, Yama-gun, Fukushima Prefecture, we will introduce you to properties with magnificent storehouses. Situated in a location surrounded by lush mountain landscapes, it is an ideal property for enjoying country life in a tranquil environment. National Route 459 runs nearby, making it easy to access. The nearest JR Tokuzawa Station is about 6.9 km away, and the bus stop is a 1-minute walk away, so you can also use public transportation. The price is very reasonable at 700,000 yen, and the large site and large house are attractive. It is a two-story wooden galvanized steel roofed building built in Showa 37 and has a spacious total floor area of 311.65 square meters. The site area is 896.23 square meters, and there is plenty of space in the surrounding area that can be used as a field and garden for agricultural work. The property also comes with a stone warehouse (75.56 m²) and multiple storerooms (81.12 m² in total), which can be used as storage and work space. Large-scale repairs are required, but durable buildings are attractive.福島県耶麻郡西会津町から、立派な蔵つきの物件をご紹介します。緑豊かな山間の風景に囲まれた場所に立地し、静かな環境で田舎暮らしを満喫するには理想的な物件です。近隣には国道459号線が走り、アクセスも良好です。最寄りのJR徳沢駅までは約6.9km、バス停までは徒歩1分と、交通機関の利用も可能。価格は70万円と非常にお手頃で、広い敷地と大型の家屋が魅力です。昭和37年築の木造亜鉛メッキ鋼板葺2階建てで、延床面積は311.65㎡と広々としています。敷地面積は896.23㎡で、周囲には農作業用の畑や庭として活用できるスペースが豊富です。また、物件には石造りの倉庫(75.56㎡)や複数の物置(計81.12㎡)が付属しており、収納や作業スペースとして活用できます。大規模な補修が必要ですが、耐久性のある建物が魅力です。
| Land:土地面積 | 896 m² |
|---|---|
| Building:建物面積 | 311 m² |
| Scale:建物規模 | 2 stories2階建て |
| Structure:構造 | Wooden galvanized steel roof木造亜鉛メッキ鋼板葺 |
| Built in:建築年 | 1962 |

A new property has been added in the Niitsuru area! This dream property has been designed with every detail in mind, including a hall made from rare wood, a cypress bath, a spacious kitchen, and a basement that you can use for music or hobbies without worrying about the neighbors. There is also a field where you can enjoy growing your own vegetables, and as there are not many houses nearby, it could also be used as a lodging, restaurant, or other store.稀少な建材を贅沢に使用した平屋住宅
| Land:土地面積 | 763 m² |
|---|---|
| Building:建物面積 | 226 m² |
| Structure:構造 | Wooden木造 |
| Built in:建築年 | 1930 |

A quaint Japan house nestled in the center of the town, and a spacious space (about 30 tatami mats) on the south side of the first floor can be used for a variety of purposes!町の中心部に佇む風情のある日本家屋、1階南側の広々空間(約30畳)は、様々な用途での活用が可能です!
| Land:土地面積 | 552 m² |
|---|---|
| Building:建物面積 | 163 m² |
| Scale:建物規模 | 2 stories2階建て |
| Structure:構造 | Wooden木造 |
| Built in:建築年 | 1978 |

It is a property for those who want to live a leisurely life with a decent peaceful atmosphere along the national highway and convenience.国道沿いと利便性はまずまずのどかな雰囲気抜群の、のんびり暮らしたい方向けの物件です。
| Land:土地面積 | 643 m² |
|---|---|
| Building:建物面積 | 163 m² |
| Scale:建物規模 | 1st & 2nd floor area: 163.77㎡1•2階面積: 163.77㎡ |
| Structure:構造 | Wooden木造 |
| Built in:建築年 | 1954 |

It is a log house with a fireplace built with Canadian wood in Heisei 5 on the Hatoriko Plateau next to Nasu. This villa, where you can enjoy the nature of the mountains from spring to autumn, is located on a sloping slope on its 300-tsubo site, but in the summer, it is cool and heat-free in the wooded garden, and for golf lovers, there are two golf courses within a 5-minute drive, and in the winter, Lake Hatori Ski Resort is nearby. I visited from Tokyo three to four times a year to cultivate my sharpness, but since my family is getting older and it is becoming difficult to visit by car, I am considering selling it this time. It is a 3LDK with two Western-style rooms and one Japanese-style room. About 30 years have passed, but the log house is breathing and in very beautiful condition. The timing is especially convenient for you. Since it has been many years, the interior is clean, but the veranda has been renovated twice due to corrosion caused by snow. The handrail part needs some repair. You can enter the main street for a few hundred meters, so you can listen to the birds very quietly, and you can enjoy hot springs and facilities in 5 minutes by car to Lake Hatori Angel Fores那須の隣、羽鳥湖高原に平成5年にカナダ産の木材で建てられた暖炉があるログハウスです。春から秋にかけて山の自然を楽しめるこの別荘は、その300坪の敷地は傾斜地にありますが、夏は樹木が生い茂る庭で涼しく避暑となり、ゴルフ好きの方は車で5分のところにゴルフ場が2つ、冬場は羽鳥湖スキー場がすぐ近くです。年に3回から4回東京から訪れては鋭気を養っていましたが、所有する家族が高齢となり車で訪れる事が難しくなってきたため、今回、売却を検討しています。3LDKで洋室が2部屋、和室が1部屋に吹抜けのリビングとなります。約30年という年月を経ましたが、ログハウスは息をしておりとてもきれいな状態です。時期は特にご都合の良い時に合わせます。年数を経ていますので内部はきれいながらも、雪による腐食でベランダ部分は2回ほど改修をおこなっています。手摺部分は若干の修理が必要です。大通りからは数百メートル中に入りますので、とても静かに鳥の声が聴くことができ、羽鳥湖エンゼルフォレストや道の駅へは車で5分で、温泉や施設を楽しむことができます。なお、別荘地ですので、年間管理費が共益費として約92,000円かかります。その他、水道代(半年で約13,200円)と電気、ガス代がかかります。別荘地の公共水道ですので軟水でとても美味です。
| Land:土地面積 | 991 m² |
|---|---|
| Building:建物面積 | 93 m² |
| Scale:建物規模 | Two-story wooden building木造2階建て |
| Structure:構造 | Log Cabinログハウス |
| Built in:建築年 | 1993 |

Fukushima, a picturesque prefecture in northeastern Japan, offers a unique blend of urban and rural lifestyles, making it an attractive option for those contemplating relocation. Renowned for its stunning landscapes, including mountains and coastlines, residents can enjoy outdoor activities, such as hiking, skiing, and beach outings, that promote a vibrant and healthy lifestyle. The prefecture boasts a rich cultural heritage and delicious local cuisine, especially its fresh seafood and world-class rice. In terms of housing, Fukushima presents an array of affordable options, particularly when compared to metropolitan areas like Tokyo or Osaka. While urban centers like Koriyama may have higher rents, there are numerous properties in rural areas offering spacious living at significantly lower prices. The cost of living is generally lower in Fukushima compared to major cities, allowing for a more manageable lifestyle. Quality of life in Fukushima can be favorable, with access to community services, educational institutions, and a focus on local sustainability. However, potential residents should consider the historical context of the region, particularly the lingering effects of the 2011 disaster. Many areas have successfully rebounded, and investments in infrastructure and cleanliness have significantly improved safety perceptions. Overall, for those seeking an affordable lifestyle embedded in nature with a sense of community, Fukushima Ken presents a compelling choice in Japan.
AllAkiyas.com puts at your disposition thousands of Japanese real estate listings of properties available for sale or rent. Our extensive listings include detached houses, townhouses, apartments, commercial spaces, and vacant lots. We place a special focus on traditional vacant houses, known as akiya (or kominka in rural areas), and traditional townhouses, or machiya. You can easily search for properties across all of Japan's prefectures using your specific criteria.