
Verify availabilityAdd to lists:✕

Quality building in a quiet environment. It was a house that overturned the image of a newly built property for sale. Solid wood, natural stone, plastered interior walls, and meticulously craftsmen fittings set it apart from existing homes. The exterior is made of black and evenly baked Tenryu yakisugi paneling, solid wood eaves peeking out, and the round windows on the second floor seem to be Japanese-style custom architecture. The interior is a solid flooring material with a unique carving called a naguri floor. The natural stone and plastered walls used in the living room have an atmosphere like an inn.静かな環境に上質な建物。新築建売物件のイメージを覆す家でした。無垢の木材、天然石、左官仕上げの内壁、職人による丁寧な造りの建具など、それは既存の建売住宅とは一線を画していました。外観は黒くムラなく焼かれた天龍焼杉の羽目板に、無垢材の軒がのぞき、2階の丸窓が和の注文建築のようです。内装はなぐり床といわれる独特な彫込みが施された無垢の床材。リビングに使われている天然石、左官仕上げの壁はまるで旅館のような雰囲気です。
| Land:土地面積 | 167 m² |
|---|---|
| Building:建物面積 | 128 m² |
| Scale:建物規模 | 2 stories2階建て |
| Structure:構造 | Solid wood, natural stone, plastered interior walls, meticu無垢の木材、天然石、左官仕上げの内壁、職人による丁寧な造りの建具 |
| Built in:建築年 | 2023 |

A premium property within walking distance of Kamakura Station. On a spacious site of 1052 square meters (318.36 tsubo), the Log house has a dignified feel.鎌倉駅徒歩圏のプレミアム物件。広々1052平米(318.36坪)の敷地に、重厚感のあるLog house。
| Land:土地面積 | 1052 m² |
|---|---|
| Building:建物面積 | 150 m² |
| Scale:建物規模 | One-story house平家建 |
| Structure:構造 | Wooden slate roof木造スレート葺 |
| Built in:建築年 | 1990 |

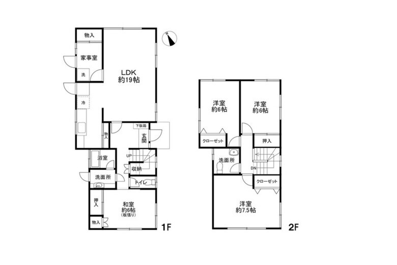
Today's stage is about a 19-minute walk from Kamakura Station. After passing through Komachi-dori, we bowed to Tsurugaoka Hachimangu Shrine before entering. The fact that the walk passes through the grounds of Hachimangu Shrine is very Kamakura-like. The jet black exterior walls exude a mature look, with exposed natural wood eaves, and the exterior walls are made of highly durable charred cedar boards. The appearance has a deep texture! It raises expectations for the interior. The living room on the second floor is easy to use as the dining room and living room are clearly separated.本日の舞台は「鎌倉」駅から歩いて約19分。小町通りを抜け、鶴ケ岡八幡宮に一礼をして入場。道中が八幡宮境内を通っていけるなんて、鎌倉らしさがありますね。大人見溢れる漆黒の外壁に、天然木剝き出しの軒下、外壁は耐久性の高い焼杉板を仕様。味わい深い風合いの佇まい!室内への期待度が上がります。2階リビングはダイニングとリビングがはっきりと分かれていて使いやすいです。
| Land:土地面積 | 167 m² |
|---|---|
| Building:建物面積 | 128 m² |
| Scale:建物規模 | Two-story wooden building木造2階建 |
| Structure:構造 | Wooden木造 |
| Built in:建築年 | 2024 |

Surrounded by greenery, it is a quiet living environment full of the atmosphere and emotion of the ancient city of Kamakura. This is Kamakura! It's like that. This 52-year-old property is built there. It's cool from the stone wall. And the garden is a garden created by Juki Iida, who is known as the founder of the "Garden of Miscellaneous Trees". It is a mysterious garden that you will never get tired of looking at all the time. The house is also full of the four seasons of Kamakura. It's very nice.緑に囲まれ、古都鎌倉の風情と情緒あふれる閑静な住環境。これぞ鎌倉!といった感じです。そこに建つ、味がありまくりの築52年の本物件。石垣からカッコいいですから。そしてお庭はなんと、「雑木の庭」の創始者として知られる飯田十基氏による作庭。ずっと眺めていても飽きのこない不思議なお庭です。家の中にも鎌倉の四季があふれてる。すごく素敵です。
| Land:土地面積 | 851 m² |
|---|---|
| Building:建物面積 | 242 m² |
| Scale:建物規模 | Two-story wooden building木造2階建 |
| Structure:構造 | Wooden木造 |
| Built in:建築年 | 1964 |

The temple is the landlord of this property, and the biggest advantage of renting is that you can live in an expensive location that is difficult to buy, as long as you pay the monthly rent!本物件はお寺さんが地主の借地権となっております。借地権は毎月地代をお支払いすれば、値段が高くて購入が難しい立地にお住まいになれるのが最大のメリットになります!
| Land:土地面積 | 166 m² |
|---|---|
| Building:建物面積 | 148 m² |
| Scale:建物規模 | 2 stories2階建 |
| Structure:構造 | Wooden木造 |
| Built in:建築年 | 1982 |

Just a 10-minute walk from Kamakura Station, the property we are introducing today is an old house that has aged alongside the history of Kamakura for nearly 100 years.鎌倉駅から徒歩たったの10分。100年近く鎌倉の歴史と共に歳を重ねた「古民家」が今回ご紹介の物件です。
| Land:土地面積 | 212 m² |
|---|---|
| Building:建物面積 | 166 m² |
| Structure:構造 | Wooden roofing with tile and galvanized steel plate木造瓦葺・亜鉛メッキ剛板 |

Zaimokuza 5-chome is close to the sea and convenient for daily shopping. This is a special residence with a sense of openness perfect for a life in Zaimokuza.海を日常使いしつつ、日々の買い物も便利な材木座5丁目。そんな材木座生活のための、解放感のあるこだわり邸宅。
| Land:土地面積 | 108 m² |
|---|---|
| Building:建物面積 | 86 m² |
| Scale:建物規模 | 2 stories2階建て |
| Structure:構造 | Wooden slate roof木造スレート葺 |
| Built in:建築年 | 2002 |

We found a mansion that quietly stands on a hill. Close your eyes and try to imagine it. The sound and smell of the wind when a closed window is opened. A pleasant breeze blowing through the garden and inside the house. We would like to introduce you to a stage for such a fragrant lifestyle. The wooden deck is spacious, about 12 m2. There is no road in front of it, so it is a private space. That's why you can really have a BBQ! The right side (west side) is open, so the breeze blows through. It's like having a natural electric fan. Feel free to stretch your wings! The 8-tatami Japanese-style room is connected to the deck. A tasteful and luxurious space that you won't find in a pure new build. You'll want to relax with a beer and the sound of wind chimes while burning mosquito coils!高台にひっそりとそびえる邸宅、見つけちゃいました。目を閉じて想像してみてください。閉まり切った窓が開かれた時の風の音や匂い。庭でも、家の中でも吹き抜ける気持ちの良い風。そんな、風薫る暮らしの舞台をご紹介いたします。ウッドデッキは広々約12㎡。目の前が道路ではないのでプライベートな空間。だからこそ、ほんとにBBQが出来ますね!右側(西側)が抜けているので風が吹き抜けます。まるで天然の扇風機が付いているかのよう。思いっきり羽をのばしてください!デッキから繋がる8帖の和室。ピュアな新築物件では出ない、味のある贅沢空間。蚊取り線香を焚きながら、風鈴の音を肴にビールでくつろぎたくなる・・!
| Land:土地面積 | 205 m² |
|---|---|
| Building:建物面積 | 114 m² |
| Scale:建物規模 | Two-story wooden building木造2階建 |
| Structure:構造 | Wooden木造 |
| Built in:建築年 | 1987 |

北鎌倉の風情ある景色にぴしっと溶け込んでいる、素敵な古民家が出ました。場所は明月院通りからとある路地を入ったところ。山の緑とあいまって、なんともフォトジェニックな佇まいです。う〜ん、渋いっ!中に入ってまず驚いたのは、玄関。隣の和室との間に、丸窓があるんです。場所的にもかの有名な、明月院の”悟りの窓”を模しているのかは不明ですが、和室側から見てもこの丸窓はとても印象的です。決して大きな家ではないものの、南にたっぷり取られた広縁や適度な広さのある庭など、魅力的なポイントが沢山あります。本物件は古民家付き土地としての販売なので、もちろん更地にして新たに住宅を建てるのもアリです。ですがせっかくならリノベして住む、という選択肢も是非残して欲しいなあ、と個人的には思うのでした。北鎌倉の風情ある景色にぴしっと溶け込んでいる、素敵な古民家が出ました。場所は明月院通りからとある路地を入ったところ。山の緑とあいまって、なんともフォトジェニックな佇まいです。う〜ん、渋いっ!中に入ってまず驚いたのは、玄関。隣の和室との間に、丸窓があるんです。場所的にもかの有名な、明月院の”悟りの窓”を模しているのかは不明ですが、和室側から見てもこの丸窓はとても印象的です。決して大きな家ではないものの、南にたっぷり取られた広縁や適度な広さのある庭など、魅力的なポイントが沢山あります。本物件は古民家付き土地としての販売なので、もちろん更地にして新たに住宅を建てるのもアリです。ですがせっかくならリノベして住む、という選択肢も是非残して欲しいなあ、と個人的には思うのでした。
| Land:土地面積 | 176 m² |
|---|---|
| Building:建物面積 | 73 m² |
| Scale:建物規模 | 平屋建平屋建 |
| Structure:構造 | 木造鋼板葺平屋建(登記簿上は瓦葺)木造鋼板葺平屋建(登記簿上は瓦葺) |
| Built in:建築年 | 1937 |

Located in a quiet residential area of Imaizumidai, Kamakura City, this is a renovated 4LDK detached house. We provide a comfortable life in an environment surrounded by nature.鎌倉市今泉台の静かな住宅地に位置する、リフォーム済みの4LDK戸建て。自然に囲まれた環境で、快適な生活を提供します。
| Land:土地面積 | 166 m² |
|---|---|
| Building:建物面積 | 116 m² |
| Scale:建物規模 | 2 stories2階建 |
| Structure:構造 | Wooden slate roof木造スレート葺 |
| Built in:建築年 | 1992 |

Kanagawa Prefecture, located just south of Tokyo, is a vibrant prefecture that seamlessly blends urban convenience with natural beauty, making it an exceptional choice for those considering relocation. One of its standout features is its proximity to Tokyo, offering a suburban lifestyle with easy access to the bustling capital—an appealing factor for professionals seeking a balance between work and leisure. Kanagawa is home to popular cities such as Yokohama, with its picturesque waterfront and lively international atmosphere, and Kamakura, famed for its cultural heritage and coastal charm. For nature lovers, the stunning landscapes of the Hakone region, known for its hot springs and views of Mt. Fuji, provide tranquil retreats just a stone’s throw away. Affordability is a crucial aspect for prospective buyers, and Kanagawa offers competitive property prices compared to the heart of Tokyo, particularly in areas like Kawasaki and Atsugi. Here, you can find spacious homes and apartments that fit various budgets, making it suitable for first-time buyers or families. Additionally, the local government has been actively promoting residential developments that cater to newcomers, ensuring a diverse community with ample amenities. Schools, parks, and transport systems are well-developed, adding to the region's appeal. Overall, Kanagawa Ken offers a dynamic lifestyle with a variety of housing options, making it a compelling choice for anyone looking to invest in property while enjoying both urban and natural facets of Japan.
AllAkiyas.com puts at your disposition thousands of Japanese real estate listings of properties available for sale or rent. Our extensive listings include detached houses, townhouses, apartments, commercial spaces, and vacant lots. We place a special focus on traditional vacant houses, known as akiya (or kominka in rural areas), and traditional townhouses, or machiya. You can easily search for properties across all of Japan's prefectures using your specific criteria.