





Add to lists:✕
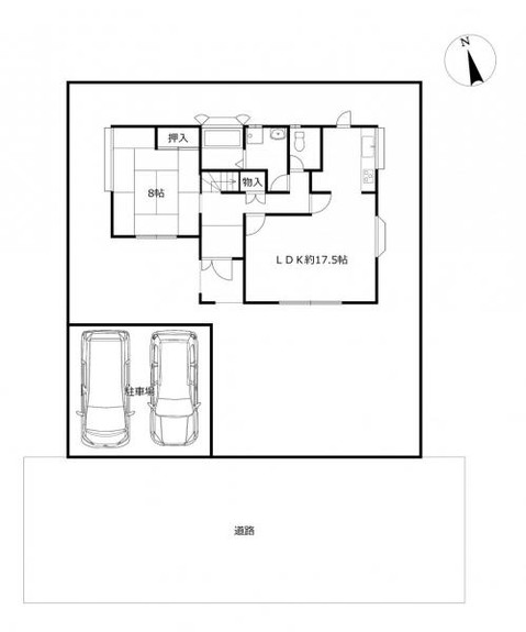
This house, built on a spacious 550m2 plot, is a purely Japanese-style house where the craftsmanship of the craftsmen shines through everywhere. Please come and experience the splendor of not only the grounds but also the garden that can be viewed from the rooms. As it is a 9DK+S unit, it can be used as a residence for a large family or for two generations.土地178坪にゆったりと建てられた家屋は、職人技が随所に光る純和風の家屋です。敷地内だけでなく、お部屋から眺める庭園の見事さも現地で是非体感してください。9DK+Sですので、大家族や二世帯住居としてもご活用いただけます。
Land:土地面積 | 590 m² |
---|---|
Building:建物面積 | 255 m² |
Scale:建物規模 | 2 stories2階建 |
Structure:構造 | Wooden木造 |
Built in:建築年 | 1981 |
Osaka Prefecture, stands out as a vibrant hub of culture, commerce, and community in Japan. Renowned for its dynamic urban atmosphere, Osaka offers a blend of modern skyscrapers, historical landmarks, and an array of culinary delights—key ingredients that make it an attractive destination for immigrants. Compared to other prefectures like Tokyo, where housing prices can be astronomical, Osaka presents a more affordable housing market, particularly in suburban areas. The average cost of living, including rent, is generally lower, allowing newcomers to enjoy a higher quality of life with less financial strain. Housing options in Osaka Fu range from compact apartments in busy central districts to spacious houses in tranquil neighborhoods, providing a variety of choices to fit different lifestyles and budgets. For instance, areas such as Sakai and Hirakata offer relatively lower property prices while still providing access to Osaka’s extensive public transport network. Furthermore, Osaka's rich cultural tapestry, with famous festivals, museums, parks, and a lively arts scene, creates a welcoming environment for foreigners. The city's friendly locals and a strong sense of community also enhance the immigrant experience, making it easier for newcomers to integrate. With robust infrastructure, excellent educational opportunities, and diverse job prospects, particularly in the tourism and technology sectors, Osaka Fu presents a compelling case for those looking to relocate to Japan while enjoying affordable living options.
AllAkiyas.com puts at your disposition thousands of Japanese real estate listings of properties available for sale or rent. Our extensive listings include detached houses, townhouses, apartments, commercial spaces, and vacant lots. We place a special focus on traditional vacant houses, known as akiya (or kominka in rural areas), and traditional townhouses, or machiya. You can easily search for properties across all of Japan's prefectures using your specific criteria.